






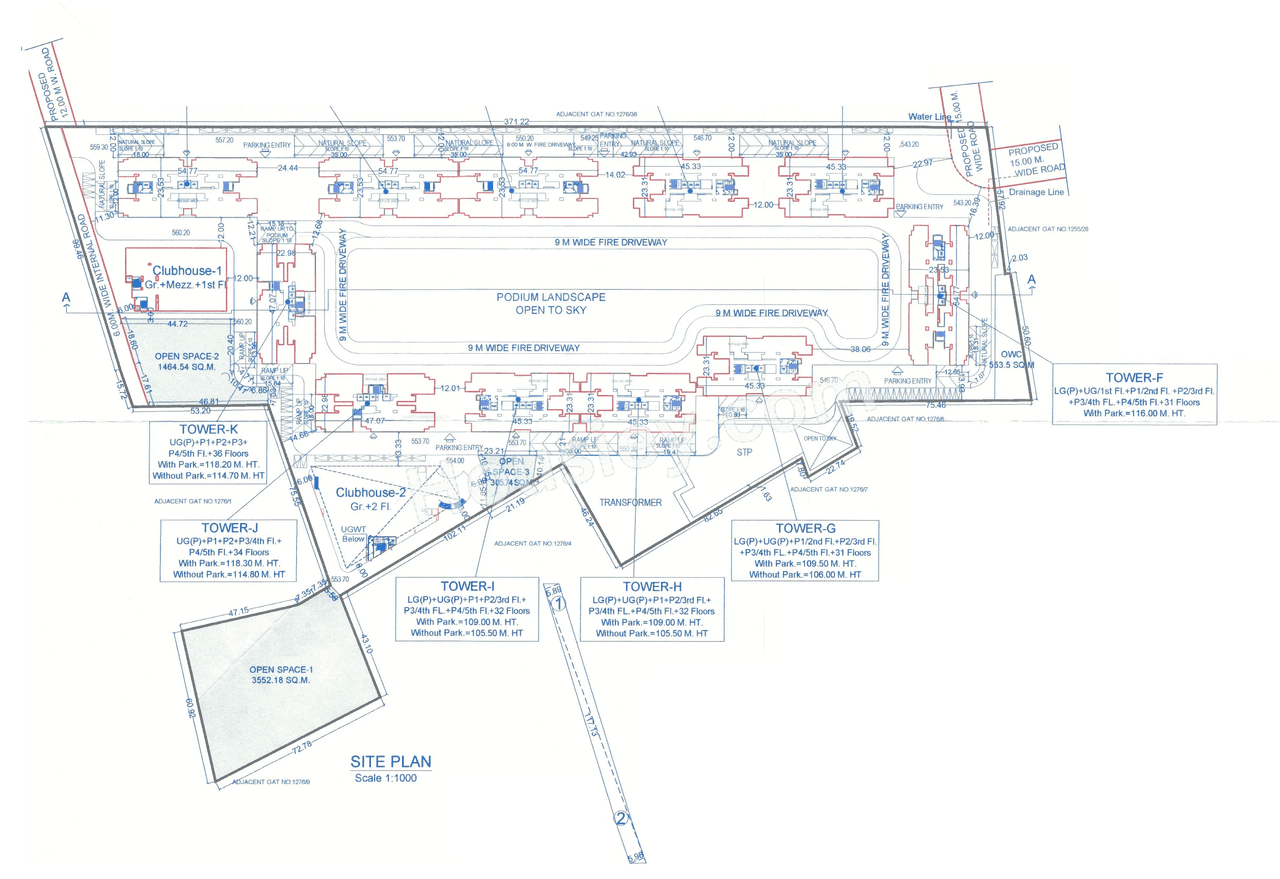
Land Parcel
Towers
Floors
Config
Carpet Area
RERA NO.
Possession Status
Target Possession
RERA Possession
Litigation
Godrej Properties Kharadi Project Overview
Godrej Premium Kharadi will be constructed on 12.8 acres of land parcel, 11 towers with G+3P+30 floors having 2BHK, 3BHK & 4BHK premium residences.
Godrej Premium location
Project is located Near VTP Township Pegasus Sales office, Kharadi, pune.with -
Decathlon Wagholi - 1.1km
D Mart Wagholi - 2.2km
Barclays LTS Campus - 4.3km
Godrej Premium Kharadi Amenities
First is Internal amenities - Vitrified tiles, Granite Kitchen, Earthquake resistance, Video door, Digital lock, DG backup, Solar Heater, SS railing, Fire-fighting & many more
Godrej Properties Kharadi External Amenities
Project has 30+ luxurious amenities with likes of -
Swimming Pool
Club House
Senior Citizen Area
Gymnasium
Multipurpose Court & Many More
Godrej Properties Premium Kharadi Parking -
Project has only one type of car parking facility
1) Parking Tower
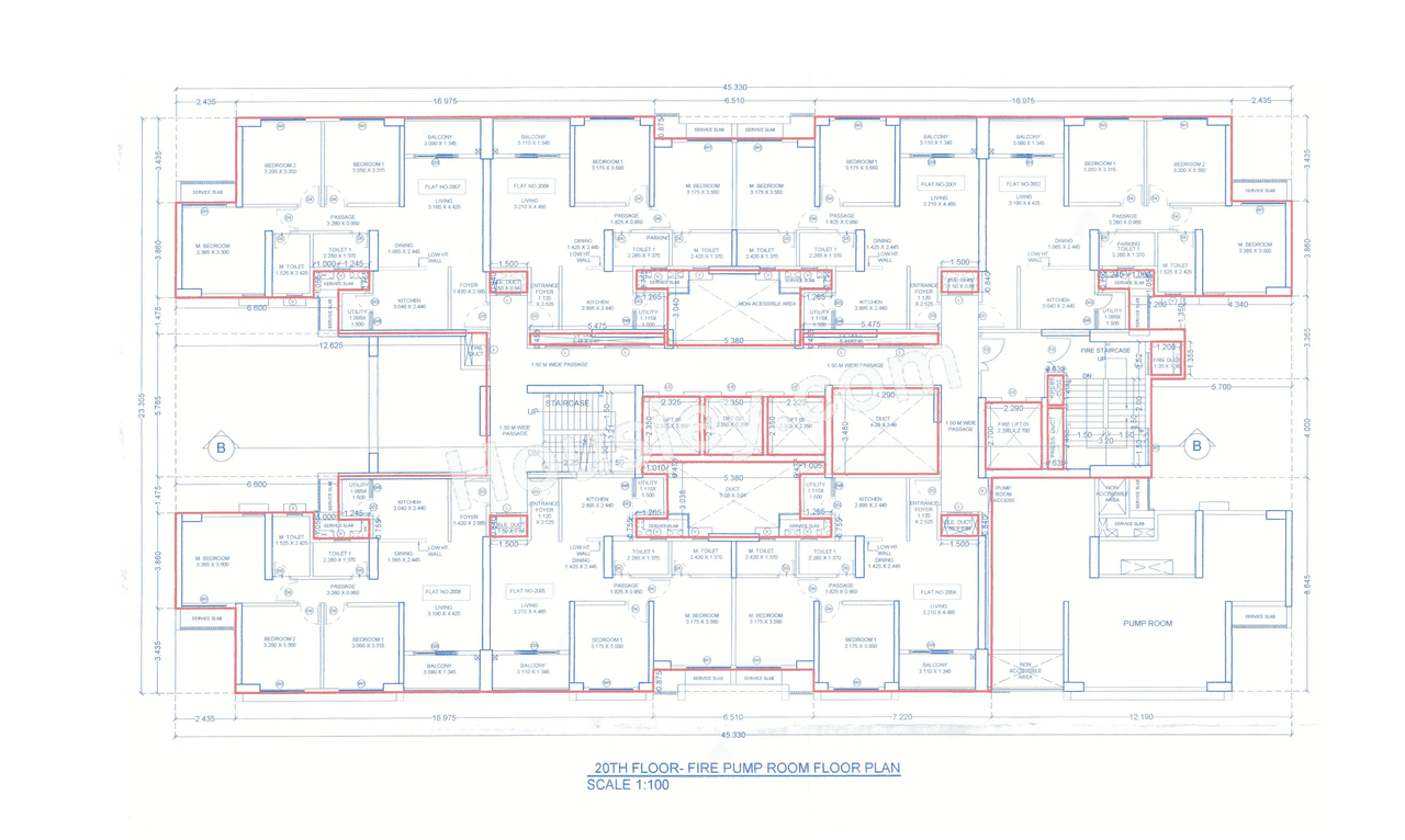
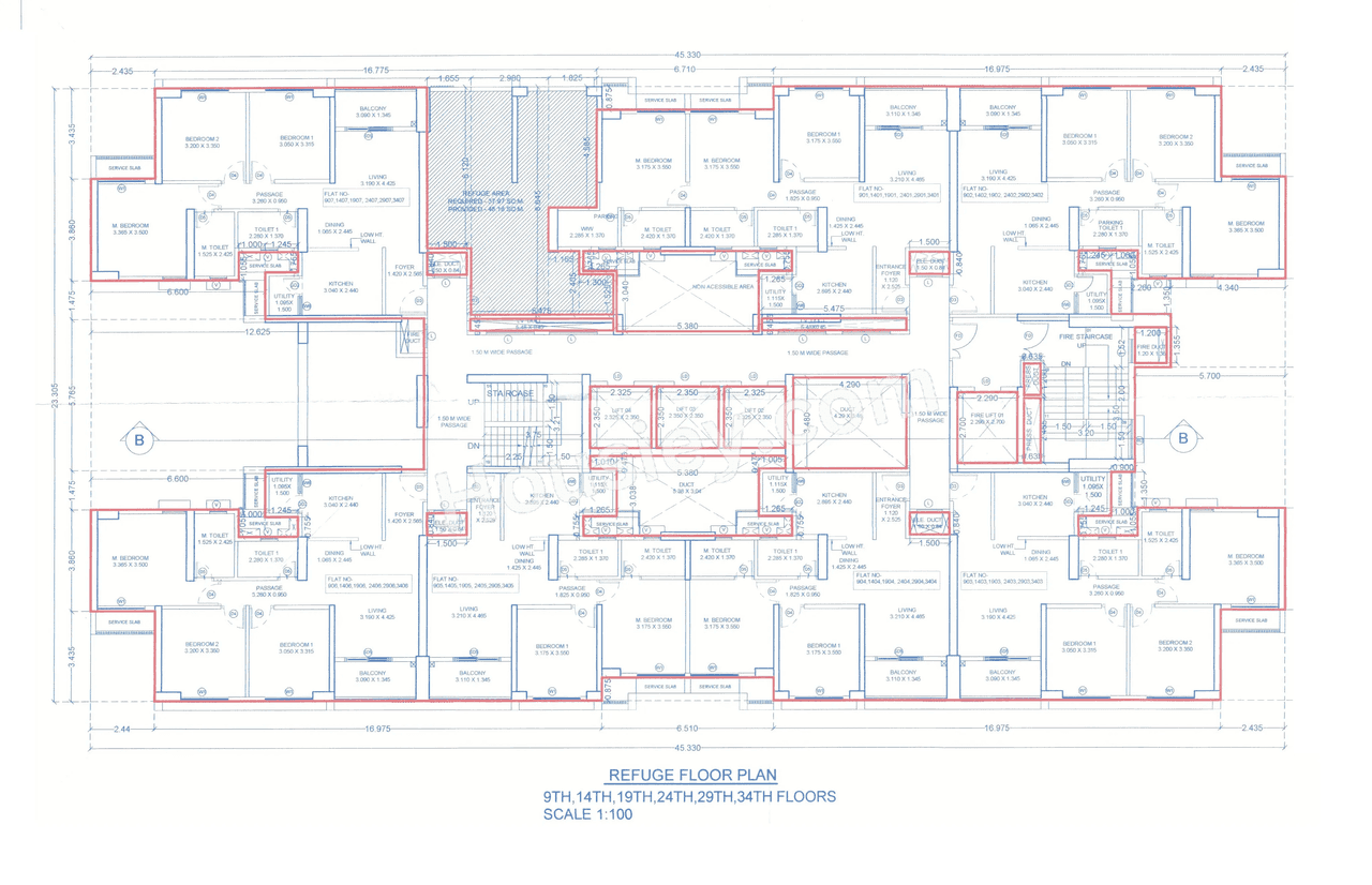
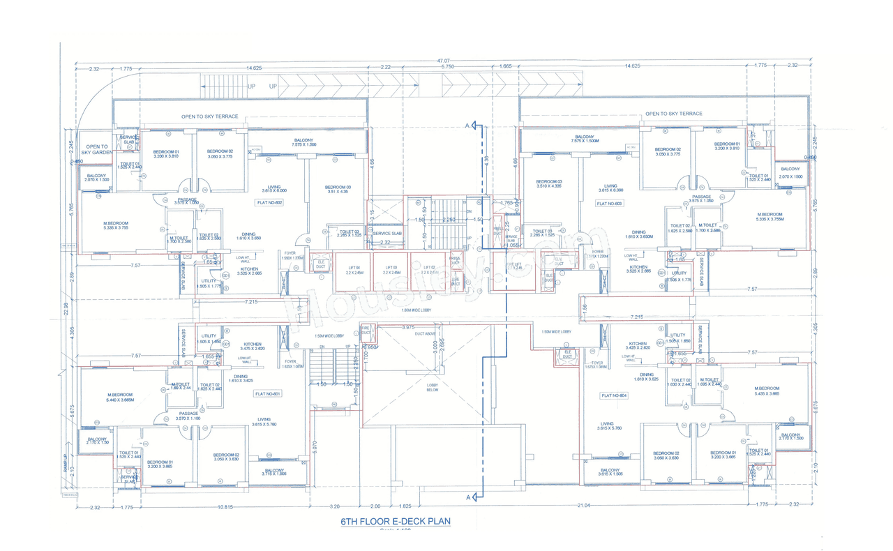
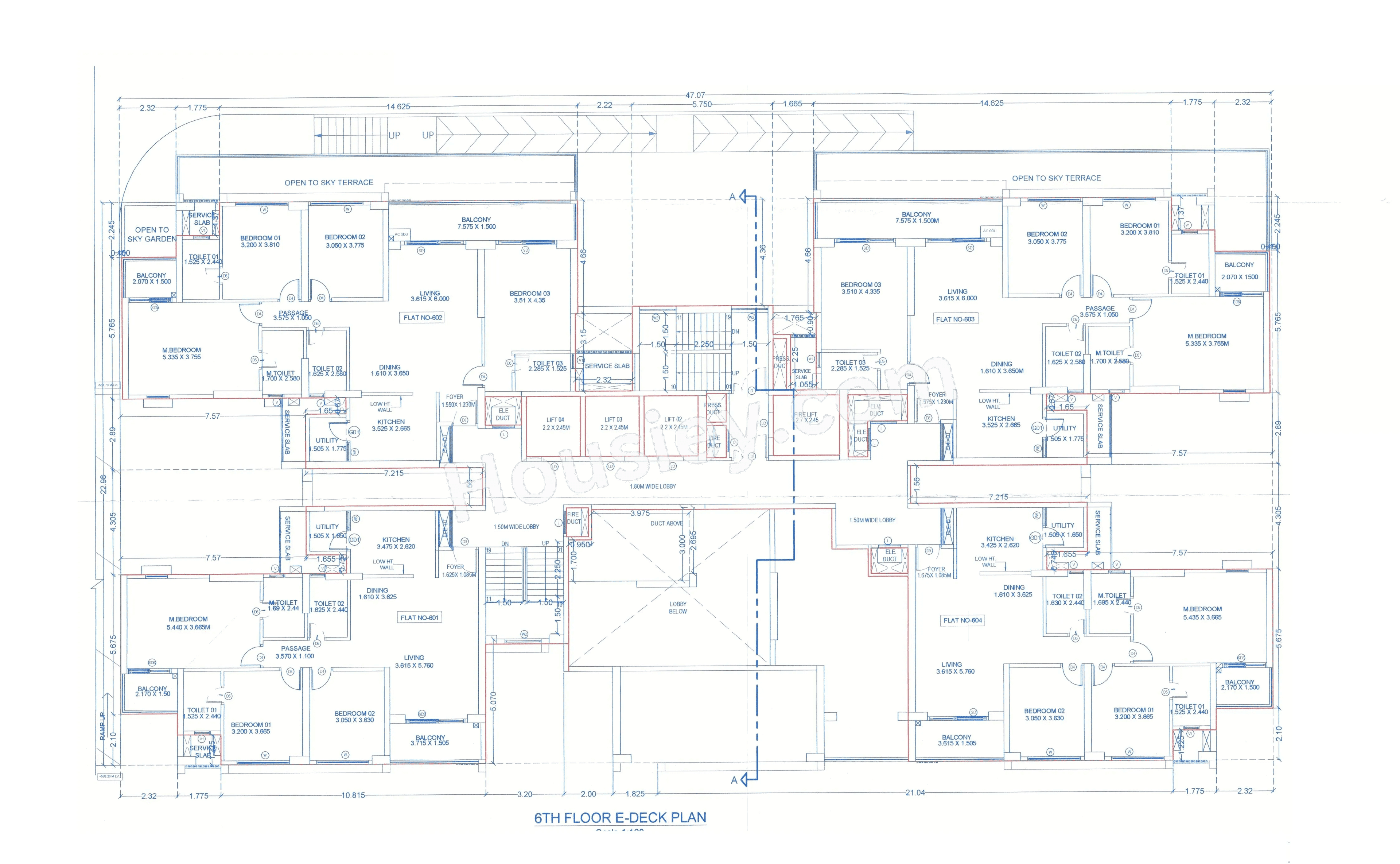
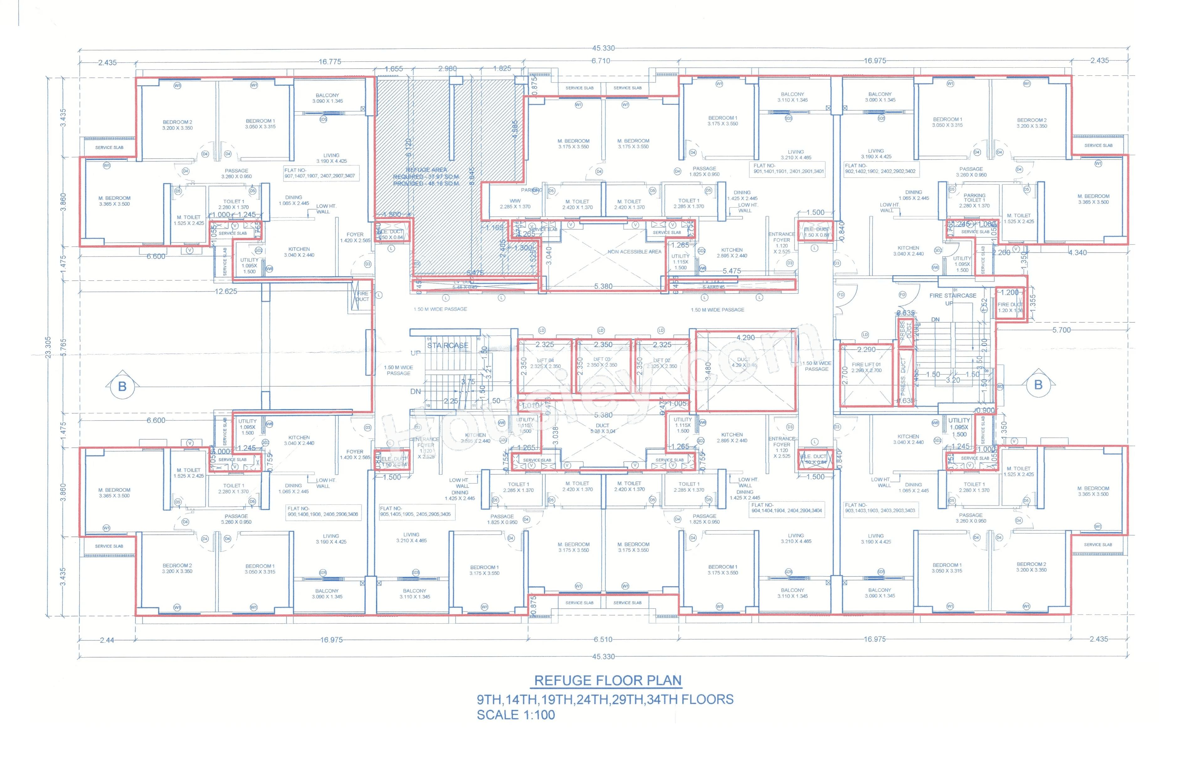
Godrej Premium floor plan
Tower floor plans will have 4 flats,2 lifts & 2 staircases on each floor
Godrej Premium Possession -
Rera Possession - August 2032
Target Possession - December 2029
Carpet Area & Floor Plan
Godrej Premium project has 2BHK, 3BHK & 4BHK premium residences with -
2BHK - (725 to 750) sqft
3BHK - (875 to 1250) sqft
4BHK - (1550 to 1650) sqft
Maintenance -
Godrej Premium Pune Project maintenance varies with the configuration and the carpet area which are as follows-
2BHK - Rs (3000 - 3500) per month
3BHK - Rs (4000 - 4500) per month
4BHK - Rs 6000 per month
Godrej Premium kharadi price & its details can be found in the price section & Godrej Premium kharadi brochure can be downloaded from the link mentioned below. Project has been praised by the home buyers & Godrej Properties Kharadi review is 4 out of 5 from over all the clients who have visited the site.
Near VTP Township Pegasus Sales office, kharadi, pune.

Pros
Cons
Digital Lock
Video Door Phone
Vitrified Tiles
Granite Kitchen Platform
Stainless Steel Sink
D.G Backup
Solar Water Heater
+1 More
Swimming Pool
Club House
Kids Play Area
Jogging Track
Garden
Multi Purpose Court
Senior Citizen Area
Cricket Pitch
Multi Purpose Lawn
Amphitheater
Indoor games
party lawn
Gymnasium




| Carpet Area | All Inc. Price (Inc. of Taxes & Charges) | Min Downpayment (Inc. Taxes) | Parking | Unit Plan |
|---|---|---|---|---|
725 sqft | 1.25 Cr All In | 19.00 Lacs | 1 | ![]() |
750 sqft | 1.29 Cr All In | 19.00 Lacs | 1 | ![]() |

Is there any litigation against this proposed project:
NoGodrej Premium Commencement Certificate
Godrej Premium Legal Title Report
Godrej Premium Building Plan
Note: You can download more detailed documents by following this link
Godrej Properties

7 CitiesLocations
Hyderabad, Ahmedabad, Bangalore Rural, Bangalore Urban, Mumbai City, Pune, Mumbai suburban



720 - 1133 sqft
Majestique Landmarks
Developer






584 - 1009 sqft
Unique Properties
Developer



1084 - 2290 sqft
Duville Estates
Developer
811 - 1688 sqft
Pristine Properties
Developer




769 - 1821 sqft
Mahindra Lifespace
Developer
Housiey Legal: Free Real Estate Legal Consultation
Get Expert Advice on RERA, Builder Refunds, Area Mismatch, Stuck Projects & More - at No Cost!