







Land Parcel
Towers
Floors
Config
Carpet Area
RERA NO.
Possession Status
Target Possession
RERA Possession
Litigation
Marvel Kharadi Project Overview
Marvel Aquanas will be constructed on 4 acres of land parcel,2 towers with G+22 floors having 3.5BHK, 3.5BHK Penthouse, 4.5 BHK, 5.5BHK, 5.5BHK Penthouse premium residences.
Marvel Aquanas location
Project is located near Near Mula Mutha River, Kharadi, Pune, Pune with -
Eon IT Park Circle - 1.1km
Mundhwa-Kharadi - 2.1km
Reliance Smart - 2.1km
Marvel Aquanas Kharadi Amenities
First is Internal amenities -
Vitrified tiles, Granite Kitchen, Solar Heater, Home Theater, Games Room & many more
Marvel Realtors Kharadi External Amenities
Project has 30+ luxurious amenities with likes of -
Swimming Pool
Kid's pool
Club house
River-facing homes
Multipurpose Room & Many More
Marvel Realtors Aquanas Kharadi Parking -
Project has only one type of car parking facility i.e. Ground
Marvel Aquanas Possession -
Rera Possession - March 2024
Target Possession - January 2024
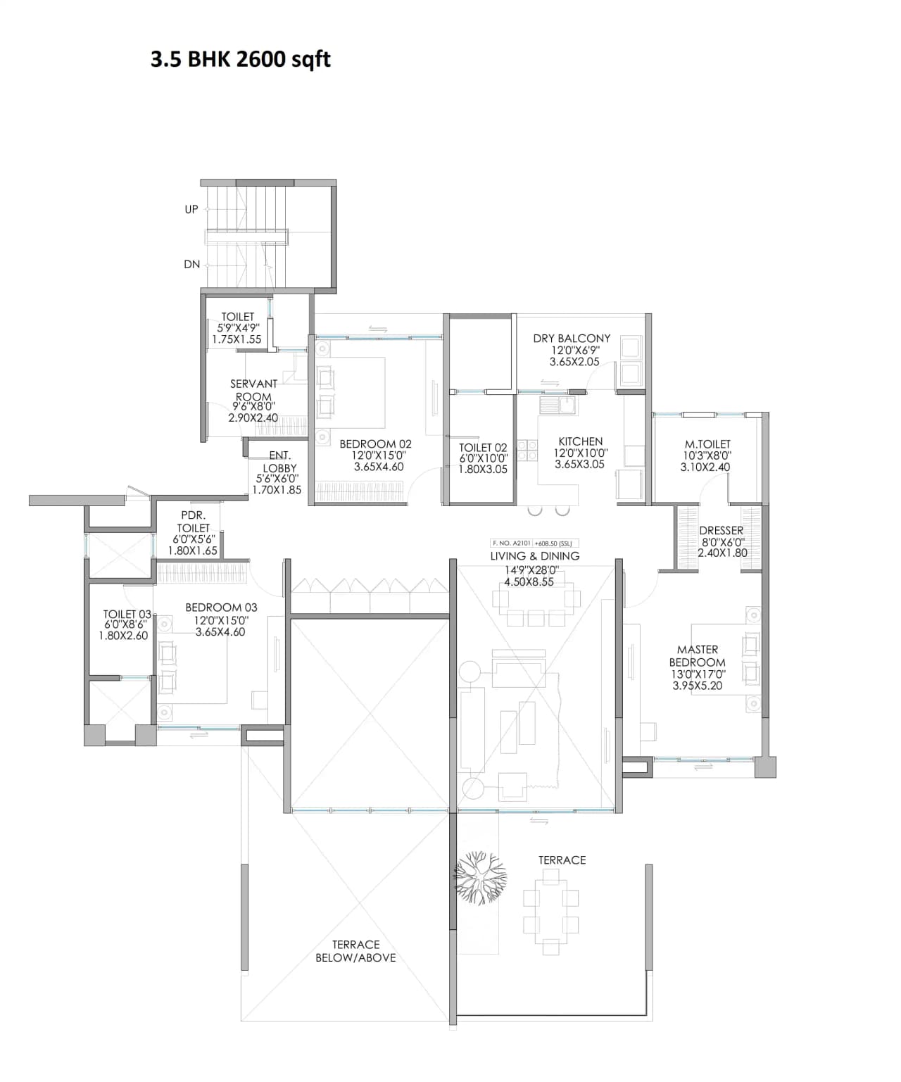
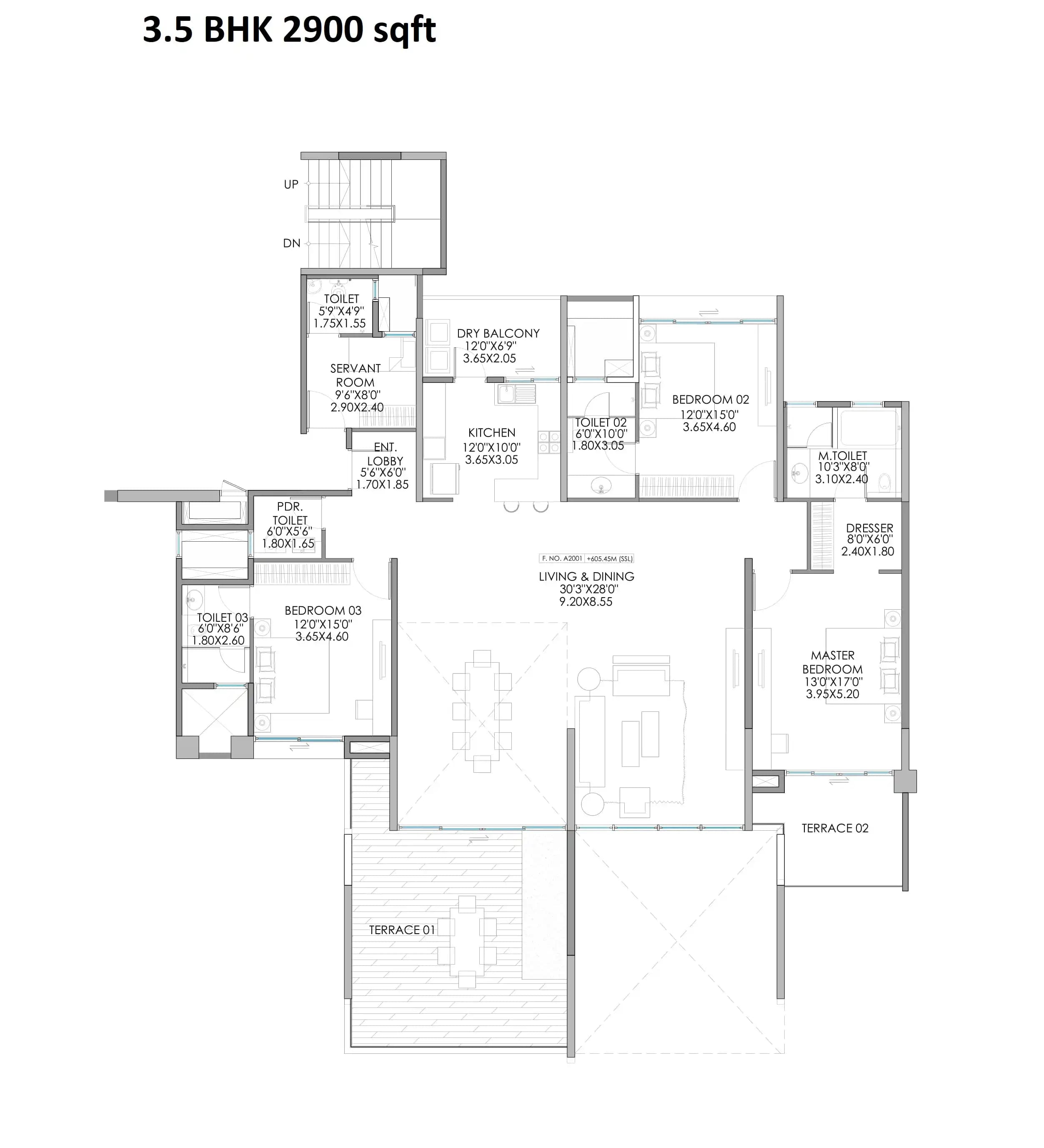
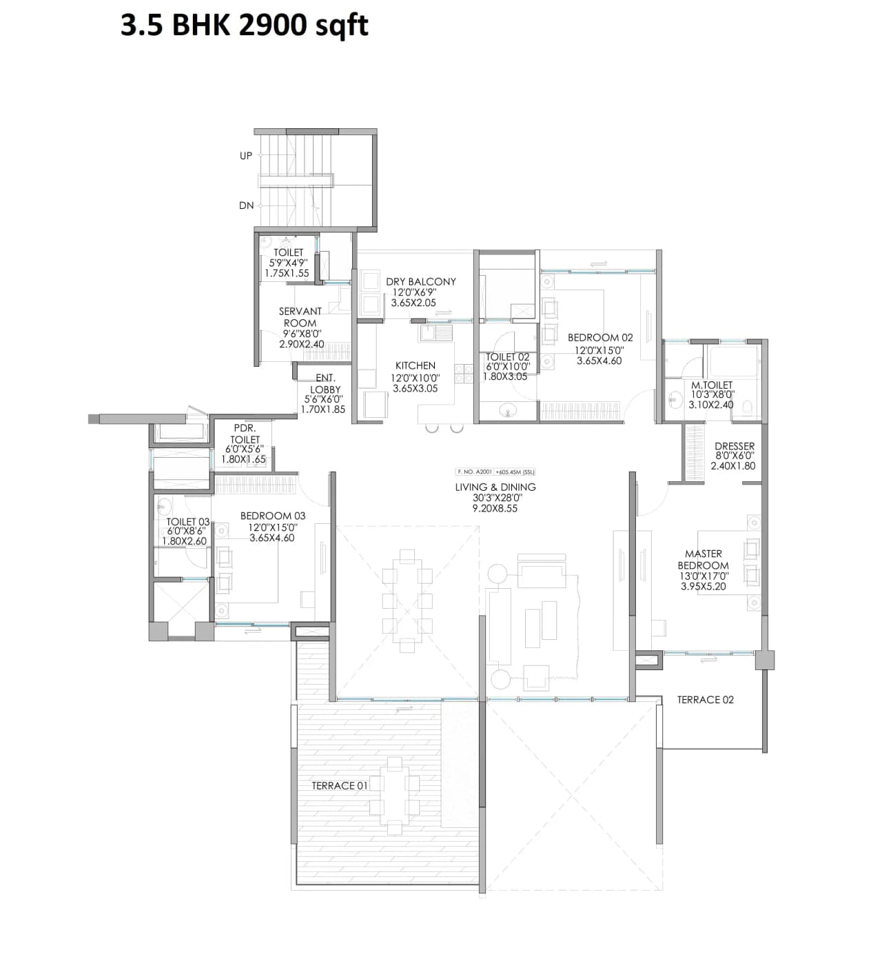
Carpet Area & Floor Plan
Marvel Aquanas project has 3.5BHK, 3.5BHK Penthouse, 4.5 BHK, 5.5BHK, 5.5BHK Penthouse premium residences with -
3.5BHK - (2600 to 2900)sqft
3.5BHK Penthouse - 4000 sqft
4.5BHK - 3500 sqft
5.5BHK - 4500 sqft
5.5BHK Penthouse - 7000 sqft
Maintenance -
Marvel Aquanas Pune Project maintenance varies with the configuration and the carpet area which are as follows-
3BHK - Rs (14000 - 14500) per month
3.5BHK Penthouse - Rs 20000 per month
4.5BHK - Rs 21000 per month
5.5BHK - Rs 23000 per month
5.5BHK Penthouse - Rs 27000 per month
Aquanas Kharadi project sample flat is ready to view at the site.
Aquanas price & its details can be found in the price section & Marvel Aquanas brochure can be downloaded from the link mentioned below. Project has been praised by the home buyers & Marvel Realtors Kharadi review is 4 out of 5 from over all the clients who have visited the site.
Near Mula Mutha River, Kharadi, Pune


Pros
Cons
Home Automation
Vitrified Tiles
Granite Kitchen Platform
Wooden Flooring
Solar Water Heater
Modular Kitchen
Wardrobe
Club House
Kids Pool
Infinity Pool
Private Spa
Steam Room
Library
Yoga Zone
Business Center
Jacuzzi
Indoor games
Sun Deck
Multi purpose hall



| Carpet Area | All Inc. Price (Inc. of Taxes & Charges) | Min Downpayment (Inc. Taxes) | Parking | Unit Plan |
|---|---|---|---|---|
2600 sqft | 3.85 Cr All In | 49.00 Lacs | 2 | ![]() |
2900 sqftSold Out | ![]() | - | - | ![]() |

Is there any litigation against this proposed project:
NoMarvel Aquanas Commencement Certificate
Marvel Aquanas Legal Title Report
Marvel Aquanas Building Plan
Note: You can download more detailed documents by following this link
Marvel Realtors

1 CityLocations
Pune



720 - 1133 sqft
Majestique Landmarks
Developer





584 - 1009 sqft
Unique Properties
Developer



1084 - 2290 sqft
Duville Estates
Developer
811 - 1688 sqft
Pristine Properties
Developer




769 - 1821 sqft
Mahindra Lifespace
Developer
Housiey Legal: Free Real Estate Legal Consultation
Get Expert Advice on RERA, Builder Refunds, Area Mismatch, Stuck Projects & More - at No Cost!