








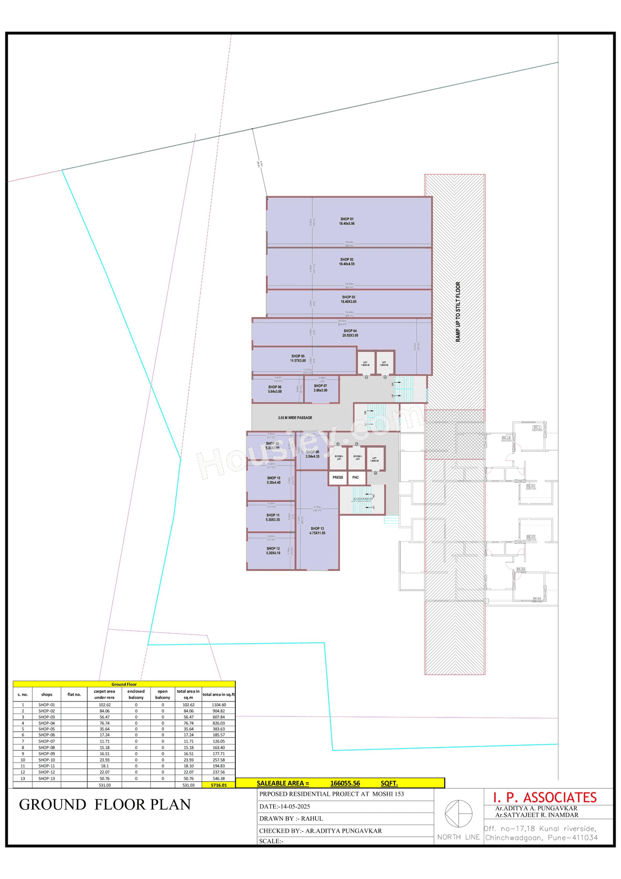
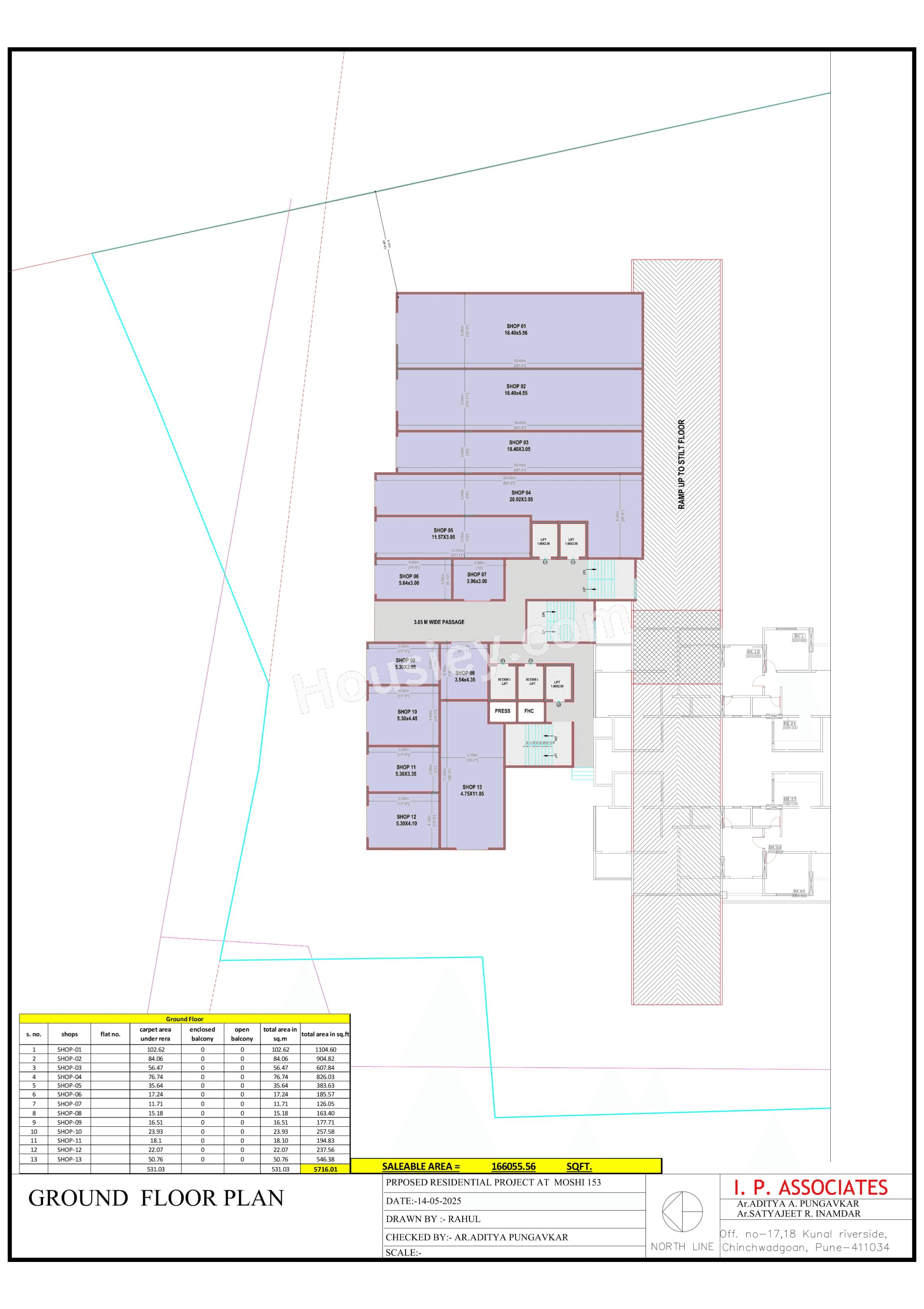
Land Parcel
Towers
Floors
Config
Carpet Area
RERA NO.
Possession Status
Target Possession
RERA Possession
Litigation
Silver Moshi Project Overview
Silver Gardenia Project will be constructed on 4.8 acres of land parcel, 6 towers with B+G+20 floors having 2 BHK, 2.5 BHK, 3 BHK, 4BHK premium residences .
Silver Gardenia location
Project is located Near Bankar Wasti,Borhadewadi, Moshi, Pune with -
Dehu-Moshi Road - 800m
D-Mart - 1.4km
Pune-Nashik Highway - 1.8km
Silver Gardenia Moshi Project Amenities
First is Internal amenities -
Vetrified tiles, Granite Kitchen, Earthsquake resistance, Digital lock, DG backup, SS railing, Fire-fighting, Premium Quality Doors, etc
Silver Group Moshi External Amenities
Project has 20+ luxurious amenities with likes of -
Meditation Yoga Space
Gymnasium
Multipurpose court
Multipurpose hall
Swimming pool & Many More
Silver Group Gardenia Moshi Parking -
Project has two types of car parking facilities -
1) Basement
2) Ground
Silver Gardenia Possession -
Rera Possession - December 2031
Target Possession - December 2027
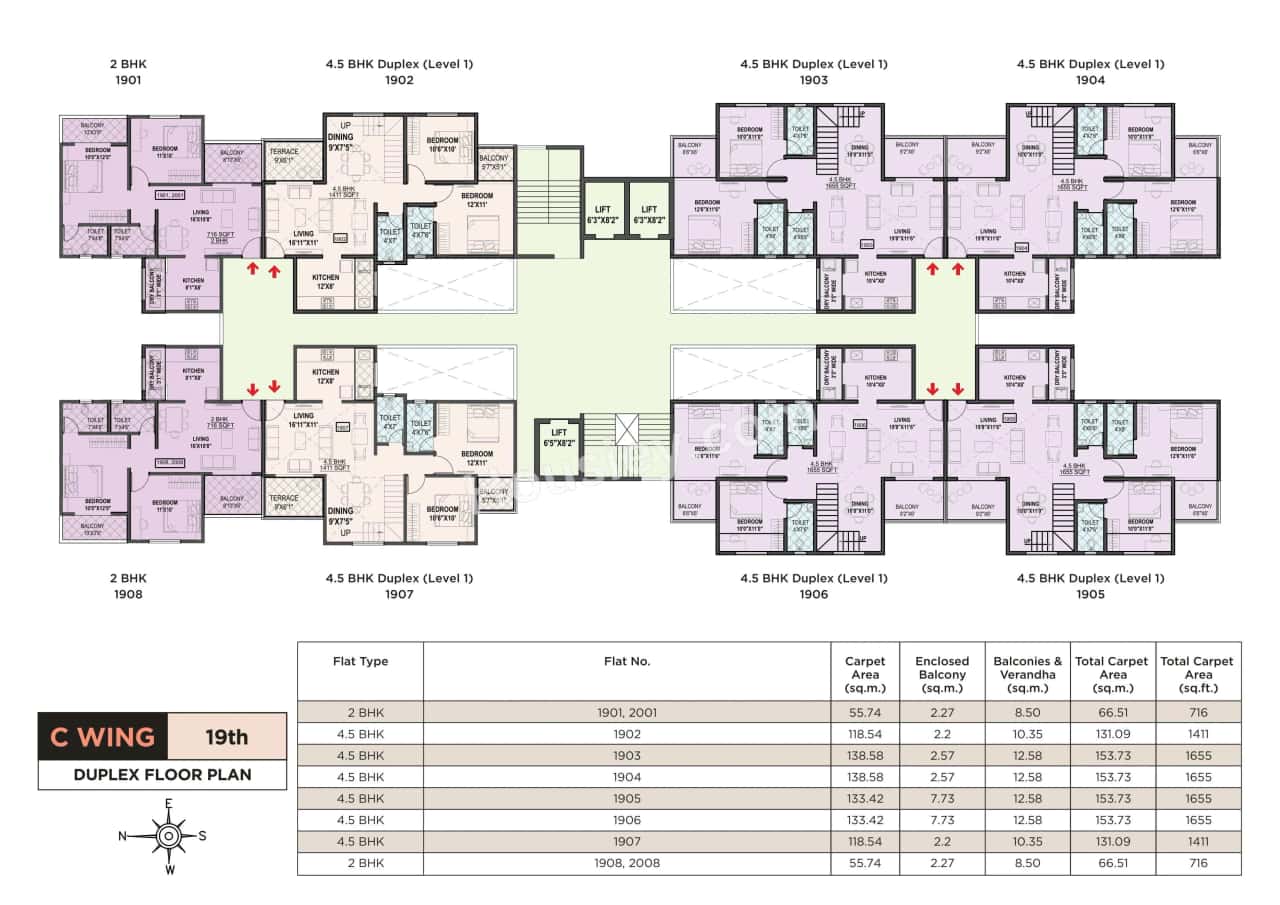
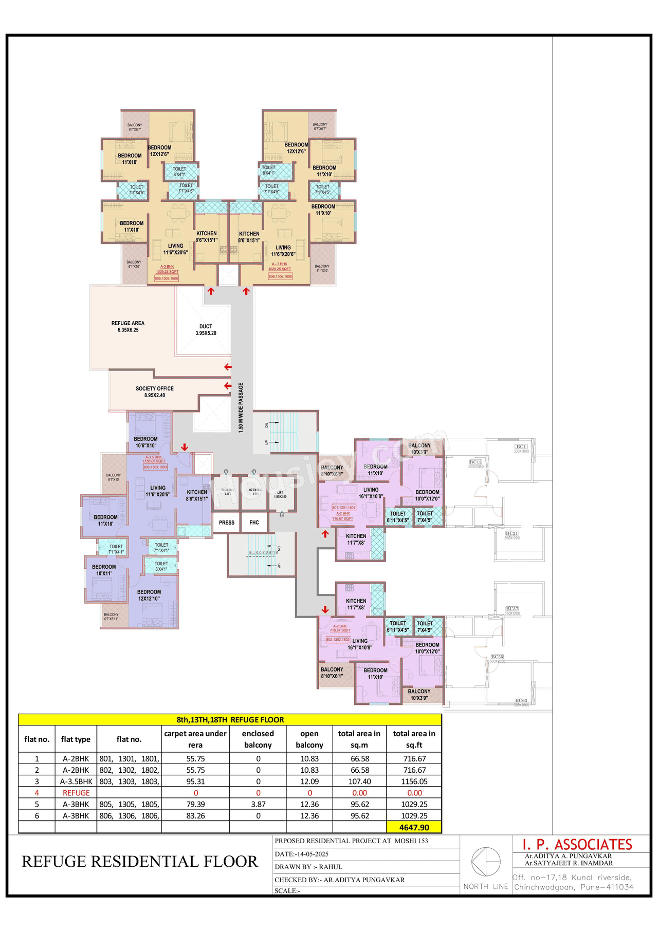
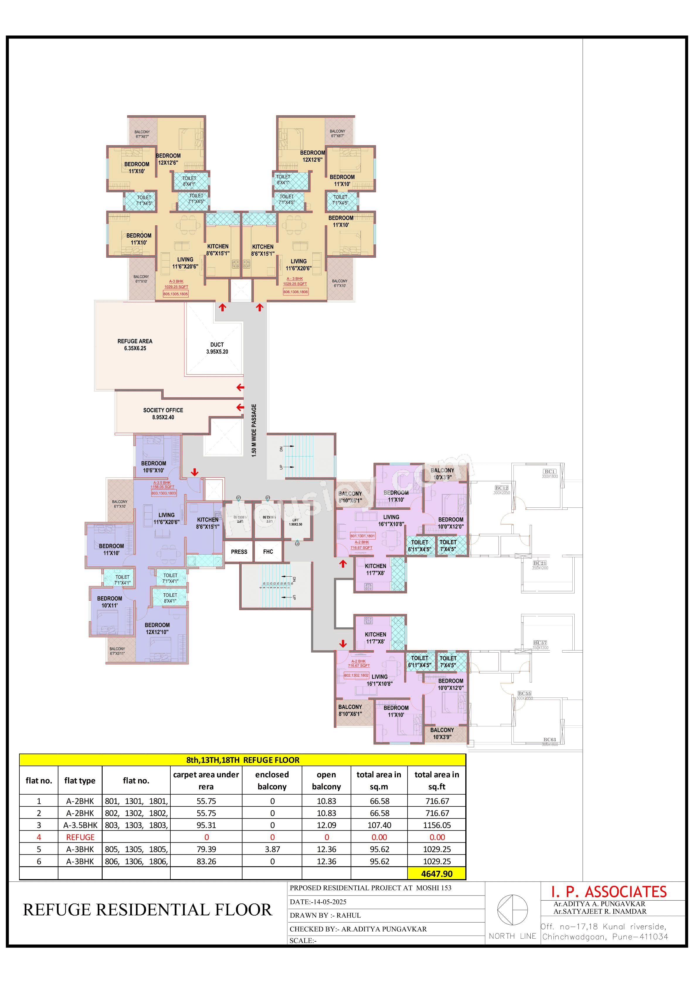
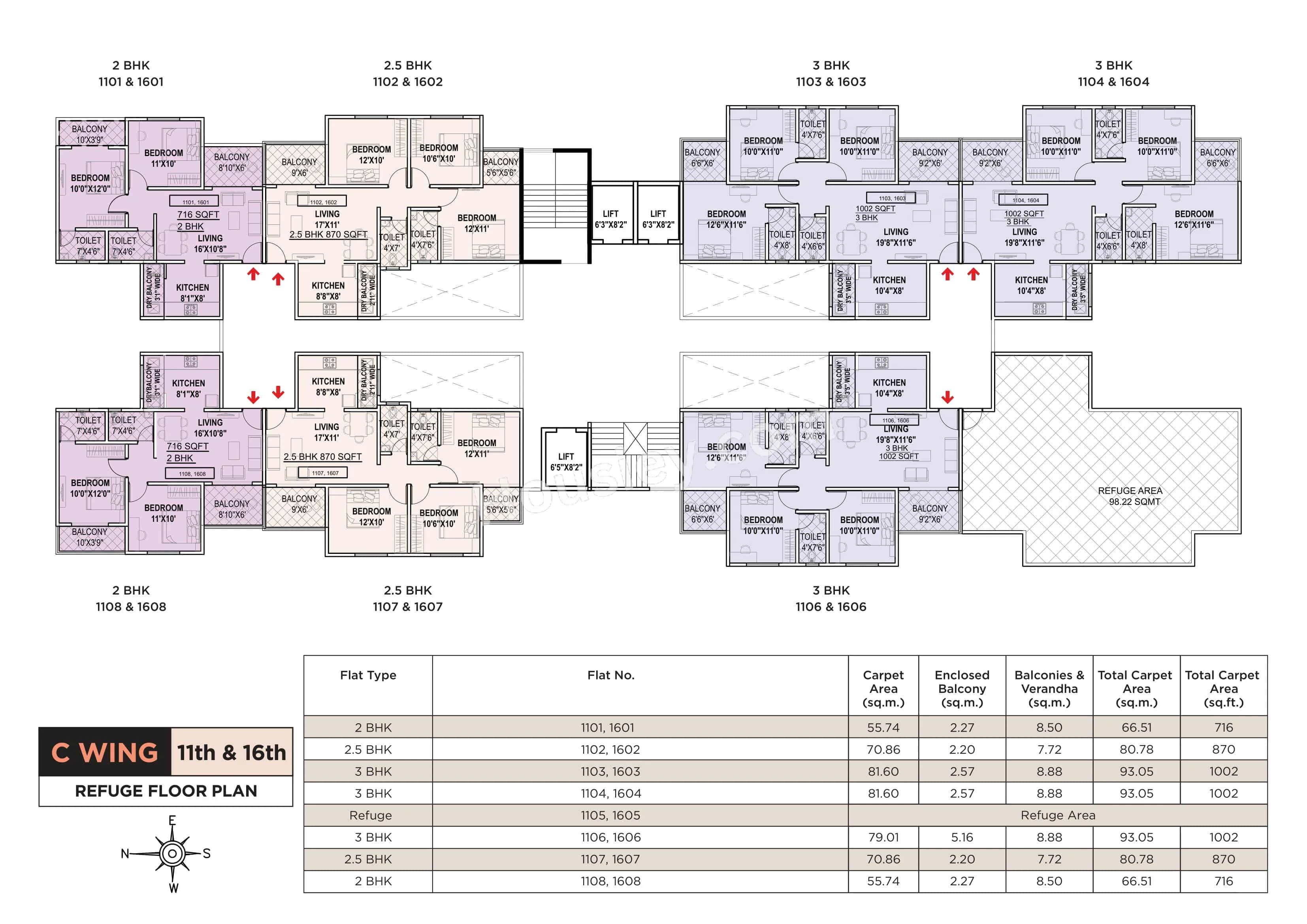
Carpet Area & Floor Plan
Gardenia project has 2BHK, 2.5BHK, 3BHK, 4BHK premium residences with -
2BHK - (571 to 738) sqft
2.5BHK - (836 to 884)
3BHK - (960 to 1029) sqft
4BHK - 1156 sqft
Silver Gardenia floor plan
Tower floor plan will have 12 flats 4 lifts & 2 staircases on each floor
Maintenance -
Silver Gardenia Pune Project maintenance varies with the configuration and the carpet area which are as follows-
2 BHK - Rs 3000 per month
2.5 BHK - Rs (3500 - 3700) per month
3 BHK - Rs (3900 - 4100) per month
4BHK - Rs 4600 per month
Gardenia Prices & its details can be found in the price section & Silver Gardenia Moshi brochure can be downloaded from the link mentioned below. Project has been praised by the home buyers & Silver Group Moshi review is 4 out of 5 from over all the clients who have visited the site.
Near Bankar Wasti, Borhadewadi, Moshi, Pune

Pros
Cons
Digital Lock
Vitrified Tiles
Granite Kitchen Platform
Stainless Steel Sink
Fire Fighting
Swimming Pool
Club House
Multi Purpose Court
Senior Citizen Area
Kids Pool
Football Court
Multi Purpose Lawn
Box Cricket
Yoga Zone
Meditation Zone
Temple Complex
Seating Area
Pool deck
Acupressure Pathway
Indoor games
+2 More












| Carpet Area | All Inc. Price (Inc. of Taxes & Charges) | Min Downpayment (Inc. Taxes) | Parking | Unit Plan |
|---|---|---|---|---|
571 sqftSold Out | ![]() | - | - | ![]() |
683 sqftSold Out | ![]() | - | - | ![]() |
716 sqftSold Out | ![]() | - | - | ![]() |
738 sqftSold Out | ![]() | - | - | ![]() |


Is there any litigation against this proposed project:
NoSilver Gardenia Commencement Certificate
Silver Gardenia Legal Title Report
Silver Gardenia Building Plan
Note: You can download more detailed documents by following this link
Silver Group

1 CityLocations
Pune






675 - 945 sqft
Tatva Landmarks
Developer





754 - 974 sqft
Nisarg Royal Developers
Developer
420 - 601 sqft
Sapphire Developers
Developer
726 - 915 sqft
Tatva Landmarks
Developer



666 - 718 sqft
Shree Aryaatech
Developer
435 - 663 sqft
Shankeshwar Group
Developer
748 - 993 sqft
Sahyadri Landmarks
Developer
Housiey Legal: Free Real Estate Legal Consultation
Get Expert Advice on RERA, Builder Refunds, Area Mismatch, Stuck Projects & More - at No Cost!