
















Land Parcel
Towers
Floors
Config
Carpet Area
RERA NO.
Possession Status
Target Possession
RERA Possession
Litigation
Platinum Moshi Project Overview
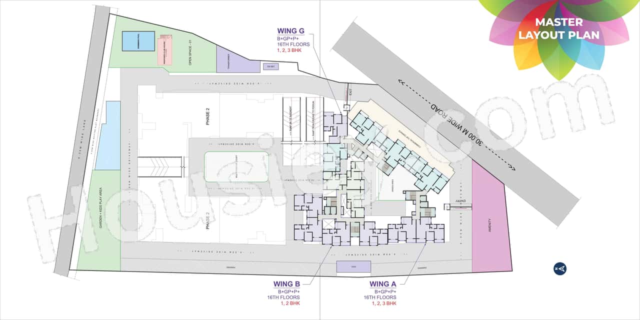
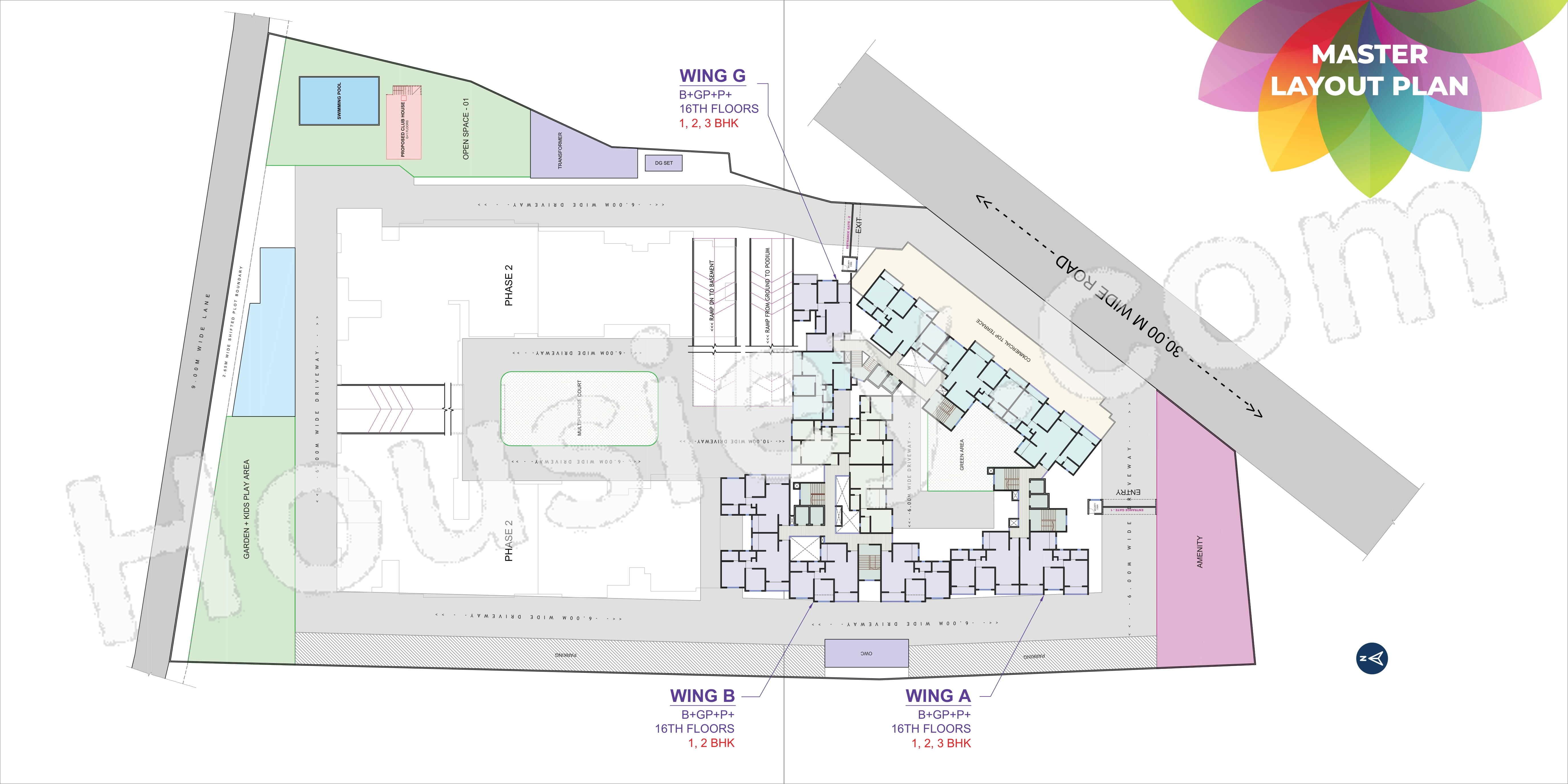
Platinum Citylight Project will be constructed on 3 acres of land parcel, 7 towers with G+P+16 floors having, 1 BHK, 2 BHK, 2.5 BHK, 3 BHK premium residences
Platinum Citylight location
Project is located Near Swami Samarth Math Kudlewasti, Moshi, Pune with -
Moshi PMT Bus Stand - 1 km
D-Mart Dehu - 2.5 km
Croma - 2.8 km
Platinum Citylight Moshi Project Amenities
First is Internal amenities -
Earthquake Resistant Structure, SS Sink, Vitrified Tiles, Anti Skid Flooring, MS Railing, Branded CP Fittings, Solar Water Heater, CCTV Survillence, Mosquito Net, etc
Platinum Group Moshi External Amenities
Project has 30+ amenities with likes of -
Club House
Swimming Pool
Kid's Play Area
Amphitheatre
Multipurpose Court
Platinum CitylightMoshiParking -
Project has two types of car parking facility -
1) Ground
2) Podium
Platinum Citylight Possession -
Rera Possession - December 2029
Target Possession - December 2027
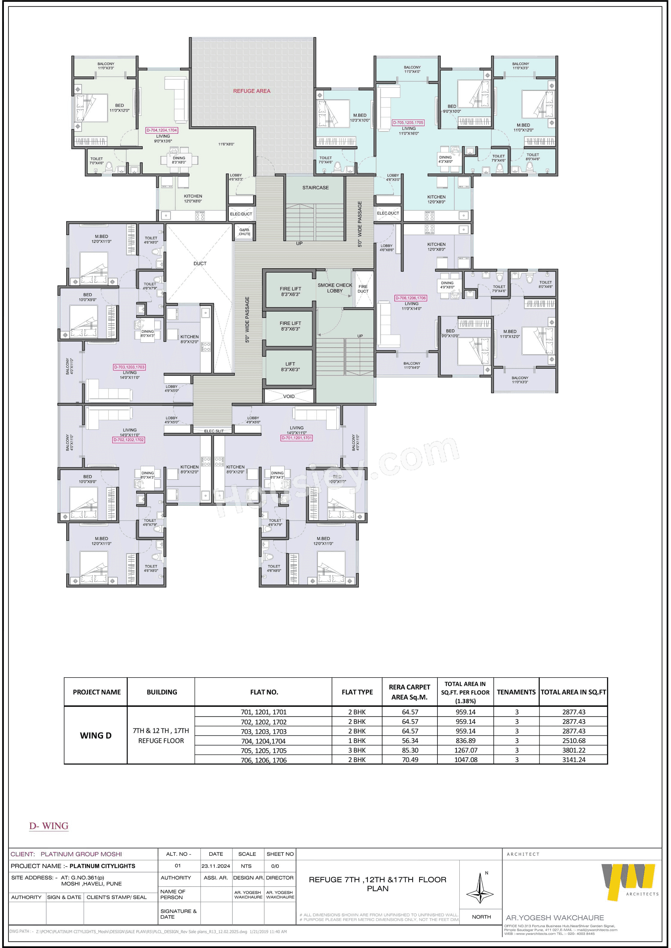
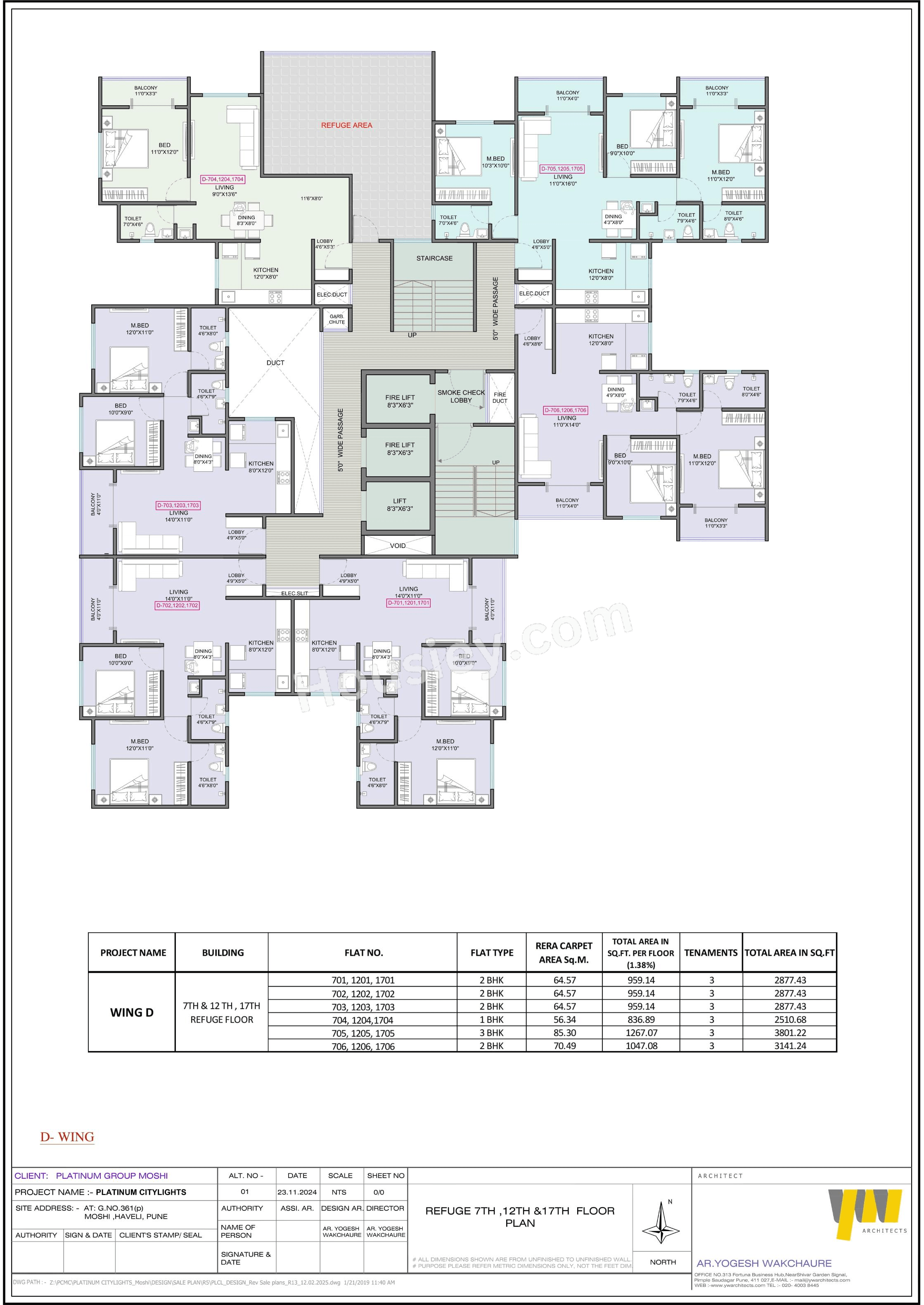
Carpet Area & Floor Plan -
Platinum Citylight project has 1BHK, 2BHK, 2.5BHK, 3BHK premium residences with -
1BHK - (479 to 543)sqft
2BHK - (690 to 760)sqft
2.5BHK - 809 sqft
3BHK - (918 to 980)sqft
Platinum Citylight Floor plan -
Tower floor plan will have 7 flats, 2 lifts & 2 staircases on each floor
Maintenance -
Platinum Citylight Pune Project maintenance varies with the configuration and the carpet area which are as follows-
1BHK - Rs (2000 - 2400) Per Month
2BHK - Rs (2900 - 3100) Per Month
2.5BHK - Rs 3400 Per Month
3BHK - Rs (3700 - 4000) Per Month
Platinum Citylight Moshi project sample flat is ready to view at the site.
Platinum Citylight Prices & its details can be found in the price section & Platinum Citylight Moshi brochure can be downloaded from the link mentioned below. Project has been praised by the home buyers & Platinum Group Moshireview is 4 out of 5 from over all the clients who have visited the site
Near Swami Samarth Math Kudlewasti, Moshi, Pune

Pros
Cons
Vitrified Tiles
Jaguar Fittings
Stainless Steel Sink
Branded Fittings
Solar Water Heater
Mosquito Mesh Windows
Acrylic Emulsion Paints
+2 More
Swimming Pool
Club House
Kids Play Area
Garden
Multi Purpose Court
Senior Citizen Area
Co Working Spaces
Rooftop Deck
Multi Purpose Lawn
Open Gym
Amphitheater
Yoga Zone
Meditation Zone
Temple Complex
Seating Area
+10 More

















| Carpet Area | All Inc. Price (Inc. of Taxes & Charges) | Min Downpayment (Inc. Taxes) | Parking | Unit Plan |
|---|---|---|---|---|
479 sqftSold Out | ![]() | - | - | ![]() |
543 sqftSold Out | ![]() | - | - | ![]() |


Is there any litigation against this proposed project:
NoPlatinum Citylight Commencement Certificate
Platinum Citylight Legal Title Report
Platinum Citylight Building Plan
Note: You can download more detailed documents by following this link
Platinum Group

1 CityLocations
Pune

675 - 945 sqft
Tatva Landmarks
Developer




726 - 915 sqft
Tatva Landmarks
Developer


666 - 718 sqft
Shree Aryaatech
Developer
435 - 663 sqft
Shankeshwar Group
Developer
748 - 993 sqft
Sahyadri Landmarks
Developer







811 - 811 sqft
Silver Group
Developer
Housiey Legal: Free Real Estate Legal Consultation
Get Expert Advice on RERA, Builder Refunds, Area Mismatch, Stuck Projects & More - at No Cost!