Nm Capri Overview & Description
- 2.25Land Parcel
- 2Towers
- G+24Floors
- 3BHKConfig
- 692-1165 Sq.ftCarpet Area
- P52100077412RERA No.
- March 2028Target Possession
- October 2028RERA Possession
About Nm Capri
Nm Ravet Project Overview
Nm Capri will be constructed on 2.25 acres of land parcels, 2 towers with G+24 floors having 3 BHK premium residences.
Nm Capri location
Project is located Near SB Patil School Road, Mukai chowk, Ravet, Pune ...
LocationView on Map
Near SB Patil School Road, Mukai chowk, Ravet, Pune
- - Sant Tukaram Maharaj Bridge - 2.1km
- - D-Mart - 2.5km
- - Akurdi Railway Station - 3.4km
Pros & Cons
Video
Amenities
Internal Amenities
Vitrified Tiles
Granite Kitchen Platform
Stainless Steel Sink
Mosquito Mesh Windows
External Amenities
Swimming Pool
Kids Play Area
Jogging Track
Garden
Multi Purpose Court
Kids Pool
Co Working Spaces
Library
Amphitheater
Meditation Zone
Seating Area
Gazebo
Indoor games
party lawn
yoga deck
Gymnasium
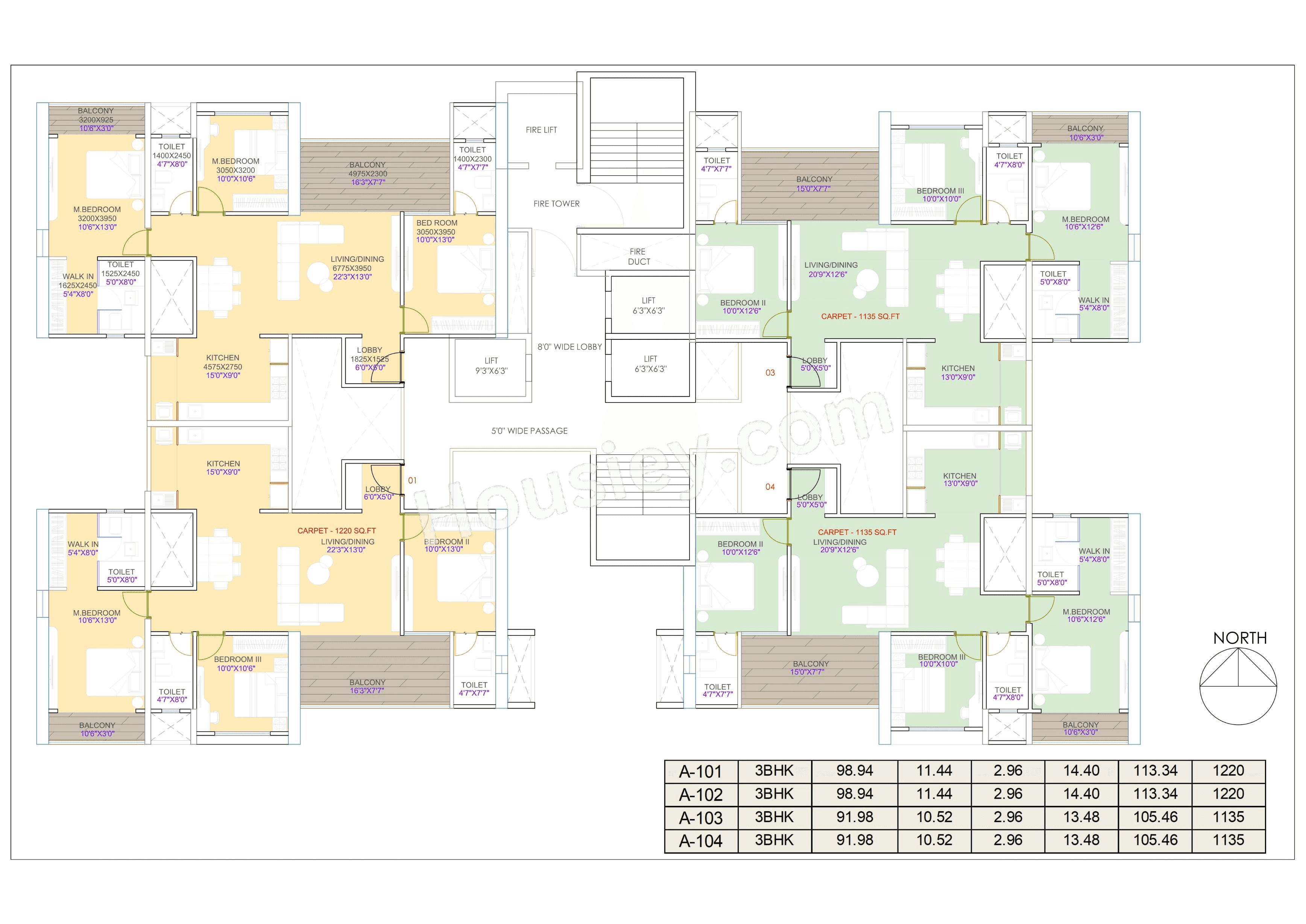
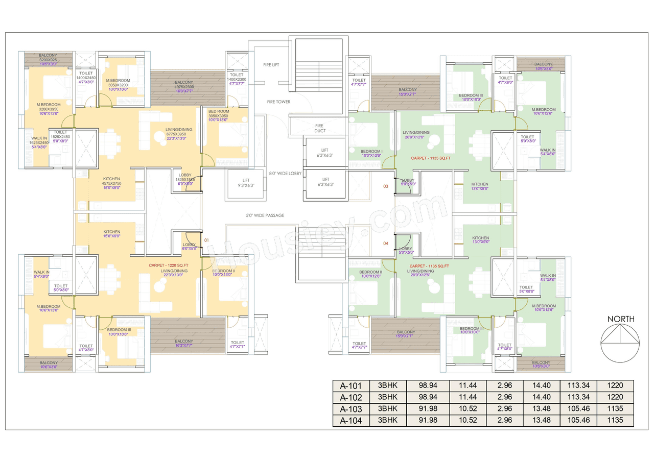
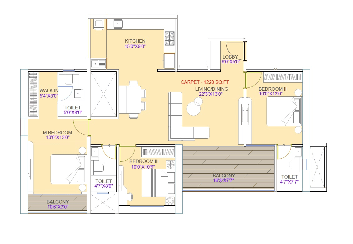
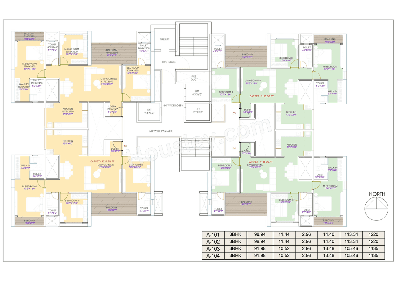
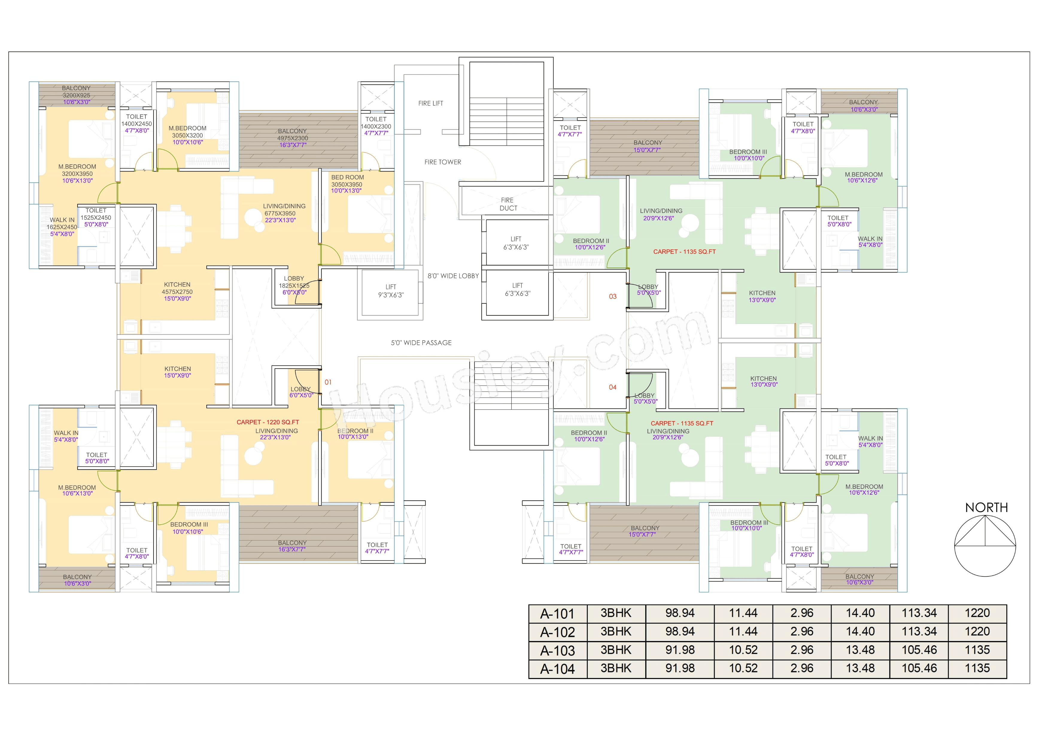
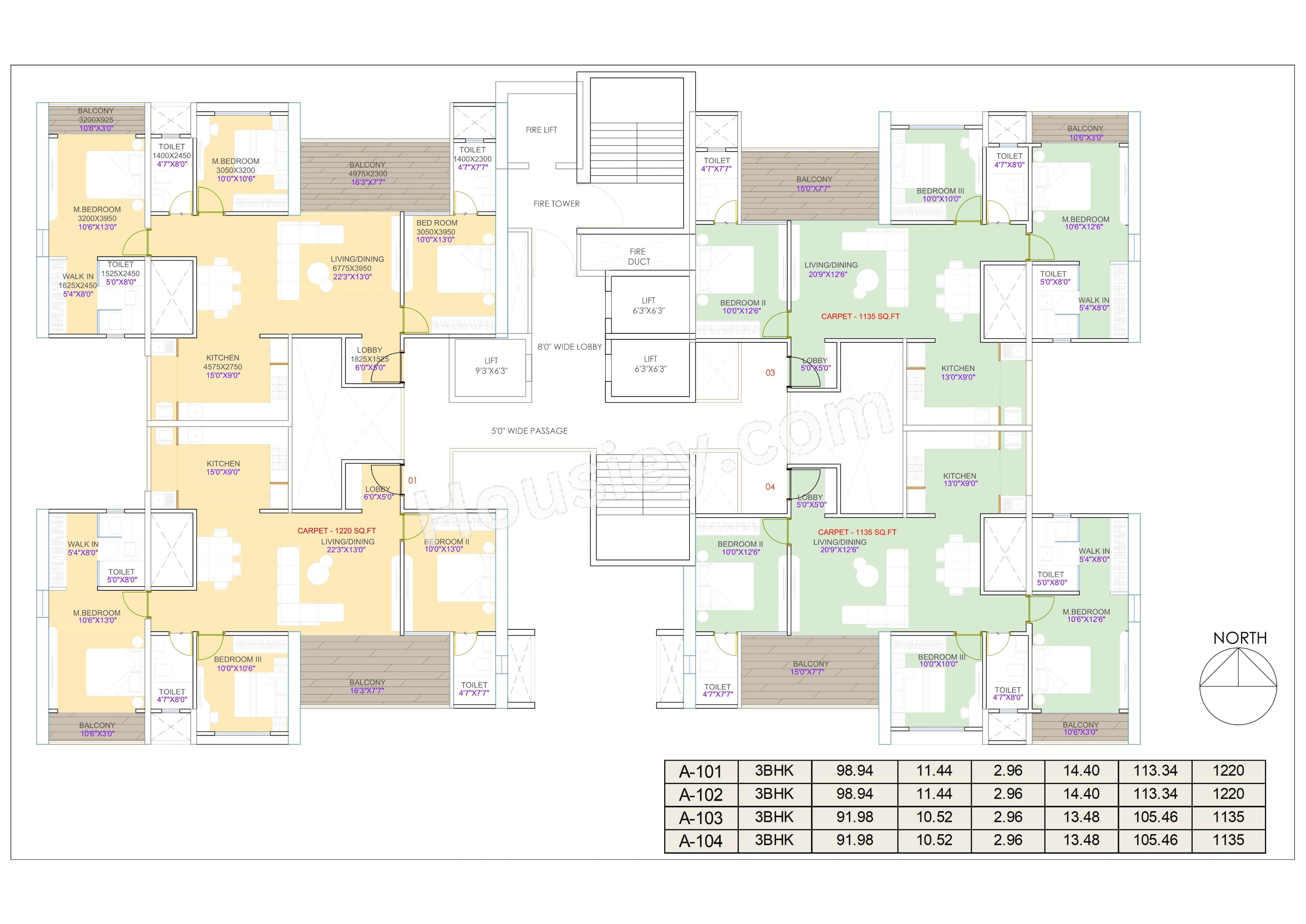
Master & Floor Plan
Nm Capri QR Codes
Nm Capri Details are available at https://maharera.mahaonline.gov.in under registered projects.Payment Scheme
Project approved by











