








Land Parcel
Towers
Floors
Config
Carpet Area
RERA NO.
Possession Status
Target Possession
RERA Possession
Litigation
Mana Sarjapur Project Overview
Mana Skanda Forest Province will be constructed on 10 Acres of land parcel, 8 Towers with 2B+G+36 floors having 2.5BHK,3BHK, 3.5BHK,4BHK premium residences.
Mana Skanda Forest Province location
Project is Located On Varthur - Sarjapur Road, Sarjapur, Bangalore with -
Greenwood High International School - 350m
United World Academy - 350m
Oakridge International School - 2.0km
Mana Skanda Forest Province Sarjapur Project Amenities
First is Internal amenities -
Vitrified Tiles, Branded Fittings, Kitchen Platform, SS Sink, Power Backup & many more
Mana Skanda Sarjapur External Amenities
Project has 30+ amenities with likes of -
The Forest of Life
Floral Garden
Outdoor Picnic Area
Pickleball Court
Yoga Deck & Many More
Mana Skanda Forest Province Sarjapur Parking -
Project has one type of car parking facility -
1) Basement
Mana Skanda Forest Province Possession -
Rera Possession - June 2031
Target Possession - December 2030
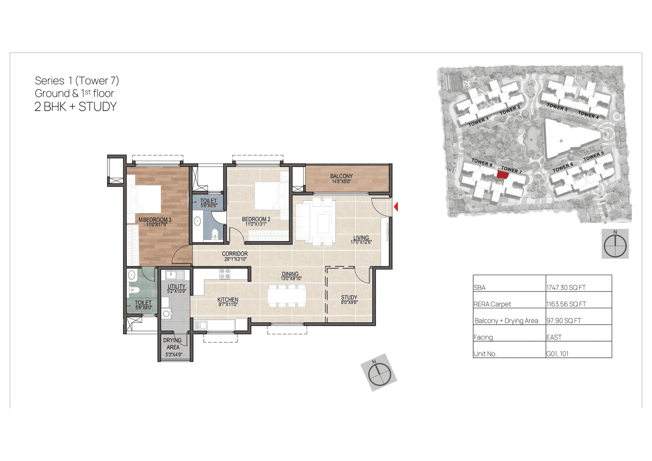
Carpet Area & Floor Plan
Forest Province project has 2.5BHK,3BHK, 3.5BHK,4BHK premium residences with -
2.5BHK - 1747 sqft
3BHK - 1783 sqft
3.5BHK - 2250 sqft
4BHK - 2655 sqft
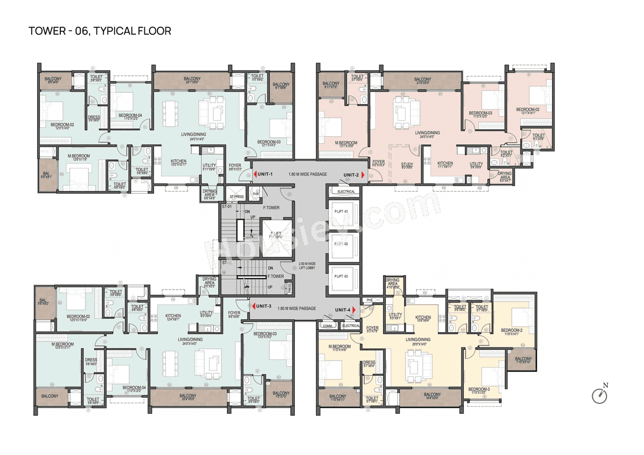
Mana Skanda Forest Province floor plan
Tower floor plan will have 4 flats 4 lifts & 2 staircases on each floor
Maintenance -
Mana Skanda Forest Province Bangalore Project maintenance varies with the configuration and the carpet area which are as follows-
2.5BHK Rs 10400 per month
3BHK Rs 10700 per month
3.5BHK Rs 13500 per month
4BHK Rs 15900 per month
Mana Skanda Forest Province Prices & its details can be found in the price section & Mana Skanda Forest Province Sarjapur brochure can be downloaded from the link mentioned below. Project has been praised by the home buyers & Mana Skanda Sarjapur review is 4 out of 5 from over all the clients who have visited the site.
On Varthur - Sarjapur Road, Chikkavaderapura, Sarjapur, Bangalore
Pros
Cons
Vitrified Tiles
Granite Kitchen Platform
Stainless Steel Sink
Branded Fittings
Swimming Pool
Kids Play Area
Multi Purpose Court
Senior Citizen Area
Kids Pool
Outdoor Gym
Cricket Pitch
Basketball Court
Yoga Zone
Pool deck
Cycling Track
Creche Play Area
Gazebo
Pet Park
Yoga Deck
+7 More









| Build-up Area | Carpet Area | All Inc. Price (Inc. of Taxes & Charges) | Min Downpayment (Inc. Taxes) | Parking | Unit Plan |
|---|---|---|---|---|---|
1747 sqft | 1164 sqft | 2.09 Cr All In | 21.00 Lacs | 1 | ![]() |

Is there any litigation against this proposed project:
NoMana Skanda Forest Province Commencement Certificate
Mana Skanda Forest Province Legal Title Report
Mana Skanda Forest Province Layout Plan
Note: You can download more detailed documents by following this link
Mana Skanda

2 CitiesLocations
Bangalore Rural, Bangalore Urban


Prices are negotiable
2675 - 3891 sqft
Arvind Smartspaces
Developer






1921 - 3117 sqft
ATCO Projects
Developer



2712 - 3953 sqft
Saiven Developers
Developer


3195 - 3485 sqft
Genurise Builders
Developer
2655 - 3389 sqft
Buildiko Ventures
Developer

2116 - 2200 sqft
Modern Spaaces
Developer

Housiey Legal: Free Real Estate Legal Consultation
Get Expert Advice on RERA, Builder Refunds, Area Mismatch, Stuck Projects & More - at No Cost!