






Land Parcel
Towers
Floors
Config
Carpet Area
RERA NO.
Possession Status
Target Possession
RERA Possession
Litigation
Kohinoor Ravet Project Overview
Kohinoor Grandeur Ravet will be constructed on 7 Acres of land parcel consisting of 4 Towers of Podium+17 floors having 3 BHK premium residences.
Kohinoor Grandeur Ravet location
Project is located Near Kiwale Road in Ravet with -
Mumbai Pune Bangalore Highway - 100m
Mukai Chowk - 100m
Bumkar Chowk - 6.8km from the project
Grandeur Ravet Amenities
First is Internal amenities -
All apartments are unfurnished with branded fittings and fixtures with
CCTV For Common Area, Fire Alarm, Smoke Detector, Sprinklers, Video Door Phone, Kajaria Tiles, Black Granite Platform, Jaquar Fittings, Digital Lock For Main Door Etc.
Kohinoor Ravet External Amenities
Project has 25+ luxurious amenities with likes of -
1) Podium Level Club House
2) Swimming Pool
3) Kids Play Area
4) Multi Purpose Area
5) Jogging/Walking Area and many more.
Grandeur Kohinoor Ravet Parking
Project has one type of car parking facility which are as follows -
1) Podium Parking
Kohinoor Ravet Possession -
Rera Possession - September 2023.
Target Possession - December 2022.
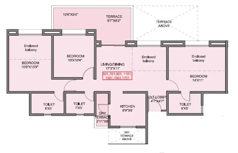
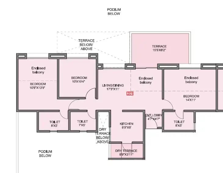
Carpet Area & Floor Plan
Grandeur Ravet project has 3BHK premium residences with -
3BHK - (1034 to 1123) sqft
Kohinoor Grandeur Ravet floor plans
Project Tower D floor plan will have 4 flats, 2 lifts & 2 staircases on each floor
Maintenance -
Kohinoor Ravet maintenance varies with the configuration and the carpet area which are as follows -
3BHK - Rs (6000 - 8000) per month
Kohinoor Ravet project sample flat is ready to view at site.
Kohinoor Grandeur Ravet price & its details can be known at the price section & Kohinoor Grandeur Ravet brochure can be downloaded from the link mentioned below. Project has been praised by the home buyers & Kohinoor Ravet reviews is 4 out of 5 from over all the clients who have visited the site.
Near Kiwale Road, Ravet, Pune

Pros
Cons
Intercom Facility
Vitrified Tiles
Granite Kitchen Platform
Stainless Steel Sink
Swimming Pool
Club House
Kids Play Area
Jogging Track
Garden
Multi Purpose Court



| Carpet Area | All Inc. Price (Inc. of Taxes & Charges) | Min Downpayment (Inc. Taxes) | Parking | Unit Plan |
|---|---|---|---|---|
1034 sqftSold Out | ![]() | - | - | ![]() |
1045 sqftSold Out | ![]() | - | - | ![]() |
1112 sqftSold Out | ![]() | - | - | ![]() |
1123 sqftSold Out | ![]() | - | - | ![]() |


Is there any litigation against this proposed project:
NoKohinoor Group

5 CitiesLocations
Bangalore Rural, Bangalore Urban, Mumbai City, Mumbai suburban, Pune


727 - 971 sqft
Ceratec Group
Developer
755 - 2220 sqft
Urban Space Creators
Developer


858 - 1052 sqft
Aswani Promoters And Builders
Developer
725 - 1337 sqft
Jhamtani Group
Developer

768 - 1791 sqft
Yashada Realty Group
Developer

755 - 1277 sqft
D A Borade And Sons
Developer
1423 - 1423 sqft
Vision Creative Group
Developer



940 - 970 sqft
Sukhwani Constructions
Developer
810 - 1561 sqft
Yashada Realty Group
Developer


Housiey Legal: Free Real Estate Legal Consultation
Get Expert Advice on RERA, Builder Refunds, Area Mismatch, Stuck Projects & More - at No Cost!