




Land Parcel
Towers
Floors
Config
Carpet Area
RERA NO.
Possession Status
Target Possession
RERA Possession
Litigation
HM Group Sarjapur Project Overview
HM Scottsville will be constructed on 1.5 Acres of land parcel, 2 Towers with 2B+G+19 Floors having 2 BHK, 2.5 BHK, & 3 BHK premium residences.
HM Scottsville location
Project is located Near Kasavanahalli Main Road, Kasavanahalli, Sarjapur, Bangalore with -
Amrita Vishwa Vidyapeetham - 800m
Manipal Hospital - 3.7km
Centro - 4.9km
HM Scottsville Project Amenities
First is Internal amenities -
Vitrified Tiles, Ceramic Tiles, Antiskid Tiles, Branded Fittings, Kitchen Platform, Ss Sink & More
HM Group Sarjapur External Amenities
Project has 20+ Amenities with likes of -
Clubhouse
Town Hall with Community Kitchen
The Tea Lounge
Discovery Center & Creative Park and many more
HM Group Sarjapur Parking -
The project has one type of car parking facility
1)Basement
HM Scottsville Possession -
Rera Possession - June 2026
Target Possession - June 2026
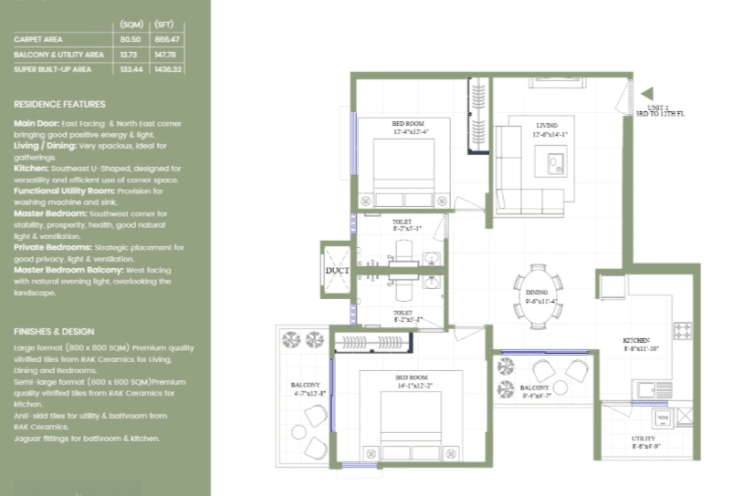
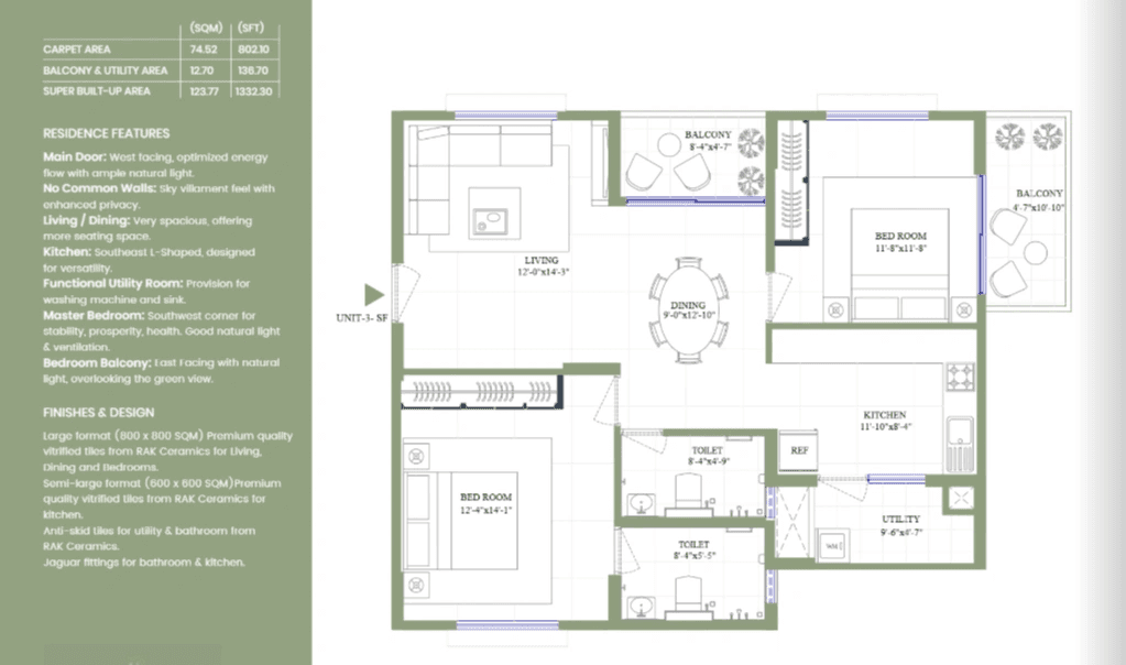
Build Up Area & Floor Plan
HM Scottsville project has 2BHK, 2.5BHK, 3BHK premium residences with -
2BHK - (1332 - 1518) sqft
2.5BHK - (1258 - 1470) sqft
3BHK - (1557 to 1835) sqft
HM Scottsville Floor plan -
Tower Floor Plan will have 4 flats 2 Lift & 1 Staircases on each Floor
Maintenance -
HM Scottsville Bangalore Project maintenance varies with the configuration and the carpet area which are as follows-
2BHK - Rs (6700 - 7600) per month
2.5BHK - Rs (6300 - 7400) per month
3BHK - Rs (7800 - 9200) per month
HM Scottsville Sarjapur sample flat is ready 2BHK & 3BHK to view at the site.
HM Scottsville Prices & its details can be found in the price section & HM Scottsville brochure can be downloaded from the link mentioned below. Project has been praised by the home buyers & HM Group Sarjapur review is 4 out of 5 from over all the clients who have visited the site.
Near Kasavanahalli Main Road, Kasavanahalli, Sarjapur, Bangalore
Pros
Cons
Vitrified Tiles
Granite Kitchen Platform
Stainless Steel Sink
Branded Fittings
Swimming Pool
Jogging Track
Garden
Multi Purpose Court
Co Working Spaces
Basketball Court
Yoga Zone
Party Terrace
Cycle Station
Gymnasium
Walking Track
Fitness Deck


| Build-up Area | Carpet Area | All Inc. Price (Inc. of Taxes & Charges) | Min Downpayment (Inc. Taxes) | Parking | Unit Plan |
|---|---|---|---|---|---|
1332 sqft | 999 sqft | 1.80 Cr All In | 18.00 Lacs | 1 | ![]() |
1418 sqft | 1063 sqft | 1.90 Cr All In | 19.00 Lacs | 1 | ![]() |
1436 sqft | 1077 sqft | 2.00 Cr All In | 20.00 Lacs | 1 | ![]() |
1518 sqft | 1138 sqft | 2.10 Cr All In | 21.00 Lacs | 1 | ![]() |

Is there any litigation against this proposed project:
NoHM Scottsville Commencement Certificate
HM Scottsville Legal Title Report
HM Scottsville Building Plan / Layout Plan Approval
Note: You can download more detailed documents by following this link
Capstone Life

2 CitiesLocations
Bangalore Rural, Bangalore Urban


2675 - 3891 sqft
Arvind Smartspaces
Developer






1921 - 3117 sqft
ATCO Projects
Developer



2712 - 3953 sqft
Saiven Developers
Developer


3195 - 3485 sqft
Genurise Builders
Developer
2655 - 3389 sqft
Buildiko Ventures
Developer

2116 - 2200 sqft
Modern Spaaces
Developer

Housiey Legal: Free Real Estate Legal Consultation
Get Expert Advice on RERA, Builder Refunds, Area Mismatch, Stuck Projects & More - at No Cost!