









Land Parcel
Towers
Floors
Config
Carpet Area
RERA NO.
Possession Status
Target Possession
RERA Possession
Litigation
Godrej Mamurdi Project Overview
Forest Grove will be constructed on 7 Acres, 7 Towers, G+22 Floors, 2BHK, 3BHK premium residences.
Godrej Forest Grove location
Project is located On Near Mumbai-Bangalore Highway, Mukai Chowk, Mamurdi, Pune with -
Gahunje Road - 1.1km
Kiwale Road - 2.2km
Mukai Chowk Bus Station - 2.6km
Godrej Forest Grove Mamurdi Amenities
First is Internal amenities -
All apartments are unfurnished with branded fittings and fixtures with
Vitrified Tiles, Branded Fittings, Kitchen Platform, Powder Coated Aluminium Windows With Mosquito Mesh, SS Sink, Video Door Phone, Solar Water in Master Bedroom many more.
Godrej Properties Mamurdi External Amenities
Project has 35+ luxurious amenities with likes of -
Jogging Track
Gymnasium
Club House
Multipurpose Court
Cricket Pitch & many more
Godrej Properties Forest Grove Mamurdi Parking
Project has One types of car parking facility which ae follows -
1) Podium Level
Godrej Forest Grove Possession -
Rera Possession - December 2026
Target Possession - December 2027
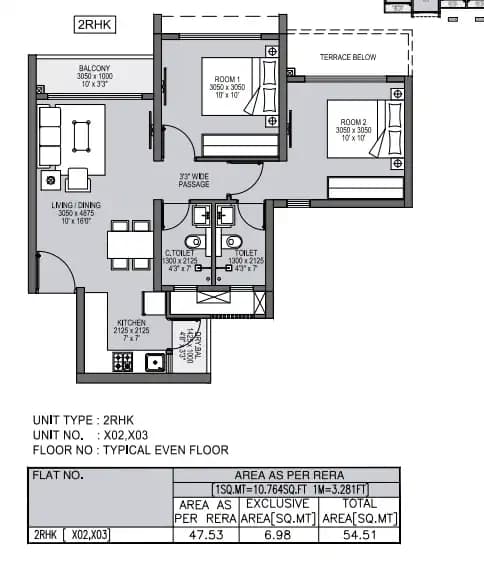
Carpet Area & Floor Plan
Godrej Forest Grove Mamurdi project has 2BHK & 3BHK premium residences with -
2BHK - (587 to 629) sqft
3BHK - (705 to 749) sqft
Godrej Forest Grove floor plans
All Tower floor plan will have 8 flats, 3 lifts & 2 staircases on each floor.
Maintenance -
Godrej Forest Grove Pune Project maintenance varies with the configuration and the carpet area which are as follows-
2BHK - Rs (2000 - 3000) per month
3BHK - Rs 3500 per month
Forest Grove Mamurdi project sample flat is ready to view at site.
Forest Grove & its details can be known at the price section & Forest Grove Mamurdi brochure can be downloaded from the link mentioned below. Project has been praised by the home buyers & Godrej Properties Mamurdi reviews is 4 out of 5 from over all the clients who have visited the site.
Near Mumbai-Bangalore Highway, Mukai Chowk, Mamurdi, Pune


Pros
Cons
Video Door Phone
Vitrified Tiles
Granite Kitchen Platform
Stainless Steel Sink
Branded Fittings
Solar Water Heater
Inverter Backup
Swimming Pool
Club House
Kids Play Area
Jogging Track
Garden
Multi Purpose Court
Indoor Gym
Senior Citizen Area
Kids Pool
Squash Court
Tennis Court
Movie Theatre
Cricket Pitch
Multi Purpose Lawn
Roof Top Sky Garden
+16 More


| Carpet Area | All Inc. Price (Inc. of Taxes & Charges) | Min Downpayment (Inc. Taxes) | Parking | Unit Plan |
|---|---|---|---|---|
587 sqftSold Out | ![]() | - | - | ![]() |
629 sqftSold Out | ![]() | - | - | ![]() |


Is there any litigation against this proposed project:
NoCommencement Certificate Godrej Forest Grove
Legal Title Report Godrej Forest Grove
Layout Plan Godrej Forest Grove
Note: You can download more detailed documents by following this link
Godrej Properties

7 CitiesLocations
Hyderabad, Ahmedabad, Bangalore Rural, Bangalore Urban, Mumbai City, Pune, Mumbai suburban

530 - 991 sqft
Vighnaharta Group
Developer
447 - 649 sqft
Kohinoor Group
Developer--1700652968330-img.webp&w=3840&q=75)



604 - 1053 sqft
Millennium Developers
Developer
745 - 1101 sqft
Yashada Realty Group
Developer
734 - 1022 sqft
Shubhlaxmi Developers
Developer



638 - 1036 sqft
Goyal Properties
Developer
Housiey Legal: Free Real Estate Legal Consultation
Get Expert Advice on RERA, Builder Refunds, Area Mismatch, Stuck Projects & More - at No Cost!