











Land Parcel
Towers
Floors
Config
Carpet Area
RERA NO.
Possession Status
Target Possession
RERA Possession
Litigation
Gawade Ravet Project Overview
Gawade Geo Aristo will be constructed on 1 acre of land parcel, 1 tower with G+P+20 floors having 3BHK premium residences.
Gawade Geo Aristo location
Project is located Near Dharma raj Bridge, Ganesh Nagar, Ravet, Pune with -
D-Mart - 2.1km
Pune - Mumbai Highway - 3.3km
Dehuroad Railway Station -4.7km
Gawade Geo Aristo Ravet Project Amenities
First is Internal amenities -
Vetrified Tiles, Granite Kitchen Platform, Aluminium Sliding Windows, Anti Skid Flooring, SS Sink, MS Safety, Mosquito Mesh, Earthquake Safety & many more
Gawade Group Ravet External Amenities
Project has 30+ luxurious amenities with likes of -
Meditation Zone
Gymnasium
Co-working Space
Kids Play Area
Senior citizen seating area & Many More
Gawade Group Geo Aristo Ravet Parking -
Project has two types of car parking facilities -
1) Ground
2) Podium
Gawade Geo Aristo Possession -
Rera Possession - December 2029
Target Possession - March 2028
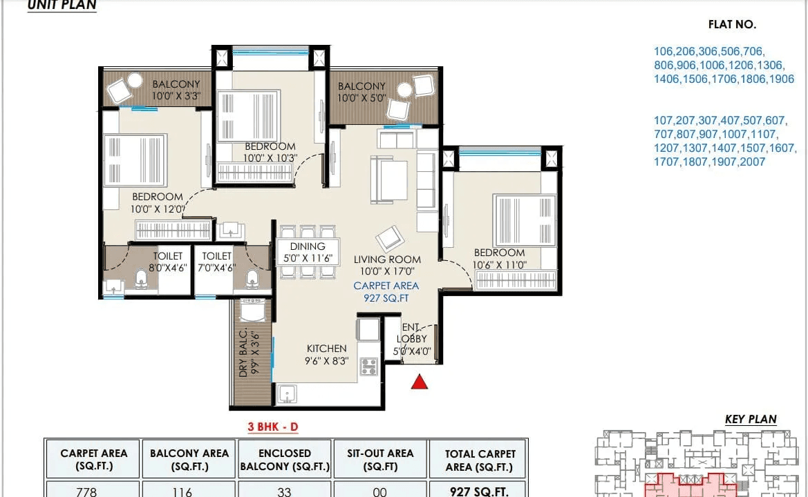
Carpet Area & Floor Plan
Gawade Geo Aristo Ravet project has 2BHK, 3BHK premium residences with -
3BHK - (927 to 1275) sqft
Maintenance -
Gawade Geo Aristo Pune Project maintenance varies with the configuration and the carpet area which are as follows-
3BHK- Rs (4500 - 6000) per month
Gawade Geo Aristo project sample flat is ready to view at site.
Geo Aristo Prices & its details can be found in the price section & Gawade Geo Aristo Ravet brochure can be downloaded from the link mentioned below. Project has been praised by the home buyers & Gawade Group Ravet review is 4 out of 5 from over all the clients who have visited the site
Near Dharmaraj Bridge, Ganesh Nagar, Ravet, Pune
Pros
Cons
Vitrified Tiles
Granite Kitchen Platform
Stainless Steel Sink
Mosquito Mesh Windows
Kids Play Area
Jogging Track
Garden
Co Working Spaces
Library
Amphitheater
Meditation Zone
Seating Area
Gazebo
Indoor games
Yoga Deck
Gymnasium



| Carpet Area | All Inc. Price (Inc. of Taxes & Charges) | Min Downpayment (Inc. Taxes) | Parking | Unit Plan |
|---|---|---|---|---|
927 sqft | 1.07 Cr All In | 16.00 Lacs | 1 | ![]() |
1076 sqft | 1.26 Cr All In | 19.00 Lacs | 1 | ![]() |
1269 sqft | 1.49 Cr All In | 22.00 Lacs | 1 | ![]() |
1275 sqft | 1.50 Cr All In | 22.00 Lacs | 1 | ![]() |

Is there any litigation against this proposed project:
NoCommencement Certificate Gawade Geo Aristo
Legal Title Report Gawade Geo Aristo
Layout Plan Gawade Geo Aristo
Note: You can download more detailed documents by following this link
Gawade Group

1 CityLocations
Pune


727 - 971 sqft
Ceratec Group
Developer
755 - 2220 sqft
Urban Space Creators
Developer


858 - 1052 sqft
Aswani Promoters And Builders
Developer
725 - 1337 sqft
Jhamtani Group
Developer

768 - 1791 sqft
Yashada Realty Group
Developer

755 - 1277 sqft
D A Borade And Sons
Developer
1423 - 1423 sqft
Vision Creative Group
Developer



940 - 970 sqft
Sukhwani Constructions
Developer



Housiey Legal: Free Real Estate Legal Consultation
Get Expert Advice on RERA, Builder Refunds, Area Mismatch, Stuck Projects & More - at No Cost!