












Land Parcel
Towers
Floors
Config
Carpet Area
RERA NO.
Possession Status
Target Possession
RERA Possession
Litigation
DML Moshi Project Overview
DML Hexa Towers Project will be constructed on 3.5 acre of land parcel, 5 towers with B+G+P+13 floors having, 2 BHK, 3 BHK premium residences
DML Hexa Towers location
Project is located Opp. Medas Touch Hotel, Moshi, pune with -
Moshi PMT Bus Stand - 2.8km
MIT Alandi Campus - 3.4km
D Mart - 4.2km
DML Hexa Towers Moshi Project Amenities
First is Internal amenities -
Earthquake Resistant Structure, Vitrified Tiles, MS Safety Grill, Anti Skid Tiles, SS Sink, Branded Cp Fittings, Power Backup Area, Fire Fighting System, Rain Water Harvesting, CCTV Survillence, etc
DML Associates Moshi External Amenities
Project has 20+ amenities with likes of -
Club House
Gymnasium
Multipurpose Hall
Yoga Zone
Party Lawn & many more
DML Hexa Towers Moshi Parking -
Project has three types of car parking facilities -
1) Basement
2) Ground
3) Podium
DML Hexa Towers Possession -
Rera Possession - December 2027
Target Possession - December 2027
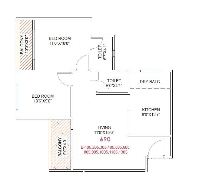
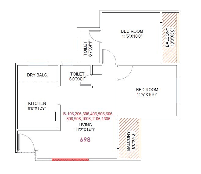
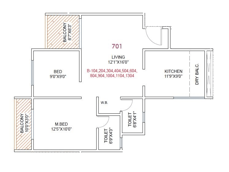
Carpet Area & Floor Plan -
DML Hexa Towers project has 2BHK, 3BHK premium residences with -
2BHK - (690 to 718) sqft
3BHK - (856 to 858) sqft
DML Hexa Towers Floor plan -
Tower floor plan will have 7 flats, 3 lifts & 2 staircases on each floor
Maintenance -
DML Hexa Towers Pune Project maintenance varies with the configuration and the carpet area which are as follows-
2BHK - Rs (2700 - 3000) Per Month
3BHK - Rs (3500 - 3600) Per Month
DML Hexa Towers Moshi project sample flat is ready to view at the site.
Hexa Towers Prices & its details can be found in the price section & DML Hexa Towers Moshi brochure can be downloaded from the link mentioned below. Project has been praised by the home buyers & DML Associates Moshi review is 4 out of 5 from over all the clients who have visited the site
Opp. Medas Touch Hotel, Moshi, pune
Pros
Cons
Vitrified Tiles
Granite Kitchen Platform
Stainless Steel Sink
Branded Fittings
Water Purifier
Exhaust Fan
Solar Water Heater
+5 More
Club House
Kids Play Area
Multi Purpose Court
Senior Citizen Area
Multi Purpose Lawn
Yoga Zone
Seating Area
Entrance Gate
Open Car Parking
Gazebo
Indoor games
party lawn
Landscaped Garden
Gymnasium
Community Hall
+1 More





| Carpet Area | All Inc. Price (Inc. of Taxes & Charges) | Min Downpayment (Inc. Taxes) | Parking | Unit Plan |
|---|---|---|---|---|
690 sqftSold Out | ![]() | - | - | ![]() |
698 sqftSold Out | ![]() | - | - | ![]() |
701 sqftSold Out | ![]() | - | - | ![]() |
718 sqftSold Out | ![]() | - | - | ![]() |


Is there any litigation against this proposed project:
NoDML Hexa Towers Commencement Certificate
DML Hexa Towers Legal Title Report
DML Hexa Towers Building Plan
Note: You can download more detailed documents by following this link

675 - 945 sqft
Tatva Landmarks
Developer




726 - 915 sqft
Tatva Landmarks
Developer


666 - 718 sqft
Shree Aryaatech
Developer
435 - 663 sqft
Shankeshwar Group
Developer
748 - 993 sqft
Sahyadri Landmarks
Developer








811 - 811 sqft
Silver Group
Developer
Housiey Legal: Free Real Estate Legal Consultation
Get Expert Advice on RERA, Builder Refunds, Area Mismatch, Stuck Projects & More - at No Cost!