




Land Parcel
Towers
Floors
Config
Carpet Area
RERA NO.
Possession Status
Target Possession
RERA Possession
Litigation
Vj Kharadi Project Overview
Vj Yashwin Orizzonte will be constructed on 7Acres of land parcel consisting of 5 Towers of 2P+22/27 floors having 2 BHK, & 3 BHK premium residences.
Vj Yashwin Orizzonte location
Project is located Near EON IT Park in Kharadi with -
World Trade Centre - 2km
EON IT Park - 2.3km
Phoenix Market City - 6.5km
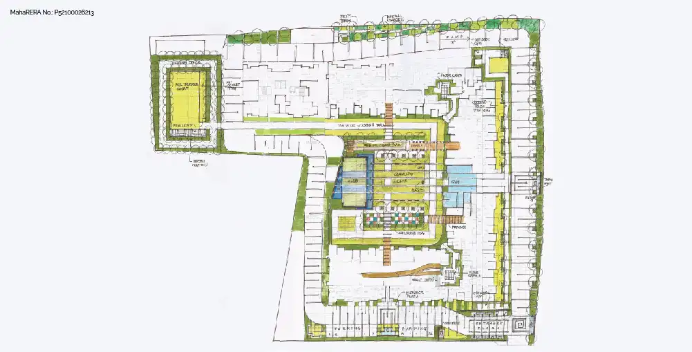
Vj Yashwin Orizzonte Kharadi Amenities
First is Internal amenities -
All apartments are unfurnished with branded fittings and fixtures with
Vitrified Tiles, S S Sink, D G Back up, Inverter Back Up, Solar Water Heater, CPVC Fittings, Rainwater Harvesting, Sewage Treatment Plant
Vilas Javdekar Kharadi External Amenities
Project has 30+ luxurious amenities with likes of -
1) Multipurpose Play Courts
2) Herbal Garden
3) Cricket Bowling Machine & Pitch
4) Outdoor Play Area for Kids
5) Open Gym, Open to Sky Yoga and many more.
Yashwin Orizzonte Phase 2 Parking
Project has One type of car parking facility which are as follows -
1) Podium Level
Vj Yashwin Orizzonte Possession -
Rera Possession - June 2025
Target Possession - December 2024.
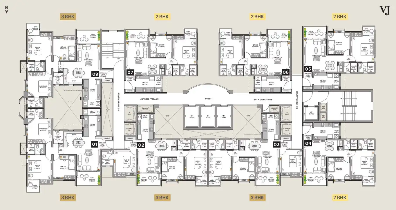
Carpet Area & Floor Plan
Vilas Javdekar Kharadi Pune project has 2BHK, 3BHK, Duplex & Simplex premium residences with -
2BHK - (697 to 744) sqft
3BHK - (841 to 999) sqft
Vilas Javdekar Kharadi floor plans
Tower-A & B is the typical floor plans and will have 8 flats, 2 lifts & 2 staircases and Tower-C is the typical floor plans will have 4 flats, 3 lifts & 1 staircases and Tower-D & E is the typical floor plans will have 8 flats, 4 lifts & 2 staircases on each floor.
Maintenance -
Yashwin Orizzonte maintenance varies with the configuration and the carpet area which are as follows -
2BHK - Rs (4000 - 6000) per month
3BHK - Rs (7000 - 8000) per month
Vilas Javdekar Kharadi Phase 2 project sample flat is ready to view at site.
Vj Yashwin Orizzonte price & its details can be known at the price section & Vj Yashwin Orizzonte brochure can be downloaded from the link mentioned below. Project has been praised by the home buyers & Vilas Javdekar Kharadi reviews is 4 out of 5 from over all the clients who have visited the site.
Near EON IT Park, Kharadi, Pune.


Pros
Cons
Vitrified Tiles
Jaguar Fittings
Car charging Point
Granite Kitchen Platform
Stainless Steel Sink
Club House
Kids Play Area
Jogging Track
Garden
Multi Purpose Court
Indoor Gym
Senior Citizen Area





| Carpet Area | All Inc. Price (Inc. of Taxes & Charges) | Min Downpayment (Inc. Taxes) | Parking | Unit Plan |
|---|---|---|---|---|
697 sqftSold Out | ![]() | - | - | ![]() |
701 sqftSold Out | ![]() | - | - | ![]() |
707 sqftSold Out | ![]() | - | - | ![]() |
730 sqftSold Out | ![]() | - | - | ![]() |
739 sqftSold Out | ![]() | - | - | ![]() |
744 sqftSold Out | ![]() | - | - | ![]() |


Is there any litigation against this proposed project:
NoVilas Javdekar Developers

1 CityLocations
Pune



720 - 1133 sqft
Majestique Landmarks
Developer






584 - 1009 sqft
Unique Properties
Developer



1084 - 2290 sqft
Duville Estates
Developer
811 - 1688 sqft
Pristine Properties
Developer




769 - 1821 sqft
Mahindra Lifespace
Developer
Housiey Legal: Free Real Estate Legal Consultation
Get Expert Advice on RERA, Builder Refunds, Area Mismatch, Stuck Projects & More - at No Cost!