



Land Parcel
Towers
Floors
Config
Carpet Area
RERA NO.
Possession Status
Target Possession
RERA Possession
Litigation
Sukhwani Ravet Project Overview
Sukhwani Coloronic will be constructed on 4.5 acres of land parcels, 5 towers with G+12 floors having 3 BHK premium residences.
Sukhwani Coloronic location
Project is Near Aundh - Ravet BRTS Road, Mukai Chowk, Ravet, Pune -
Sant Tukaram Maharaj Bridge - 1.2km
Dmart - 2.1km
Akurdi Railway Station - 3km
Sukhwani Coloronic Project Amenities
First is Internal amenities -
Vitrified Tiles, Vitrified dado tiles Kitchen, Powder Coated Aluminium Sliding, MS Safety Grill, Anti Skid Ceramic Flooring For Terraaces & Dry Balcony And Toilets, Acrylic paint, Eco features, & many more
Sukhwani Construction Ravet Central External Amenities
Project has 10+ amenities with likes of -
Kids Play Area
Gymnasium
Clubhouse
Garden
Lobby
Sukhwani Construction Coloronic Ravet Parking -
Project has one type of car parking facility -
1) Ground
Sukhwani Coloronic Possession -
Rera Possession - June 2024
Target Possession - December 2024
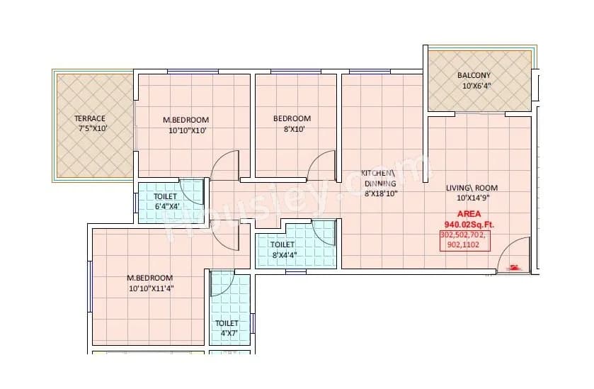
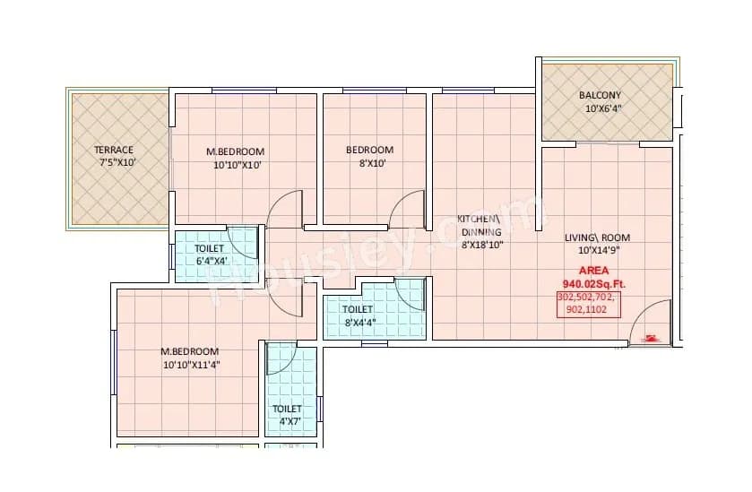
Carpet Area & Floor Plan
Coloronic project has 3BHK premium residences with -
3BHK - ( 940 to 970 ) sqft
Sukhwani Coloronic floor plan
Tower floor plans will have 4 flats 2 lift & 2 staircases on each floor
Maintenance -
Sukhwani Coloronic Pune Project maintenance varies with the configuration and the carpet area which are as follows-
3BHK - Rs 3800 per month
Sukhwani Coloronic sample flat is ready to view at the site.
Sukhwani Coloronic Prices & its details can be found in the price section & Sukhwani Coloronic brochure can be downloaded from the link mentioned below. Project has been praised by the home buyers & Sukhwani Construction Ravet review is 4 out of 5 from over all the clients who have visited the site.
Near Aundh - Ravet BRTS Road, Mukai Chowk, Ravet, Pune

Pros
Cons
Video Door Phone
Vitrified Tiles
Granite Kitchen Platform
Solar Water Heater
CCTV Camera
Swimming Pool
Club House
Kids Play Area
Garden
Gymnasium




| Carpet Area | All Inc. Price (Inc. of Taxes & Charges) | Min Downpayment (Inc. Taxes) | Parking | Unit Plan |
|---|---|---|---|---|
940 sqft | 95.75 Lacs All In | 14.00 Lacs | 1 | ![]() |
970 sqft | 99.83 Lacs All In | 15.00 Lacs | 1 | ![]() |

Is there any litigation against this proposed project:
NoSukhwani Constructions

1 CityLocations
Pune


727 - 971 sqft
Ceratec Group
Developer
755 - 2220 sqft
Urban Space Creators
Developer


858 - 1052 sqft
Aswani Promoters And Builders
Developer
725 - 1337 sqft
Jhamtani Group
Developer

768 - 1791 sqft
Yashada Realty Group
Developer

755 - 1277 sqft
D A Borade And Sons
Developer
1423 - 1423 sqft
Vision Creative Group
Developer



810 - 1561 sqft
Yashada Realty Group
Developer


Housiey Legal: Free Real Estate Legal Consultation
Get Expert Advice on RERA, Builder Refunds, Area Mismatch, Stuck Projects & More - at No Cost!