Last updated: Jun 26, 2025










Land Parcel
Towers
Floors
Config
Carpet Area
RERA NO.
Possession Status
Target Possession
RERA Possession
Litigation
Srishti Bhandup West Project Overview
Srishti Oasis will be constructed on 3.5 acres of land parcel, 3 towers with 2B+5P+36 floors having 1 BHK, 2 BHK, 3 BHK premium residences.
Srishti Oasis location
Project is Near Near GML Road, Bhandup West, Mumbai with -
Dmart - 1km
Fortis Hospital - 1.3km
Nahur Station - 3.5km
Srishti Oasis Bhandup West Project Amenities
First is Internal amenities -
Vitrified Tile, Granite Kitchen, Gypsum finish internal walls, Aluminum sliding window, stainless steel sink, Earthquake Resistance Structure, Solar panel, Video door phone & many more
Srishti Group Bhandup West External Amenities
Project has 40+ amenities with likes of -
Swimming pool
Gymnasium
Club house
Yoga Lawn
Children Play Area & Many More
Srishti Group Bhandup West Parking -
Project has two types of car parking facilities -
1) Basement
2) Podium
Srishti Oasis Possession -
Rera Possession - Dec 2027
Target Possession - Dec 2028
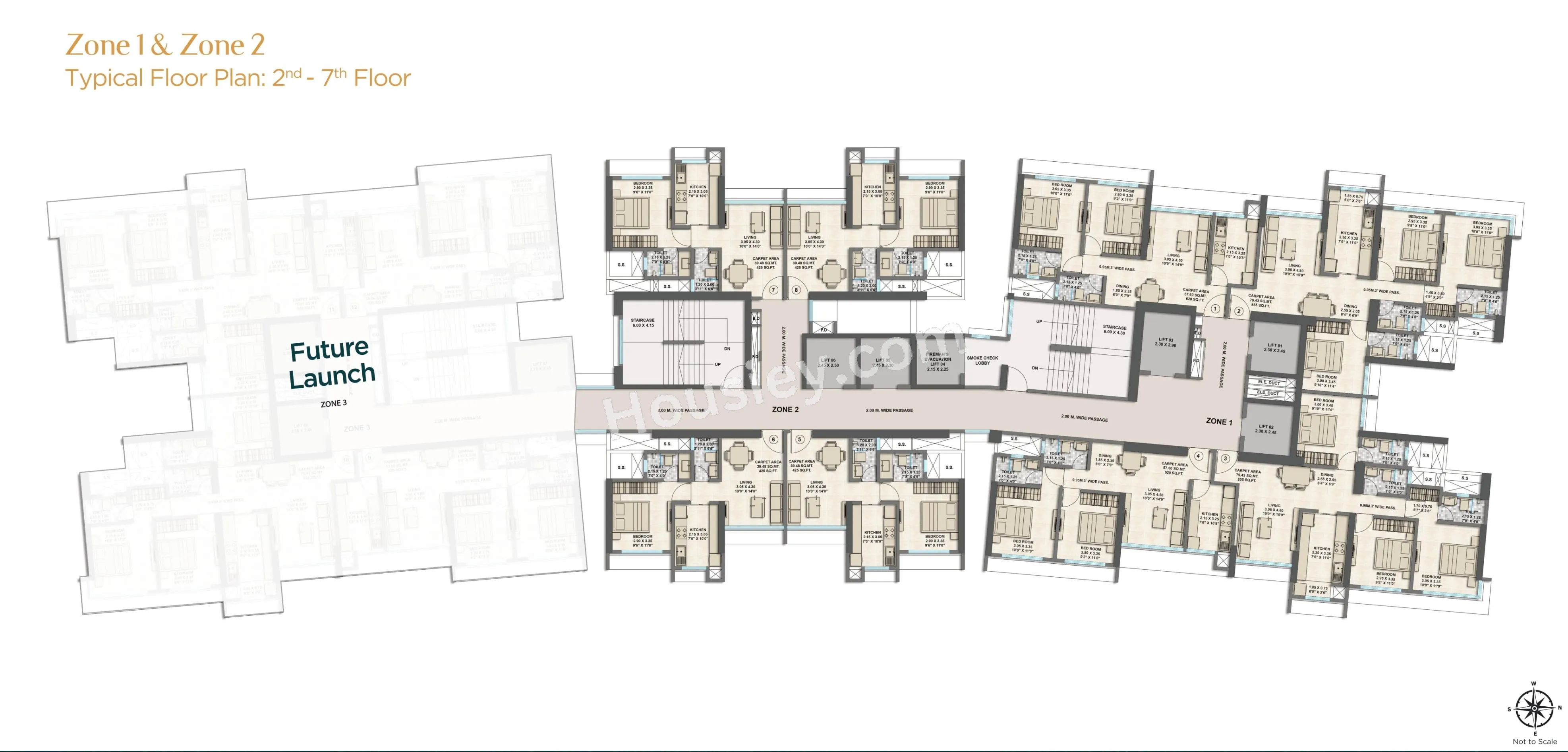
Carpet Area & Floor Plan
Srishti Oasis Bhandup West project has 1BHK, 2BHK, 3BHK premium residences with -
1BHK - (425 to 450) sqft
2BHK - (620 to 645) sqft
3BHK - (855 to 880) sqft
Srishti Oasis Bhandup West floor plan
Tower floor plan will have 8 flats 6 lifts & 2 staircases on each floor
Maintenance -
Srishti Oasis Mumbai Project maintenance varies with the configuration and the carpet area which are as follows-
1BHK - (4250 - 4500) per month
2BHK - (6200 - 6450) per month
3BHK - (8550 - 8800) per month
Srishti Oasis project sample flat is ready to view at the site.
Srishti Oasis Prices & its details can be found in the price section & Srishti Oasis Bhandup West brochure can be downloaded from the link mentioned below. Project has been praised by the home buyers & Srishti Group Bhandup West review is 4 out of 5 from over all the clients who have visited the site.
Near GML Road, Bhandup West, Mumbai

Pros
Cons
Home Automation
Video Door Phone
Vitrified Tiles
Granite Kitchen Platform
Stainless Steel Sink
Branded Fittings
Exhaust Fan
+1 More
Swimming Pool
Club House
Kids Play Area
Senior Citizen Area
Kids Pool
Amphitheater
Yoga Zone
Jacuzzi
Indoor games
party lawn
Landscaped Garden
Fitness Studio





| Carpet Area | All Inc. Price (Inc. of Taxes & Charges) | Min Downpayment (Inc. Taxes) | Parking | Unit Plan |
|---|---|---|---|---|
425 sqft | 1.02 Cr All In | 15.00 Lacs | 6 lacs | ![]() |
450 sqft | 1.10 Cr All In | 17.00 Lacs | 6 lacs | ![]() |

Is there any litigation against this proposed project:
NoSrishti Oasis Proforma Sale Agreement
Srishti Oasis Proforma Allotment Letter
Srishti Oasis Layout Plan
Note: You can download more detailed documents by following this link
Srishti Group

2 CitiesLocations
Mumbai City, Mumbai suburban







413 - 659 sqft
Shraddha Prime Projects
Developer












Housiey Legal: Free Real Estate Legal Consultation
Get Expert Advice on RERA, Builder Refunds, Area Mismatch, Stuck Projects & More - at No Cost!