









Land Parcel
Towers
Floors
Config
Carpet Area
RERA NO.
Possession Status
Target Possession
RERA Possession
Litigation
Shapoorji Pallonji Bavdhan Project Overview
Shapoorji Pallonji Vanaha Spring Project will be constructed on 5 acres of land parcels, 4 towers with G+30 floors having 2BHK, 3BHK, 2+2BHK Jodi premium residences .
Shapoorji Pallonji Vanaha Spring location
Project is located Near Flame Ring Road, Lavale, Bavdhan, Pune with -
Oxford Golf Resort - 500m
Mumbai - Bangalore Highway - 3.5km
Chellaram Hospital - 5km
Shapoorji Pallonji Vanaha Spring Bavdhan Project Amenities
First is Internal amenities -
Vetrified tiles, Earthquake resistane, Granite Kitchen, DG Bakcup, Video Door Phone, Digital Lock, Power backup, Solar water supply, SS Sink, CCTV, MS Railing & many more
Shapoorji Pallonji Group Bavdhan External Amenities
Project has 50+ luxurious amenities with likes of -
Swimming pool
Indoor Games
Kids’ Pool
Kids Play Area
Toddlers Play Area
Multipurpose Hall & Many More
Shapoorji Pallonji Group Vanaha Spring Bavdhan Parking -
Project has One type of car parking facility -
1) Ground
Shapoorji Pallonji Vanaha Spring Possession -
Rera Possession - December 2030
Target Possession - December 2029
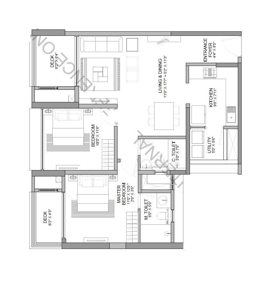
Carpet Area & Floor Plan
Shapoorji Pallonji Vanaha Spring Bavdhan project has 2BHK, 3BHK, 2+2BHK Jodi premium residences with -
2BHK - (835 to 840)sqft
3BHK - (1100 to 1300)sqft
2+2BHK Jodi - 1700 sqft
Shapoorji Pallonji Vanaha Spring floor plan
Tower floor plan will have 4 flats 2 lifts & 1 staircases on each floor
Maintenance -
Shapoorji Pallonji Vanaha Spring Pune Project maintenance varies with the configuration and the carpet area which are as follows-
2BHK - Rs (3000 - 3500) per month
3BHK - Rs (4400 - 5200) per month
2+2BHK Jodi - Rs 6800 per month
Vanaha Spring Bavdhan Prices & its details can be found in the price section & Shapoorji Pallonji Vanaha Spring Bavdhan brochure can be downloaded from the link mentioned below. Project has been praised by the home buyers & Shapoorji Pallonji Group Bavdhan review is 4 out of 5 from over all the clients who have visited the site
Near Flame Ring Road, Lavale, Bavdhan, Pune
Pros
Cons
Digital Lock
Video Door Phone
Vitrified Tiles
Granite Kitchen Platform
Stainless Steel Sink
D.G Backup
Solar Water Heater
+1 More
Swimming Pool
Kids Play Area
Jogging Track
Kids Pool
Squash Court
Net Cricket
Tennis Court
Private Spa
Library
Basketball Court
Amphitheater
Toddlers Play Area
Barbeque Deck
Cycling Track
Bonfire
+11 More


| Carpet Area | All Inc. Price (Inc. of Taxes & Charges) | Min Downpayment (Inc. Taxes) | Parking | Unit Plan |
|---|---|---|---|---|
868 sqft | 1.05 Cr All In | 16.00 Lacs | 1 | ![]() |
874 sqft | 1.15 Cr All In | 17.00 Lacs | 1 | ![]() |

Is there any litigation against this proposed project:
NoCommencement Certificate Shapoorji Pallonji Vanaha Spring
Legal Title Report Shapoorji Pallonji Vanaha Spring
Layout Plan Shapoorji Pallonji Vanaha Spring
Note: You can download more detailed documents by following this link
Shapoorji Pallonji Group

7 CitiesLocations
Ahmedabad, Gurugram, Bangalore Rural, Bangalore Urban, Mumbai City, Mumbai suburban, Pune

266 - 908 sqft
Puraniks Builders
Developer


755 - 1091 sqft
Aryavart Developers
Developer

738 - 3292 sqft
Shapoorji Pallonji Group
Developer




755 - 1931 sqft
Aryavart Developers
Developer


1308 - 1308 sqft
Suyog Group
Developer


694 - 1115 sqft
Dagade Patil Ventures
Developer
1115 - 1135 sqft
Varad Group
Developer
1403 - 1740 sqft
Manisha Constructions
Developer

Housiey Legal: Free Real Estate Legal Consultation
Get Expert Advice on RERA, Builder Refunds, Area Mismatch, Stuck Projects & More - at No Cost!