





Land Parcel
Towers
Floors
Config
Carpet Area
RERA NO.
Possession Status
Target Possession
RERA Possession
Litigation
Pharande Ravet Project Overview
Pharande Felicity will be constructed on 3.5 acres of land parcel, 6 tower with G+2P+12 floors having 2 BHK, 2.5 BHK, 3 BHK premium residences.
Pharande Felicity location
Project is located Near Aundh - Ravet BRTS Road, Ravet, Pune with -
Mukai Chowk - 1.0km
D-Mart - 3.1km
Akurdi Railway Station - 3.8km
Pharande Felicity Ravet Project Amenities
First is Internal amenities -
Vetrified tiles, Aluminium sliding windows, Fire fighting system, Power back-up & many more
Pharande Spaces Ravet External Amenities
Project has 25+ luxurious amenities with likes of -
Clubhouse
Gymnasium
Children Play Area
Jogging Track
Basketball Court & Many More
Pharande Spaces Felicity Ravet Parking -
Project has two types of car parking facilities which are as follows
Ground & Podium
Pharande Felicity Possession -
Rera Possession - December 2027
Target Possession - December 2026
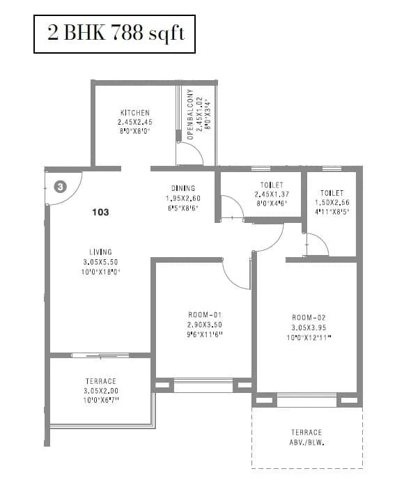
Carpet Area & Floor Plan
Felicity project has 2BHK, 2.5BHK, 3BHK premium residences with -
2BHK - (787 - 788) sqft
2.5BHK - (909 - 910) sqft
3BHK - (1047 to 1051) sqft
Pharande Felicity floor plan
Tower floor plans will have 4 flats & 2 lift 2 staircases on each floor
Maintenance -
Pharande Felicity Pune Project maintenance varies with the configuration and the carpet area which are as follows-
2BHK - 4300 per month
2.5BHK - 5000 per month
3BHK - (5700 - 5800) per month
Pharande Felicity project sample flat is ready to view at the site.
Pharande Felicity & its details can be found in the price section & Pharande Felicity brochure can be downloaded from the link mentioned below. Project has been praised by the home buyers & Pharande Spaces Ravet review is 4 out of 5 from over all the clients who have visited the site.
Near Aundh - Ravet BRTS Road, Ravet, Pune


Pros
Cons
Vitrified Tiles
D.G Backup
Fire Fighting
Swimming Pool
Club House
Kids Play Area
Jogging Track
Basketball Court
Meditation Zone
Gymnasium













| Carpet Area | All Inc. Price (Inc. of Taxes & Charges) | Min Downpayment (Inc. Taxes) | Parking | Unit Plan |
|---|---|---|---|---|
788 sqftSold Out | ![]() | - | - | ![]() |
787 sqftSold Out | ![]() | - | - | ![]() |


Is there any litigation against this proposed project:
NoPharande Spaces

1 CityLocations
Pune


727 - 971 sqft
Ceratec Group
Developer
755 - 2220 sqft
Urban Space Creators
Developer


858 - 1052 sqft
Aswani Promoters And Builders
Developer
725 - 1337 sqft
Jhamtani Group
Developer

768 - 1791 sqft
Yashada Realty Group
Developer

755 - 1277 sqft
D A Borade And Sons
Developer
1423 - 1423 sqft
Vision Creative Group
Developer



940 - 970 sqft
Sukhwani Constructions
Developer
810 - 1561 sqft
Yashada Realty Group
Developer


Housiey Legal: Free Real Estate Legal Consultation
Get Expert Advice on RERA, Builder Refunds, Area Mismatch, Stuck Projects & More - at No Cost!