




Land Parcel
Towers
Floors
Config
Carpet Area
RERA NO.
Possession Status
Target Possession
RERA Possession
Litigation
Manisha Bavdhan Project Overview
Manisha 64 Hills Bavdhan will be constructed on 1.60 acres of land parcel, 1 tower with P+7 floors having 3BHK, 4BHK, 5BHK premium residences .
Manisha 64 Hills Bavdhan location
Project is located Near Ramnagar Colony, Ram Nagar, Bavdhan, Pune with-
Onkar Garden Chowk - 1.5km
Chandni Chowk - 2.0km
Paud Road - 3.1km
Manisha 64 Hills Bavdhan Project Amenities
First is Internal amenities -
Vetrified tiles, Granite Kitchen, Earthsquake resistance, Video door, Digital lock, DG backup, Solar Heater, SS railing, Fire-fighting, CP fitting, RCC,Frame Struct & Many more
Manisha Constructions Bavdhan External Amenities
Project has 21+ luxurious amenities with likes of -
Childrens Play Area
Gym
Terrace Hard Scaped Garden
Conference Room & Many More
Manisha Constructions 64 Hills Bavdhan Parking -
Project has One type of car parking facility -
1) Ground
Manisha 64 Hills Bavdhan Possession -
Rera Possession - March 2029
Target Possession - December 2028
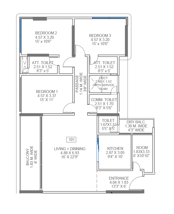
Carpet Area & Floor Plan
64 Hills Bavdhan project has 3BHK, 4BHK, 5BHK premium residences with -
3BHK - (1569 to 2470) sqft
4BHK - (1992 to 3299) sqft
5BHK - 4727 sqft
Manisha 64 Hills Bavdhan floor plan
Tower floor plan will have 4 flats 2 lifts & 2 staircases on each floor
Maintenance -
Manisha 64 Hills Bavdhan Pune Project maintenance varies with the configuration and the carpet area which are as follows-
3BHK - Rs (6300 - 9900) per month
4BHK - Rs (8000 - 13100) per month
5BHK - Rs 18900 per month
64 Hills Bavdhan Prices & its details can be found in the price section & Manisha 64 Hills Bavdhan brochure can be downloaded from the link mentioned below. Project has been praised by the home buyers & Manisha Constructions Bavdhan review is 4 out of 5 from over all the clients who have visited the site.
Near Ramnagar Colony, Ram Nagar, Bavdhan, Pune

Pros
Cons
Digital Lock
Video Door Phone
Vitrified Tiles
Granite Kitchen Platform
Stainless Steel Sink
D.G Backup
Solar Water Heater
+2 More
Kids Play Area
Jogging Track
Senior Citizen Area
party lawn
Gymnasium
Terrace Garden
Walking Track




| Carpet Area | All Inc. Price (Inc. of Taxes & Charges) | Min Downpayment (Inc. Taxes) | Parking | Unit Plan |
|---|---|---|---|---|
1403 sqft | 2.16 Cr All In | 32.00 Lacs | 1 | ![]() |
1569 sqft | 2.61 Cr All In | 39.00 Lacs | 2 | ![]() |
2470 sqft | 4.48 Cr All In | 67.00 Lacs | 2 | ![]() |

Is there any litigation against this proposed project:
NoCommencement Certificate Manisha 64 Hills
Legal Title Report Manisha 64 Hills
Layout Plan Manisha 64 Hills
Note: You can download more detailed documents by following this link
Manisha Constructions

1 CityLocations
Pune

818 - 1236 sqft
Paranjape Schemes
Developer
266 - 908 sqft
Puraniks Builders
Developer


755 - 1091 sqft
Aryavart Developers
Developer

738 - 3292 sqft
Shapoorji Pallonji Group
Developer




755 - 1931 sqft
Aryavart Developers
Developer


1308 - 1308 sqft
Suyog Group
Developer


694 - 1115 sqft
Dagade Patil Ventures
Developer
1115 - 1135 sqft
Varad Group
Developer
Housiey Legal: Free Real Estate Legal Consultation
Get Expert Advice on RERA, Builder Refunds, Area Mismatch, Stuck Projects & More - at No Cost!