






Land Parcel
Towers
Floors
Config
Carpet Area
RERA NO.
Possession Status
Target Possession
RERA Possession
Litigation
Kolte Patil First Avenue Project Overview
Kolte Patil First Avenue will be constructed on 7.5Acres, 7Towers, P+22 Floors, 2.5BHK, 3BHK premium residences.
Kolte Patil First Avenue Hinjewadi location
Project is located Near Marunji Road, Hinjewadi, Pune with -
Mumbai - Pune Expressway - 5.5km
Xion Mall - 5.5km
Life Care Multispeciality - 1km
Kolte Patil First Avenue Pune Amenities
First is Internal amenities -
All apartments are unfurnished with branded fittings and fixtures with
Vitrified Tiles, Branded Fittings, Kitchen Platform, and Many More.....
Kolte Patil First Avenue External Amenities
Project has 35+ luxurious amenities with likes of -
1) Swimming Pool
2) Kids Pool
3) Club House
4) Gymnasium
5) Multipurpose Hall
Kolte Patil First Avenue Parking
Project has One type of car parking facility which are as follows -
1) Podium Parking
Kolte Patil First Avenue Possession -
Rera Possession - December 2027
Target Possession - June 2026
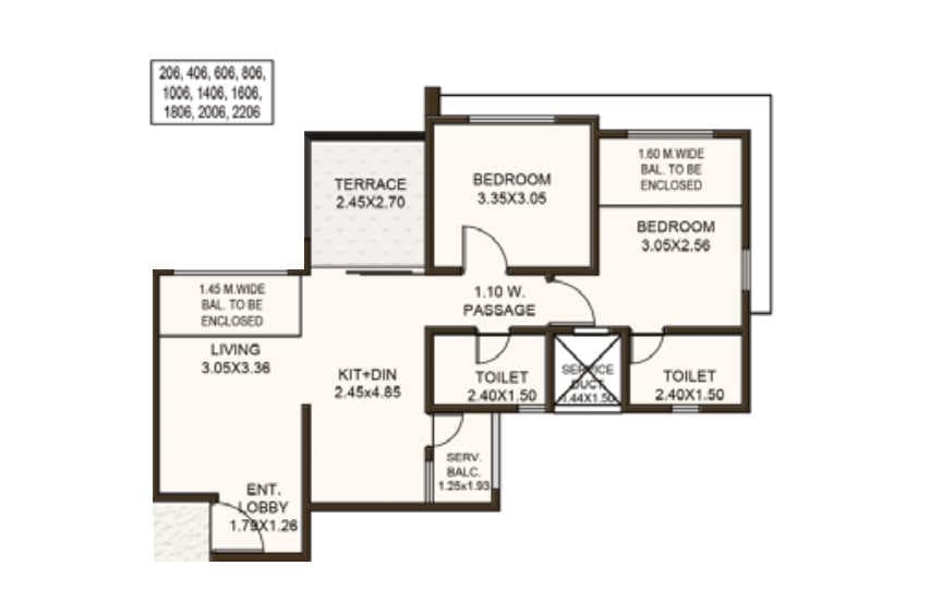
Carpet Area & Floor Plan
Kolte Patil First Avenue project has 2.5BHK & 3BHK premium residences with -
2.5BHK - (844 to 887) sqft
3BHK - (1159 to 1172) sqft
Kolte Patil First Avenue Hinjewadi floor plans
All Tower floor plan will have 8 flats, 3 lifts & 2 staircases on each floor.
Maintenance -
Kolte Patil First Avenue Project maintenance varies with the configuration and the carpet area which are as follows-
2.5BHK (4000 - 4500) per month
3BHK (5000 - 5500) per month
Kolte Patil First Avenue project sample flat is ready to view at site.
Project price & its details can be known at the price section & Project brochure can be downloaded from the link mentioned below. Project has been praised by the home buyers & Kolte Patil First Avenue reviews is 4 out of 5 from over all the clients who have visited the site.
Near Marunji Road, Hinjewadi, Pune

Pros
Cons
Vitrified Tiles
Granite Kitchen Platform
Branded Fittings
Water Purifier
Swimming Pool
Club House
Kids Play Area
Kids Pool
Basketball Court
Herbal Garden
Pool deck
Acupressure Pathway
Jacuzzi
party lawn
Gymnasium









| Carpet Area | All Inc. Price (Inc. of Taxes & Charges) | Min Downpayment (Inc. Taxes) | Parking | Unit Plan |
|---|---|---|---|---|
844 sqftSold Out | ![]() | - | - | ![]() |
867 sqftSold Out | ![]() | - | - | ![]() |
865 sqftSold Out | ![]() | - | - | ![]() |
887 sqftSold Out | ![]() | - | - | ![]() |
890 sqftSold Out | ![]() | - | - | ![]() |


Is there any litigation against this proposed project:
NoKolte Patil Developers

5 CitiesLocations
Bangalore Rural, Bangalore Urban, Mumbai City, Pune, Mumbai suburban

652 - 1212 sqft
Pride Purple Properties
Developer
710 - 710 sqft
Kasturi Housing
Developer



662 - 1376 sqft
Mittal Brothers
Developer







658 - 658 sqft
Kumar Realty
Developer
--1713601821946-img.webp&w=1280&q=75)


799 - 2140 sqft
Paranjape Schemes
Developer

753 - 1218 sqft
Gera Developer
Developer
Housiey Legal: Free Real Estate Legal Consultation
Get Expert Advice on RERA, Builder Refunds, Area Mismatch, Stuck Projects & More - at No Cost!