





Land Parcel
Towers
Floors
Config
Carpet Area
RERA NO.
Possession Status
Target Possession
RERA Possession
Litigation
Godrej Kharadi Project Overview
Godrej Urban Retreat will be constructed on 3.8 Acres of land parcel, 3 towers with G+4P+32 floors having 2 BHK & 3 BHK premium residences.
Godrej Urban Retreat location
Project is located Near Manjri Road, Kharadi, pune with -
Barclays - 4.8km
EON IT Park - 4.8km
WTC - 5km
Godrej Urban Retreat Project Amenities
First is Internal amenities -
Vitrified tiles, Granite Kitchen, Anodized aluminium sliding window, DG Backup, MS railing, Fire-fighting, Rain water harvesting, Video door, digital lock, & many more
Godrej Properties Kharadi External Amenities
Project has luxurious amenities with likes of -
Club House
Children Play Area
Multipurpose hall
Swimming Pool
Gymnasium & Many More
Godrej Properties Urban Retreat Kharadi Parking -
Project has one type of car parking facility.
1) Podium
Godrej Urban Retreat Kharadi Possession -
Rera Possession - October 2027
Target Possession - December 2026
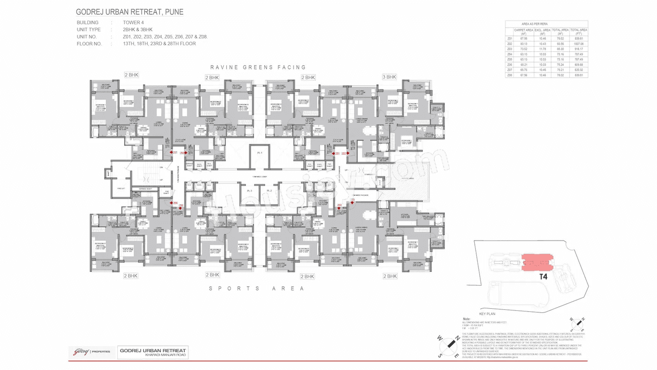
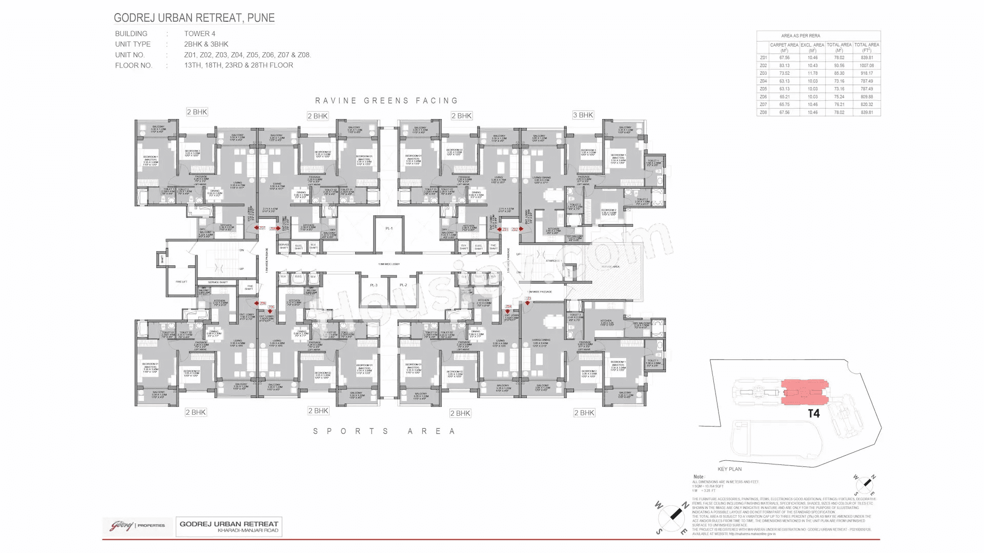
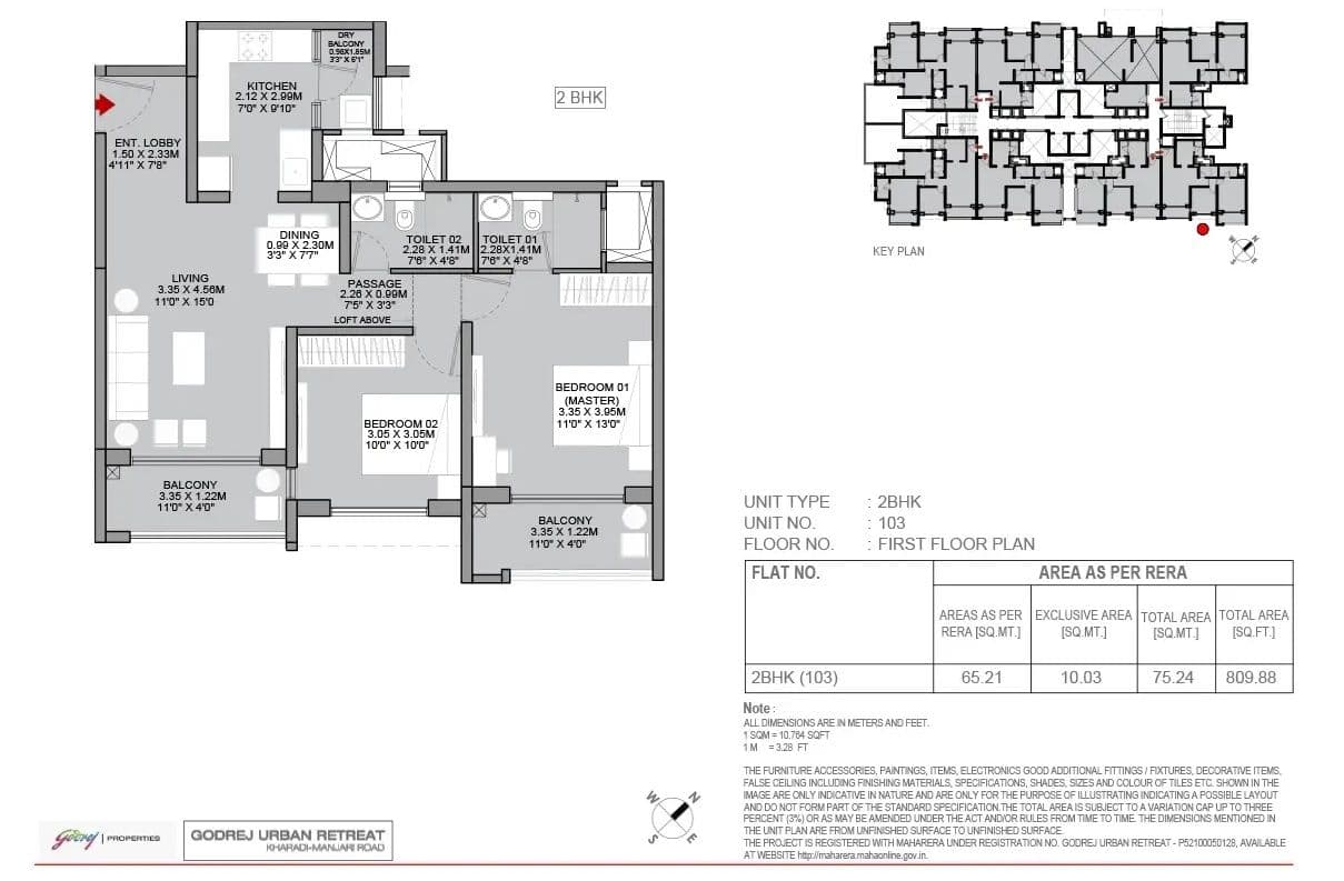
Carpet Area & Floor Plan
Urban Retreat project has 2BHK, 3BHK premium residences with -
2BHK - (788 to 840)sqft
3BHK - (918 to 1007)sqft
Godrej Urban Retreat Kharadi Pune floor plan
Tower floor plans will have 4 flats & 2 lift 2 staircases on each floor
Maintenance -
Godrej Urban Retreat Kharadi Pune Project maintenance varies with the configuration and the carpet area which are as follows-
2BHK - (3100 - 3400) per month
3BHK - 4000 per month
Urban Retreat Kharadi sample flat is ready to view at the site.
Urban Retreat Prices & its details can be found in the price section & Godrej Urban Retreat Kharadi brochure can be downloaded from the link mentioned below. Project has been praised by the home buyers & Godrej Properties Kharadi review is 4 out of 5 from over all the clients who have visited the site.
Near Manjri Road, Kharadi, Pune


Pros
Cons
Video Door Phone
Vitrified Tiles
Granite Kitchen Platform
Stainless Steel Sink
Branded Fittings
Exhaust Fan
Geyser
+1 More
Swimming Pool
Club House
Kids Play Area
Jogging Track
Garden
Multi Purpose Court
Indoor Gym
Senior Citizen Area
Kids Pool
Outdoor Gym
Flower Garden
Net Cricket
Football Court
Tennis Court
Skating Rink
+32 More







| Carpet Area | All Inc. Price (Inc. of Taxes & Charges) | Min Downpayment (Inc. Taxes) | Parking | Unit Plan |
|---|---|---|---|---|
788 sqft | 1.03 Cr All In | 15.00 Lacs | 1 | ![]() |
840 sqft | 1.10 Cr All In | 16.50 Lacs | 1 | ![]() |
810 sqftSold Out | ![]() | - | - | ![]() |
820 sqftSold Out | ![]() | - | - | ![]() |

Is there any litigation against this proposed project:
NoGodrej Urban Retreat Commencement Certificate
Godrej Urban Retreat Legal Title Report
Godrej Urban Retreat Building Plan
Note: You can download more detailed documents by following this link
Godrej Properties

7 CitiesLocations
Hyderabad, Ahmedabad, Bangalore Rural, Bangalore Urban, Mumbai City, Pune, Mumbai suburban



720 - 1133 sqft
Majestique Landmarks
Developer






584 - 1009 sqft
Unique Properties
Developer



1084 - 2290 sqft
Duville Estates
Developer
811 - 1688 sqft
Pristine Properties
Developer




769 - 1821 sqft
Mahindra Lifespace
Developer
Housiey Legal: Free Real Estate Legal Consultation
Get Expert Advice on RERA, Builder Refunds, Area Mismatch, Stuck Projects & More - at No Cost!