














Land Parcel
Towers
Floors
Config
Carpet Area
RERA NO.
Possession Status
Target Possession
RERA Possession
Litigation
Gagan Kharadi Project Overview
Gagan Avencia will be constructed on 2.5 Acres of land parcel, 4 Towers with 2B+G+17 Floors, 2BHK & 3BHK premium residences.
Gagan Avencia location
Project is located Near Kharadi Road, Kharadi, Pune with -
IT Park - 1.7km
Pune-Ahmednagar Highway - 2.2km
Kharadi Chowk - 3.1km
Gagan Avencia Kharadi Amenities
First is Internal amenities -
All apartments have Vitrified tiles flooring, Branded fittings, Granite kitchen platform, Solar water connection, Video door phone, Three-tier security & Many more.
Gagan Developers Kharadi External Amenities
Project has 20+ luxurious amenities with likes of -
1) Badminton court.
2) Half basketball court.
3) Kid's pool.
4) Multi-purpose hall.
5) Swimming Pool & Many more.
Gagan Developers Kharadi Parking
Project has two types of car parking facilities which are as follows -
Basement
Ground.
Gagan Developers Possession -
Rera Possession - September 2025
Target Possession - July 2025
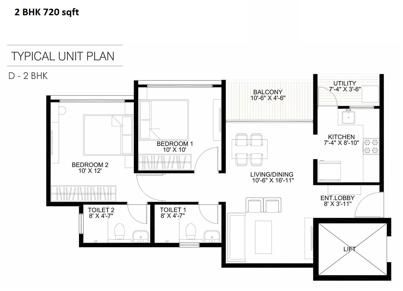
Carpet Area & Floor Plan
Gagan Developers Kharadi project has 2BHK & 3BHK premium residences with -
2BHK - (720 to 828) sqft
3BHK - 1088 sqft
Gagan Developers floor plans
All Tower floor plans will have 6 flats, 2 lifts & 2 staircases on each floor.
Maintenance -
Gagan Developers Pune Project maintenance varies with the configuration and the carpet area which are as follows-
2BHK - (3500 - 4000) per month.
3BHK - 5500 per month
Gagan Avencia Kharadi project sample flat is ready to view at the site.
Gagan Avencia Price & its details can be found in the price section & Gagan Avencia brochure can be downloaded from the link mentioned below. Project has been praised by the home buyers & its review is 4 out of 5 from over all the clients who have visited the site.
Near Kharadi Road, Kharadi, Pune

Pros
Cons
Video Door Phone
Vitrified Tiles
Granite Kitchen Platform
Branded Fittings
3 Tier Security
Solar Water Heater
Swimming Pool
Club House
Kids Play Area
Jogging Track
Kids Pool
Basketball Court
Seating Area
Entrance Gate
Tree plaza
BBQ Lawn
Viewing Pavilion
Badminton Court
Gymnasium
Multi purpose hall


| Carpet Area | All Inc. Price (Inc. of Taxes & Charges) | Min Downpayment (Inc. Taxes) | Parking | Unit Plan |
|---|---|---|---|---|
720 sqftSold Out | ![]() | - | - | ![]() |
795 sqftSold Out | ![]() | - | - | ![]() |
828 sqftSold Out | ![]() | - | - | ![]() |


Is there any litigation against this proposed project:
NoGagan Developers

1 CityLocations
Pune



720 - 1133 sqft
Majestique Landmarks
Developer






584 - 1009 sqft
Unique Properties
Developer



1084 - 2290 sqft
Duville Estates
Developer
811 - 1688 sqft
Pristine Properties
Developer




769 - 1821 sqft
Mahindra Lifespace
Developer
Housiey Legal: Free Real Estate Legal Consultation
Get Expert Advice on RERA, Builder Refunds, Area Mismatch, Stuck Projects & More - at No Cost!