Last updated: Apr 8, 2026






Land Parcel
Towers
Floors
Config
Carpet Area
RERA NO.
Possession Status
Target Possession
RERA Possession
Litigation
DGS Bandra Project Overview
DGS Sheetal Vinayak Project will be constructed on 0.64 Acres of land parcel, 1 Tower with 2B+G+1C+3P+15 floors having 2 BHK, 3 BHK, 4BHK premium residences.
DGS Sheetal Vinayak location
Project is located On Rd Number 1, Gandhi Nagar, Bandra East, Mumbai with -
Bandra Kurla Complex Rd - 1.0km
BKC Metro Station - 1.1km
Jio World Drive Mall - 3.3km
DGS Sheetal Group Bandra East Project Amenities
First is Internal amenities -
Vitrified tiles, Granite Kitchen, Branded fitting, Metal Door, Stainless steel sink, CP fitting & many more
DGS Sheetal Group Vinayak External Amenities
Project has 35+ luxurious amenities with likes of -
Gymnasium
Swimming pool
Meditation room
Kid's play area
BBQ Lawn & Many More
DGS Sheetal Vinayak Bandra East Parking -
Project has two type of car parking facilites -
1) Podium
2) Basement
DGS Sheetal Vinayak Possession -
Rera Possession - June 2030
Target Possession - December 2028
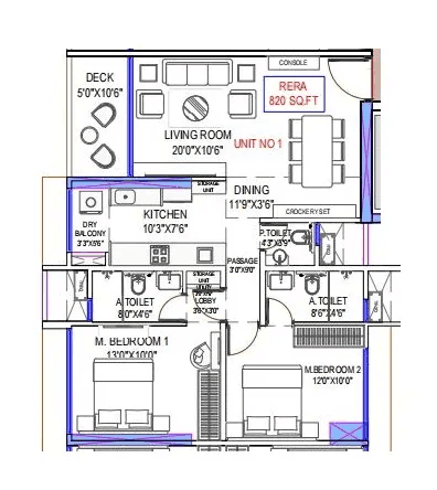
Carpet Area & Floor Plan
Vinayak project has 2BHK, 3BHK, 4BHK premium residences with -
2BHK - 820 sqft
3BHK - (1165 to 1200) sqft
4BHK - 1810 sqft
DGS Sheetal Vinayak floor plan
Tower floor plan will have 6 flats 2 lifts & 1 staircase on each floor
DGS Sheetal Vinayak Mumbai Prices & its details can be found in the price section & DGS Sheetal Vinayak Bandra East brochure can be downloaded from the link mentioned below. Project has been praised by the home buyers & DGS Group Bandra East review is 4 out of 5 from over all the clients who have visited the site.
On Rd Number 1, Gandhi Nagar, Bandra East, Mumbai
Pros
Cons
Vitrified Tiles
Granite Kitchen Platform
Stainless Steel Sink
Branded Fittings
Swimming Pool
Kids Play Area
Senior Citizen Area
Kids Pool
Amphitheater
Yoga Zone
Meditation Zone
Seating Area
BBQ Lawn
Jacuzzi
party lawn
Gymnasium




| Carpet Area | All Inc. Price (Inc. of Taxes & Charges) | Min Downpayment (Inc. Taxes) | Parking | Unit Plan |
|---|---|---|---|---|
820 sqft | 5.28 Cr All In | 79.00 Lacs | 1 | ![]() |

Is there any litigation against this proposed project:
NoDGS Group

2 CitiesLocations
Mumbai suburban, Mumbai City


1113 - 1928 sqft
Raymond Realty
Developer



603 - 1450 sqft
Shapoorji Pallonji Group
Developer






322 - 641 sqft
Shivalik Ventures
Developer







Housiey Legal: Free Real Estate Legal Consultation
Get Expert Advice on RERA, Builder Refunds, Area Mismatch, Stuck Projects & More - at No Cost!