





Land Parcel
Towers
Floors
Config
Carpet Area
RERA NO.
Possession Status
Target Possession
RERA Possession
Litigation
Croissance Ravet Project Overview
Croissance Ra Urbania Project will be constructed on 1 acre of land parcel, 1 tower with 2P+G+17 floors having 2BHK, 3BHK premium residences.
Croissance Ra Urbania location
Project is located Near Shinde Vashti, Pipeline Road, Ganesh Nagar, Ravet, Pune with -
D-Mart - 2.5km
Mumbai - Bengaluru Highway - 3.3km
Akurdi Railway Station- 3.4km
Croissance Ra Urbania Ravet Project Amenities
First is Internal amenities -
Vetrified Tiles, Granite Kitchen Platform, Aluminium Sliding Windows, Anti Skid Flooring, SS Sink, MS Safety, Mosquito Mesh, Earthquake Safety & many more
Croissance Buildcon Ravet External Amenities
Project has 50+ luxurious amenities with likes of -
Swimming Pool
Multipurpose Court
Kids Play Area
Gynasium
Indoor Games
kids Pool & Many More
Croissance Buildcon Vivaaz Ravet Parking -
Project has two types of car parking facilities -
1) Basement
2) Ground
Croissance Ra Urbania Possession -
Rera Possession - December 2028
Target Possession - August 2027
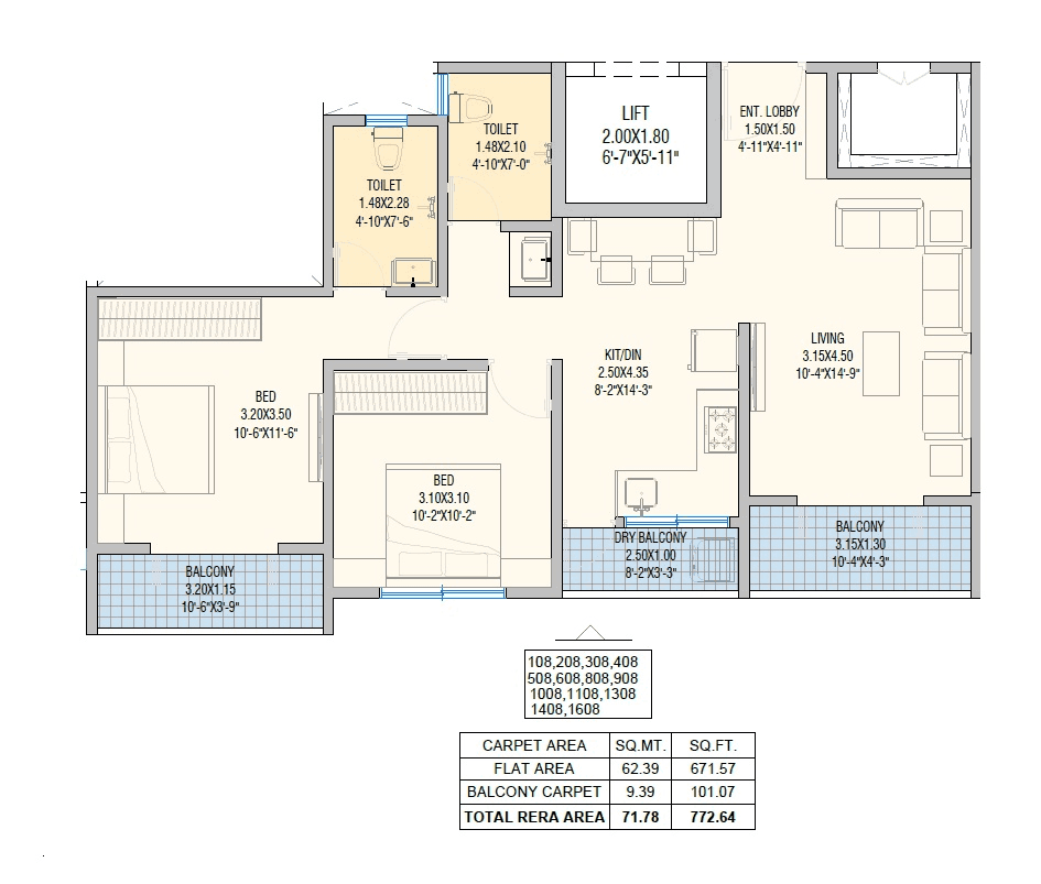
Carpet Area & Floor Plan
Croissance Ra Urbania Ravet project has 2BHK, 3BHK premium residences with -
2BHK - 772 sqft
3BHK - 993 sqft
Croissance Ra Urbania floor plan
Tower floor plan will have 8 flats 2 lifts & 2 staircases on each floor
Maintenance -
Croissance Ra Urbania Pune Project maintenance varies with the configuration and the carpet area which are as follows-
2BHK - Rs (3000 - 3500) per month
3BHK - Rs (4000 - 4500) per month
Vivaaz Ravet sample flat is ready to view at the site.
Vivaaz Prices & its details can be found in the price section & Croissance Ra Urbania Ravet brochure can be downloaded from the link mentioned below. Project has been praised by the home buyers & Croissance Buildcon Ravet review is 4 out of 5 from over all the clients who have visited the site.
Near Shinde Vashti, Pipeline Road, Ganesh Nagar, Ravet, Pune
Pros
Cons
Vitrified Tiles
Granite Kitchen Platform
Stainless Steel Sink
Mosquito Mesh Windows
Swimming Pool
Kids Play Area
Jogging Track
Garden
Multi Purpose Court
Kids Pool
Co Working Spaces
Library
Amphitheater
Meditation Zone
Seating Area
Gazebo
Indoor games
Yoga Deck
Gymnasium






| Carpet Area | All Inc. Price (Inc. of Taxes & Charges) | Min Downpayment (Inc. Taxes) | Parking | Unit Plan |
|---|---|---|---|---|
772 sqftSold Out | ![]() | - | - | ![]() |


Is there any litigation against this proposed project:
NoCommencement Certificate Croissance Ra Urbania
Legal Title Report Croissance Ra Urbania
Layout Plan Croissance Ra Urbania
Note: You can download more detailed documents by following this link
Croissance Buildcon

1 CityLocations
Pune


727 - 971 sqft
Ceratec Group
Developer
755 - 2220 sqft
Urban Space Creators
Developer


858 - 1052 sqft
Aswani Promoters And Builders
Developer
725 - 1337 sqft
Jhamtani Group
Developer

768 - 1791 sqft
Yashada Realty Group
Developer

755 - 1277 sqft
D A Borade And Sons
Developer
1423 - 1423 sqft
Vision Creative Group
Developer



940 - 970 sqft
Sukhwani Constructions
Developer
810 - 1561 sqft
Yashada Realty Group
Developer


Housiey Legal: Free Real Estate Legal Consultation
Get Expert Advice on RERA, Builder Refunds, Area Mismatch, Stuck Projects & More - at No Cost!