




Land Parcel
Towers
Floors
Config
Carpet Area
RERA NO.
Possession Status
Target Possession
RERA Possession
Litigation
Adarsh Gunjur Project Overview
Adarsh Primrose Gunjur will be constructed on 2.20 Acres of land parcel, 2 Towers with 2B+G+14 floors having 3 BHK premium residences.
Adarsh Primrose location
Project is located Off Gunjur Palya Road, Gunjur Palya, Gunjur, Bangalore with -
Krupanidhi Degree Collage - 750m
Varthur - Sarjapur Road - 1.4km
Decathlon - 4.4km
Adarsh Primrose Gunjur Project Amenities
First is Internal amenities -
Vitrified tiles, Branded fittings, Granite Kitchen Platform, SS Sink, CCTV & many more
Adarsh Group Gunjur External Amenities
Project has 30+ luxurious amenities with likes of -
Kids Play Area
Jogging Track
Main Pool
Kids Pool
Clubhouse & Many More
Adarsh Group Primrose Gunjur Parking -
Project has One type of car parking facility
1) Basement
Adarsh Primrose Possession -
Rera Possession - September 2028
Target Possession - September 2028
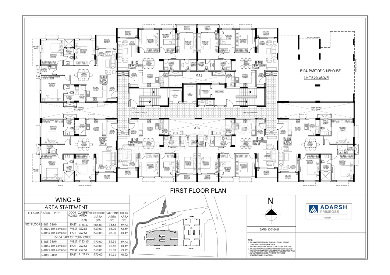
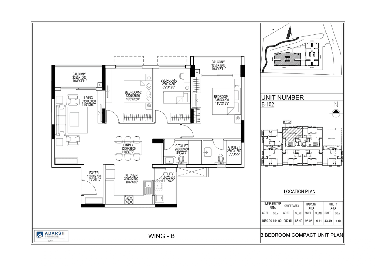
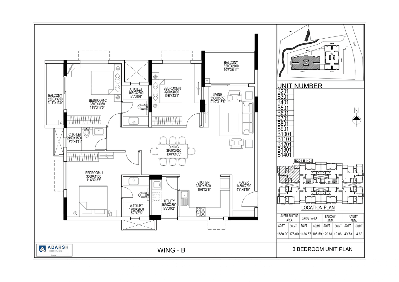
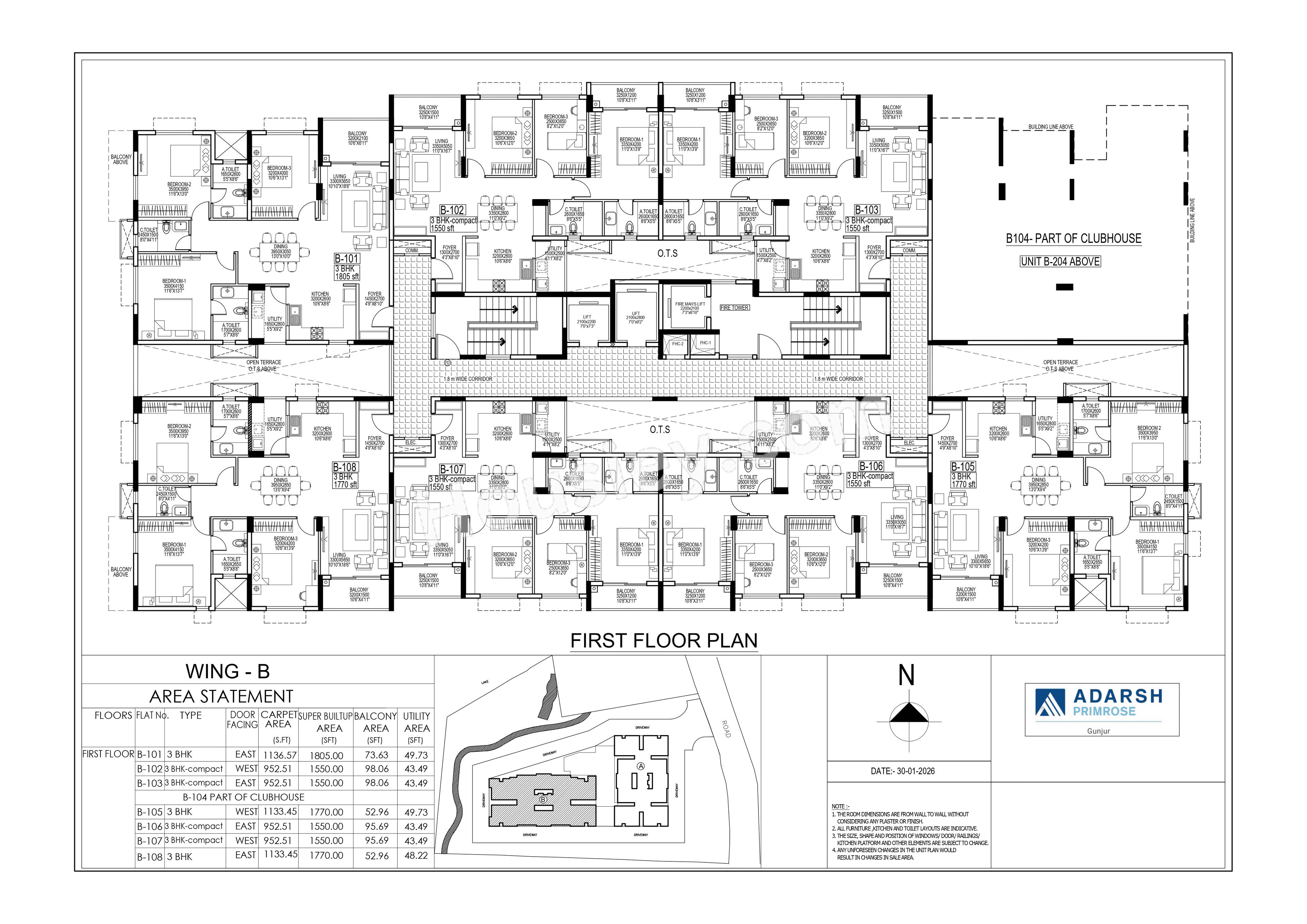
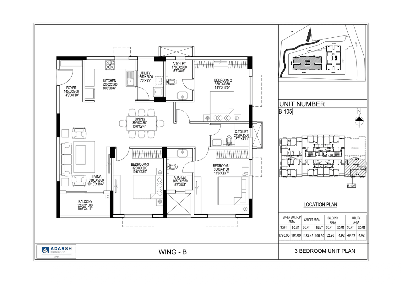
Built-up Area & Floor Plan
Primrose project has 3BHK premium residences with -
3BHK - (1550 to 1880) sqft
Adarsh Primrose Floor plan -
Tower Floor Plan will have 8 flats 3 Lifts & 2 Staircases on each Floor
Maintenance -
Adarsh Primrose Bangalore Project maintenance varies with the configuration and the Built-up area which are as follows-
3BHK - Rs (4600 - 5600) per month
Primrose Prices & its details can be found in the price section & Adarsh Primrose Gunjur brochure can be downloaded from the link mentioned below. Project has been praised by the home buyers & Adarsh Group Gunjur review is 4 out of 5 from over all the clients who have visited the site.
Off Gunjur Palya Road, Gunjur Palya, Gunjur, Bangalore
Pros
Cons
Vitrified Tiles
Granite Kitchen Platform
Stainless Steel Sink
Branded Fittings
CCTV Camera
Swimming Pool
Club House
Jogging Track
Garden
Senior Citizen Area
Kids Pool
Outdoor Gym
Net Cricket
Skating Rink
Basketball Court
Amphitheater
Meditation Zone
Seating Area
Covered Parking
party lawn
+2 More



| Build-up Area | Carpet Area | All Inc. Price (Inc. of Taxes & Charges) | Min Downpayment (Inc. Taxes) | Parking | Unit Plan |
|---|---|---|---|---|---|
1550 sqft | 1054 sqft | 1.70 Cr All In | 17.00 Lacs | 1 | ![]() |
1770 sqft | 1203 sqft | 1.95 Cr All In | 20.00 Lacs | 1 | ![]() |
1880 sqft | 1278 sqft | 2.10 Cr All In | 21.00 Lacs | 1 | ![]() |

Is there any litigation against this proposed project:
NoAdarsh Primrose Commencement Certificate
Adarsh Primrose Legal Title Report
Adarsh Primrose Layout Plan
Note: You can download more detailed documents by following this link
Adarsh Group

2 CitiesLocations
Bangalore Rural, Bangalore Urban





1800 - 1860 sqft
Adarsh Group
Developer
1844 - 3577 sqft
Bricks and Milestones Projects LLP
Developer





1844 - 2278 sqft
Bricks and Milestones Projects LLP
Developer

Housiey Legal: Free Real Estate Legal Consultation
Get Expert Advice on RERA, Builder Refunds, Area Mismatch, Stuck Projects & More - at No Cost!