




























Land Parcel
Towers
Floors
Config
Carpet Area
RERA NO.
Possession Status
Target Possession
RERA Possession
Litigation
Bhandari Hinjewadi Project Overview
Bhandari 32 Pinewood Drive will be constructed on 7acres of land parcel, 4towers with G+15 floors having 2 BHK , 3 BHK premium residences.
Bhandari 32 Pinewood Drive location
Project is located near TCS in hinjewadi, Pune with -
TCS - 650m
Maan Road - 1.7km
Wipro circle - 4.7km
Bhandari 32 Pinewood Drive Hinjewadi Amenities
First is Internal amenities -
Vitrified tiles, Earthquake resistance, Granite Kitchen, DG Backup, Video door phone, Piped gas supply, Aluminium sliding powder coated, CCTV, Digital Lock, & many more
Bhandari Associates Hinjewadi External Amenities
Project has 25+ luxurious amenities with likes of -
1) Multipurpose Hall
2) Party lawn
3) Swimming Pool
4) Club House
5) Children's Play area & Many More
Bhandari Associates 32 Pinewood Drive Hinjewadi Parking -
Project has only one type of car parking facility i.a.
1) Ground
Bhandari 32 Pinewood Drive Possession -
Rera Possession - June 2025
Target Possession - December - 2025
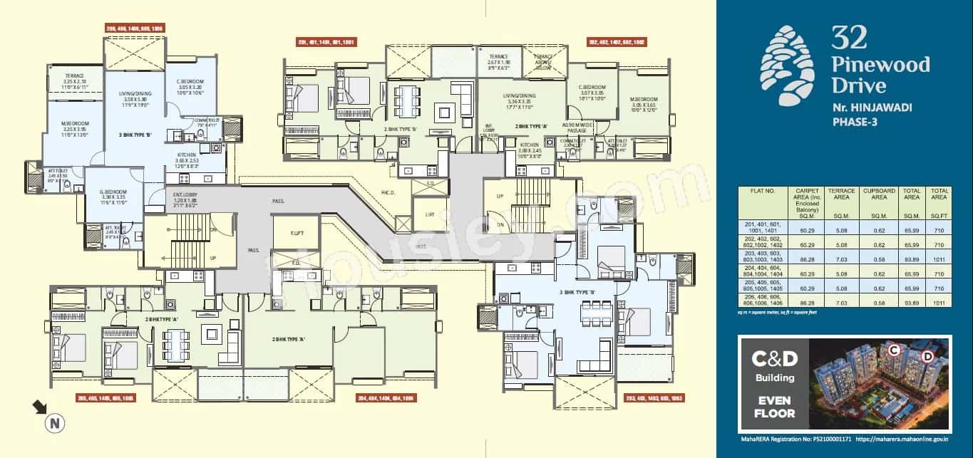
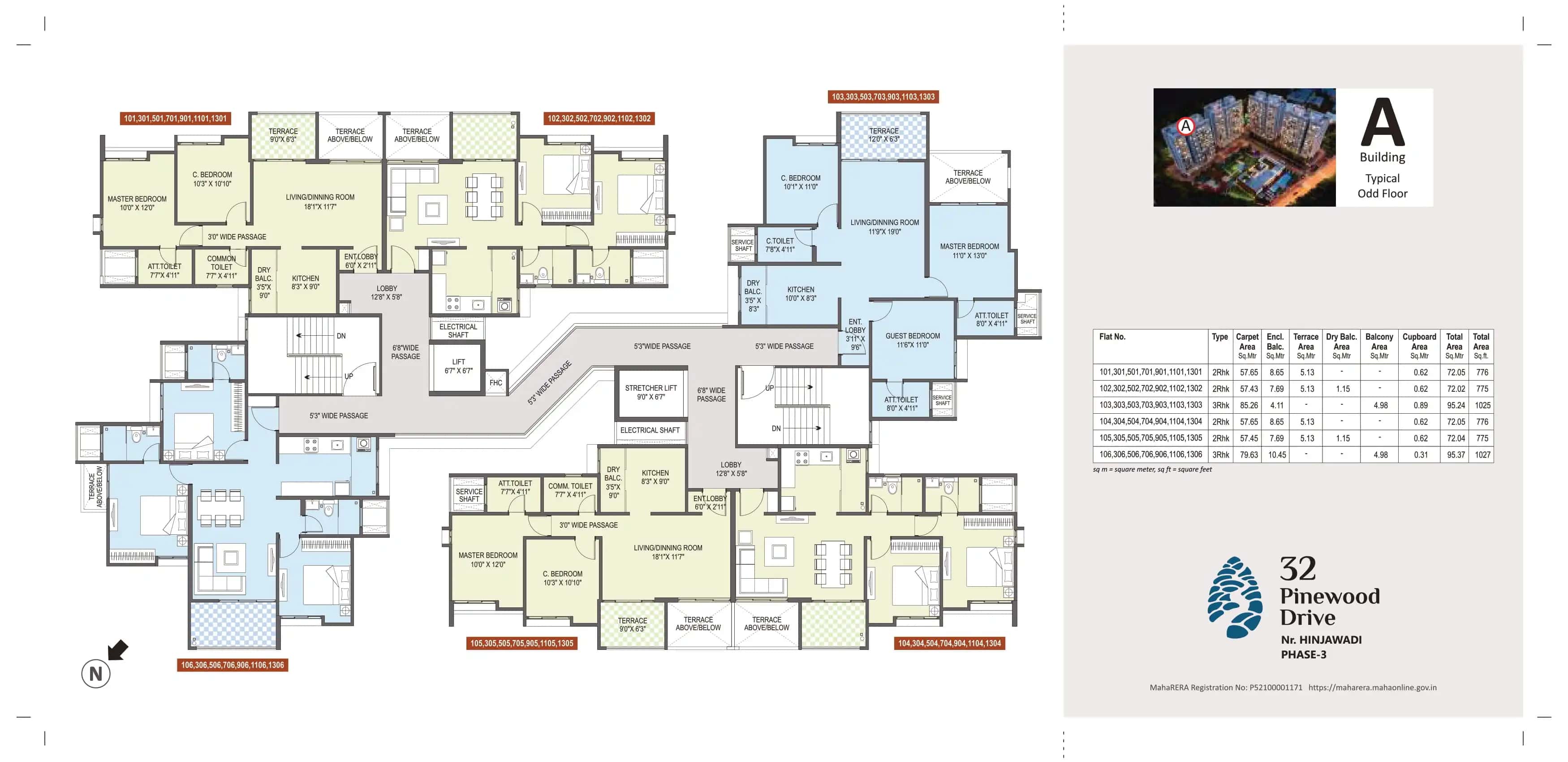
Carpet Area & Floor Plan
32 Pinewood Drive Hinjewadi project has 2BHK, 3BHK premium residences with -
2BHK - (710 to 808) sqft
3BHK - (973 to 1034) sqft
Bhandari 32 Pinewood Drive floor plan
Tower floor plans will have 6 flats,2 lifts & 2 staircases on each floor
Maintenance -
Bhandari 32 Pinewood Drive Pune Project maintenance varies with the configuration and the carpet area which are as follows-
2BHK - (3500 - 4000) per month
3BHK - (5000 - 6500) per month
Bhandari 32 Pinewood Drive project sample flat is ready to view at the site.
Bhandari 32 Pinewood Drive price & its details can be found in the price section &32 Pinewood Drive Hinjewadi brochure can be downloaded from the link mentioned below. Project has been praised by the home buyers & Bhandari Associates Hinjewadi review is 4 out of 5 from over all the clients who have visited the site.
Near TCS, Hinjewadi, Pune

Pros
Cons
Digital Lock
Video Door Phone
Vitrified Tiles
Granite Kitchen Platform
D.G Backup
CCTV Camera
Gas pipe Line
Swimming Pool
Club House
Kids Play Area
Multi Purpose Court
Kids Pool
Basketball Court
Indoor games
party lawn
Gymnasium
Fitness Studio
Multi purpose hall














| Carpet Area | All Inc. Price (Inc. of Taxes & Charges) | Min Downpayment (Inc. Taxes) | Parking | Unit Plan |
|---|---|---|---|---|
772 sqftSold Out | ![]() | - | - | ![]() |
777 sqftSold Out | ![]() | - | - | ![]() |
780 sqftSold Out | ![]() | - | - | ![]() |
710 sqftSold Out | ![]() | - | - | ![]() |
712 sqftSold Out | ![]() | - | - | ![]() |
808 sqftSold Out | ![]() | - | - | ![]() |


Is there any litigation against this proposed project:
NoBhandari Associates

1 CityLocations
Pune

652 - 1212 sqft
Pride Purple Properties
Developer
710 - 710 sqft
Kasturi Housing
Developer



662 - 1376 sqft
Mittal Brothers
Developer







658 - 658 sqft
Kumar Realty
Developer
--1713601821946-img.webp&w=3840&q=75)


799 - 2140 sqft
Paranjape Schemes
Developer

753 - 1218 sqft
Gera Developer
Developer
Housiey Legal: Free Real Estate Legal Consultation
Get Expert Advice on RERA, Builder Refunds, Area Mismatch, Stuck Projects & More - at No Cost!