Last updated: Mar 25, 2026












Land Parcel
Towers
Floors
Config
Carpet Area
RERA NO.
Possession Status
Target Possession
RERA Possession
Litigation
VS Vikhroli East Project Overview
VS Royal 22 Project will be constructed on 0.21 acre of land parcel, 1 tower with G+23 floors having 1 BHK, 2 BHK, 3.5 BHK premium residences .
VS Royal 22 Location
Project is located Nr EEH, kannamwar Nagar Vikhroli East, Mumbai with -
Shushrusha Hospital - 130m
Vikhroli Railway Station - 800m
JVLR Road - 2.2km
VS Royal 22 Vikhroli East Project Amenities
First is Internal amenities -
Vitrified Tiles, Granite Platform, SS sink & many more
VS Developers Vikhroli East External Amenities
Project has 20+ amenities with likes of -
Yoga Area
Open Gym
Play Area
Green Spaces
Seating Area & many more.
VS Developers Royal 22 Vikhroli East Parking -
Project has One type of car parking facility -
1) Tower Parking
VS Royal 22 Possession -
Rera Possession - September 2025
Target Possession - May 2025
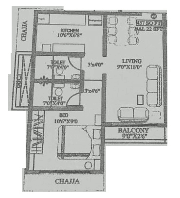
Carpet Area & Floor Plan
Royal 22 Mumbai project has 1BHK, 2BHK, 3.5BHK premium residences with -
1BHK - 437 sqft
2BHK - 599 sqft
3.5BHK - 1086 sqft
VS Royal 22 floor plan
Tower floor plan will have 3 flats 2 lifts & 1 staircases on each floor
Maintenance -
VS Royal 22 Vikhroli East Project maintenance varies with the configuration and the carpet area which are as follows-
1BHK - Rs (1700 - 1900) per month
2BHK - Rs (2400 - 2500) per month
3.5BHK - Rs 4300 per month
Royal 22 Vikhroli East project sample flat is ready to view at the site.
Royal 22 Prices & its details can be found in the price section & VS Royal 22 Vikhroli East brochure can be downloaded from the link mentioned below. Project has been praised by the home buyers & VS Developers Vikhroli East review is 4 out of 5 from over all the clients who have visited the site
Nr EEH, Kannamwar Nagar, Vikhroli East, Mumbai.

Pros
Cons
Vitrified Tiles
Granite Kitchen Platform
Stainless Steel Sink
Branded Fittings
Kids Play Area
Green Space
Yoga Zone
Seating Area
Gymnasium



| Carpet Area | All Inc. Price (Inc. of Taxes & Charges) | Min Downpayment (Inc. Taxes) | Parking | Unit Plan |
|---|---|---|---|---|
437 sqftSold Out | ![]() | - | - | ![]() |
465 sqftSold Out | ![]() | - | - | ![]() |


Is there any litigation against this proposed project:
NoVS Developers

1 CityLocations
Mumbai suburban



398 - 873 sqft
Vaibhavlaxmi
Developer



385 - 637 sqft
Vaibhavlaxmi
Developer





358 - 775 sqft
Haware Properties
Developer







Housiey Legal: Free Real Estate Legal Consultation
Get Expert Advice on RERA, Builder Refunds, Area Mismatch, Stuck Projects & More - at No Cost!