Last updated: May 17, 2025























Land Parcel
Towers
Floors
Config
Carpet Area
RERA NO.
Possession Status
Target Possession
RERA Possession
Litigation
Godrej Vistas Vikhroli East Project Overview
Godrej Vistas Project will be constructed on 3 acres of land parcel, 2 towers with 4B+G+31 floors having 2 BHK, 3 BHK & 3.5 BHK premium residences .
Godrej Vistas Location
Project is located Off Eastern Express Highway, Pirojshanagar, Vikhroli East, Mumbai with -
Godrej Memorial Hospital - 550m
Vikhroli Railway Station - 1.2km
JVLR Road - 3.2km
Godrej Vistas Vikhroli East Project Amenities
First is Internal amenities -
Vitrified Tiles, Granite Platform, SS sink & many more
Godrej Properties Vikhroli East External Amenities
Project has 20+ amenities with likes of -
Swimming Pool
Gymnasium
Kid's Play Area
Indoor games
Multipurpose Area & many more
Godrej Properties Vistas Vikhroli East Parking -
Project has one type of car parking facility -
1) Basement
Godrej Vistas Possession -
Rera Possession - December 2029
Target Possession - December 2027
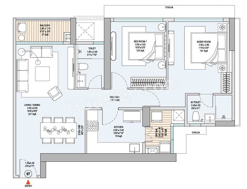
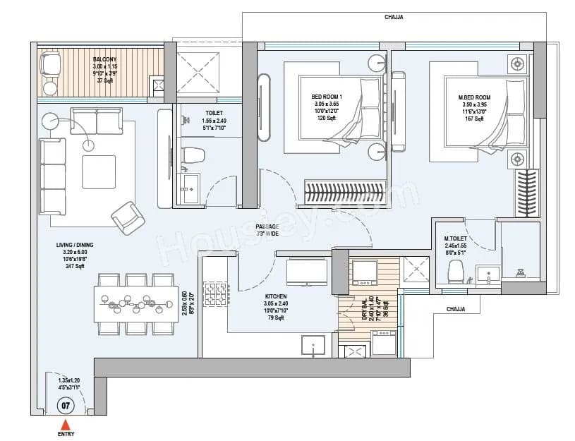
Carpet Area & Floor Plan
Vistas Mumbai project has 2BHK, 3BHK, 3.5BHK premium residences with -
2BHK - (844 - 853) sqft
3BHK - (985 - 1196) sqft
3.5BHK - 1410 sqft
Godrej Vistas floor plan
Tower floor plan will have 7 flats 6 lifts & 2 staircases on each floor
Maintenance -
Godrej Vistas Vikhroli East Project maintenance varies with the configuration and the carpet area which are as follows-
2BHK - Rs (15200 - 5400) per month
3BHK - Rs (17700 - 21500) per month
3.5BHK - Rs 25400 per month
Vistas project sample flat is ready to view at the site.
Vistas Prices & its details can be found in the price section & Godrej Vistas Vikhroli East brochure can be downloaded from the link mentioned below. Project has been praised by the home buyers & Godrej Properties Vikhroli East review is 4 out of 5 from over all the clients who have visited the site.
Off Eastern Express Highway, Vikhroli East, Mumbai

Pros
Cons
Vitrified Tiles
Granite Kitchen Platform
Stainless Steel Sink
Branded Fittings
Swimming Pool
Kids Play Area
Jogging Track
Senior Citizen Area
Squash Court
Outdoor Gym
Net Cricket
Yoga Zone
Banquet Hall
Toddlers Play Area
Seating Area
Pool deck
Indoor games
Star Gazing
Gymnasium
+1 More








| Carpet Area | All Inc. Price (Inc. of Taxes & Charges) | Min Downpayment (Inc. Taxes) | Parking | Unit Plan |
|---|---|---|---|---|
844 sqft | 3.49 Cr All In | 52.00 Lacs | 1 | ![]() |
851 sqft | 3.49 Cr All In | 52.00 Lacs | 1 | ![]() |
853 sqft | 3.80 Cr All In | 57.00 Lacs | 1 | ![]() |

Is there any litigation against this proposed project:
Yes| Court Name | City | Case Type | Petition | Case Number | Year | Case Status |
|---|---|---|---|---|---|---|
| Honble Bombay High Court | Mumbai | Civil | Writ Petition | 269 of 2021 | 2021 | Ongoing |
| Honble Revenue Minister Mantralaya | Mumbai | Civil | Appeal | Appeal No 2618 6764 Pra Ka 138/J | 2018 | Ongoing |
Godrej Vistas Proforma Sale Agreement
Godrej Vistas Proforma Allotment Letter
Godrej Vistas Layout Plan
Note: You can download more detailed documents by following this link
Godrej Properties

7 CitiesLocations
Hyderabad, Ahmedabad, Bangalore Rural, Bangalore Urban, Mumbai City, Pune, Mumbai suburban



398 - 873 sqft
Vaibhavlaxmi
Developer



385 - 637 sqft
Vaibhavlaxmi
Developer




358 - 775 sqft
Haware Properties
Developer







Housiey Legal: Free Real Estate Legal Consultation
Get Expert Advice on RERA, Builder Refunds, Area Mismatch, Stuck Projects & More - at No Cost!