Last updated: Apr 28, 2026






Land Parcel
Towers
Floors
Config
Carpet Area
RERA NO.
Possession Status
Target Possession
RERA Possession
Litigation
UK Kandivali East Project Overview
UK Luxecity Project will be constructed on 5 acres of land parcel, 4 towers with G+4P+33 floors having 1 BHK, 2 BHK premium residences .
UK Luxecity location
Project is located Opp. Mahindra Yellow Gate, Kandivali East, Mumbai with -
Akurli Mumbai Metro Station- 1.5km
Growel's 101 Mall - 2.4km
Kandivali Railway Station - 3.4km
UK Luxecity Kandivali Project Amenities
First is Internal amenities -
Vitrified tiles, Granite Kitchen, Earthquake resistance, Ms grill, SS sink, Video door phone, Generator backup & many more
UK Realty Kandivali East External Amenities
Project has 30+ amenities with likes of -
Gymnasium
Swimming Pool
Yoga Area
Zen Garden
Indoor Games & Many More
UK Realty Luxecity Kandivali East Parking -
Project has one type of car parking facility -
1) Podium
UK Luxecity Possession -
Rera Possession - December 2027
Target Possession - May 2027
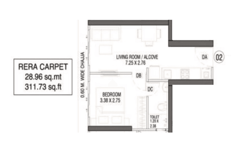
Carpet Area & Floor Plan
Luxecity Kandivali east project has 1BHK, 2BHK premium residences with -
1BHK - (262 to 311) sqft
2BHK - (553 to 594) sqft
UK Luxecity floor plan
Tower floor plan will have 10 flats 4 lifts & 2 staircases on each floor
Luxecity Kandivali East project sample flat is ready to view at the site.
Luxecity Prices & its details can be found in the price section & UK Luxecity Kandivali East brochure can be downloaded from the link mentioned below. Project has been praised by the home buyers & UK Realty Kandivali East review is 4 out of 5 from over all the clients who have visited the site.
Opp. Mahindra Yellow Gate, Kandivali East, Mumbai

Pros
Cons
Vitrified Tiles
Granite Kitchen Platform
Stainless Steel Sink
Exhaust Fan
Swimming Pool
Kids Play Area
Garden
Senior Citizen Area
Flower Garden
Seating Area
Carrom
Table Tennis
Indoor games
Yoga Deck
Badminton Court
Gymnasium
Volleyball Court
Terrace Garden
Sky Cafeteria




| Carpet Area | All Inc. Price (Inc. of Taxes & Charges) | Min Downpayment (Inc. Taxes) | Parking | Unit Plan |
|---|---|---|---|---|
262 sqftLimited | 74.00 Lacs All In | 11.00 Lacs | 0 | ![]() |
311 sqftSold Out | ![]() | - | - | ![]() |
418 sqftSold Out | ![]() | - | - | ![]() |
312 sqftLimited | 84.00 Lacs All In | 13.00 Lacs | 0 | ![]() |

Is there any litigation against this proposed project:
NoUK Luxecity Commencement Certificate
UK Luxecity Legal Title Report
UK Luxecity Layout Plan
Note: You can download more detailed documents by following this link
UK Realty

2 CitiesLocations
Mumbai City, Mumbai suburban


No floor rise charges, 0% stamp duty & registration, and a 2-year paycation offer.
405 - 985 sqft
Godrej Properties
Developer

983 - 1076 sqft
Shapoorji Pallonji Group
Developer
The project offers a free modular kitchen, fully air-conditioned rooms, and zero stamp duty, making it a great value-for-money opportunity.
243 - 497 sqft
Enso Group
Developer
402 - 1315 sqft
Mahaveer Construction
Developer





365 - 620 sqft
Sethia Infrastructure
Developer
414 - 1242 sqft
Samarpan Homes and Developers
Developer


1320 - 2447 sqft
Shapoorji Pallonji Group
Developer
1320 - 2447 sqft
Shapoorji Pallonji Group
Developer
Housiey Legal: Free Real Estate Legal Consultation
Get Expert Advice on RERA, Builder Refunds, Area Mismatch, Stuck Projects & More - at No Cost!