Last updated: Apr 19, 2026








Land Parcel
Towers
Floors
Config
Carpet Area
RERA NO.
Possession Status
Target Possession
RERA Possession
Litigation
Total Environment Chikkajala Project Overview
After The Rain Chikkajala will be constructed on 48.1 Acres of land parcel, 552 Villas with G+1 floors having 3BHK & 4BHK premium residences.
After The Rain location
Project is located On Sir M Visvesvaraya Inst Rd,Chikkajala,Yelahanka, Bengaluru with -
Bellary Road - 2.1km
SMVIT - 1.6km
Bettahalsoor Station - 2.1km
After The Rain Chikkajala Project Amenities
First is Internal amenities -
Flooring, Kitchen Countertop, Furniture, Electric Chimney, CC tv and many more.
Total Environment Chikkajala External Amenities
Project has 40+ luxurious amenities with likes of -
Clubhouse
Multipurpose open space
Dense Planting Area
Bird Watching Zone
Children's Play Area and Many more.
Total Environment After The Rain Chikkajala Parking -
Project has One type of car parking facility
1) Ground
Total Environment After The Rain Possession -
Rera Possession - April 2032
Target Possession - April 2032
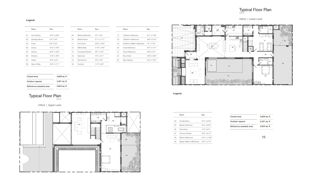
Built-up Area & Floor Plan
After The Rain project has 3BHK & 4BHK premium residences with -
4BHK - 3184 sqft
3BHK - 4824 sqft
4BHK - 5120 sqft
Total Environment After The Rain Floor plan -
Tower Floor Plan will have flats Lifts & Staircase on each Floor
Maintenance -
After The Rain Bangalore Project maintenance varies with the configuration and the carpet area which are as follows-
3BHK - Rs 19296 per month
4BHK - Rs (12736 - 20480) per month
After The Rain Prices & its details can be found in the price section & Total Environment After The Rain Chikkajala brochure can be downloaded from the link mentioned below. Project has been praised by the home buyers & Total Environment Chikkajala review is 4 out of 5 from over all the clients who have visited the site.
On Sir M Visvesvaraya Inst Rd, Chikkajala, Yelahanka, Bangalore
Pros
Cons
CCTV Camera
Chimney
Modular Kitchen
Club House
Kids Play Area
Tennis Court
Multi Purpose Lawn
Library
Indoor games
Gymnasium
Multi purpose hall


| Build-up Area | Carpet Area | All Inc. Price (Inc. of Taxes & Charges) | Min Downpayment (Inc. Taxes) | Parking | Unit Plan |
|---|---|---|---|---|---|
4824 sqft | 3809 sqft | 15.99 Cr All In | 1.60 Cr | 2 | ![]() |

Is there any litigation against this proposed project:
NoTotal Environment After The Rain Layout Plan
Total Environment After The Rain Proforma Allotment Letter
Total Environment After The Rain Proforma Sale Agreement
Note: You can download more detailed documents by following this link
Total Environment Homes

2 CitiesLocations
Bangalore Rural, Bangalore Urban




1500 - 2400 sqft
Century Real Estate
Developer
2600 - 2600 sqft
Preeti Developers
Developer


Housiey Legal: Free Real Estate Legal Consultation
Get Expert Advice on RERA, Builder Refunds, Area Mismatch, Stuck Projects & More - at No Cost!