


Land Parcel
Towers
Floors
Config
Carpet Area
RERA NO.
Possession Status
Target Possession
RERA Possession
Litigation
Siddhi Kondhwa Project Overview
Siddhi The Landmark Kondhwa will be constructed on 2 acres of land parcel, 3 towers with G+4P+18 floors having 2BHK, 3BHK & 4BHK premium residences.
Siddhi The Landmark Kondhwa location
Project is located Near Tyni Audyogic Wasahat, Kondhwa, Pune with -
Kondhwa Main Road - 850m
D-Mart - 1.9km
Kondhwa Khadi Machine Chowk - 2.3km
Siddhi The Landmark Kondhwa Project Amenities
First is Internal amenities -
Video Door Phone, Vitrified tiles, Granite Kitchen Platform, SS Sink, Anti-Skid Tiles, Brass Plated Taps, SS Mortoise Lock, Aluminium Sliding Windows, Mosquito Net & Grill, DG Backup & many more
Siddhi landmark Kondhwa External Amenities
Project has 10+ luxurious amenities with likes of -
1) Swimming Pool
2) Yoga Zone
3) Gymnasium
4) Jogging Track
5) Kid's play area
6) Work & Reading Zone
7) Indoor Games
8) Senior Citizen Sitout & Many More
Siddhi The Landmark Kondhwa Parking -
Project has One type of car parking facility -
1) Podium
Siddhi The Landmark Kondhwa Possession -
Rera Possession - November 2033
Target Possession - December 2027
Siddhi The Landmark Kondhwa Carpet Area
Abode Kondhwa project has 2BHK, 3BHK & 4BHK premium residences with -
2BHK - (750 to 778) sqft
3BHK - (952 to 1144) sqft
4BHK - (1341 to 1523) sqft
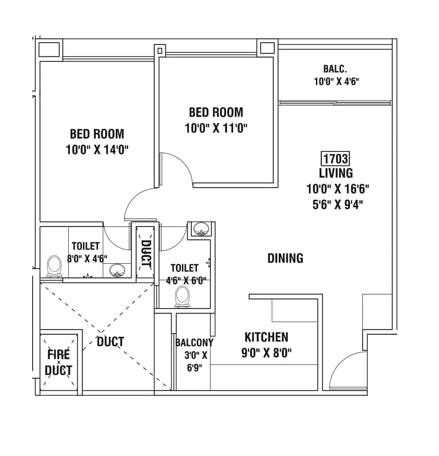
Siddhi landmark The Landmark Kondhwa floor plan
Tower floor plans will have 8 flats & 3 lift 2 staircases on each floor
Maintenance -
The Landmark Kondhwa Pune Project maintenance varies with the configuration and the carpet area which are as follows-
2BHK - Rs (4800 - 5000) per month
3BHK - Rs (6600 - 7400) per month
4BHK - Rs 9800 per month
Siddhi The Landmark Kondhwa Prices & its details can be found in the price section & Siddhi The Landmark Kondhwa brochure can be downloaded from the link mentioned below. Project has been praised by the home buyers & Siddhi landmark Kondhwa review is 4 out of 5 from over all the clients who have visited the site.
Near Tyni Audyogic Wasahat, Kondhwa, Pune

Pros
Cons
Video Door Phone
Vitrified Tiles
Granite Kitchen Platform
Stainless Steel Sink
D.G Backup
Solar Water Heater
Mosquito Mesh Windows
Swimming Pool
Kids Play Area
Jogging Track
Senior Citizen Area
Green Space
Basketball Court
Amphitheater
Table Tennis
Acupressure Pathway
Gazebo
Indoor games
party lawn
Yoga Deck
Gymnasium
Multi purpose hall


| Carpet Area | All Inc. Price (Inc. of Taxes & Charges) | Min Downpayment (Inc. Taxes) | Parking | Unit Plan |
|---|---|---|---|---|
750 sqft | 79.16 Lacs All In | 12.00 Lacs | 1 | ![]() |
778 sqft | 82.10 Lacs All In | 11.00 Lacs | 1 | ![]() |
762 sqft | 80.42 Lacs All In | 12.00 Lacs | 1 | ![]() |
765 sqft | 80.62 Lacs All In | 11.00 Lacs | 1 | ![]() |

Is there any litigation against this proposed project:
NoSiddhi Landmark

1 CityLocations
Pune

777 - 1798 sqft
Majestique Landmarks
Developer


491 - 812 sqft
Sheth Realty
Developer
421 - 1616 sqft
Provident Housing
Developer


779 - 943 sqft
Yash Promoters Builders
Developer


750 - 1523 sqft
Siddhi Landmark
Developer


Housiey Legal: Free Real Estate Legal Consultation
Get Expert Advice on RERA, Builder Refunds, Area Mismatch, Stuck Projects & More - at No Cost!