




Land Parcel
Towers
Floors
Config
Carpet Area
RERA NO.
Possession Status
Target Possession
RERA Possession
Litigation
Provident Kondhwa Project Overview
Provident Kenvista Project will be constructed on 10 acres of land parcel, 13 towers with G+22 floors having 1BHK, 2BHK, 2.5BHK, 4BHK Duplex & 5BHK Simplex premium residences.
Provident Kenvista location
Project is located Near NIBM Link Road, Kondhwa, Pune. with -
D-Mart - 900m
Kondhwa Main Road - 1.2km
Undri Chowk - 3.2km
Provident Kenvista Kondhwa Project Amenities
First is Internal amenities -
Vitrified Tiles, Granite Platform, SS Sink, MS Railing, Powder Coated Aluminium Sliding Windows, CP Fitting, EV Charging Point, CCTV Surveillance, Generator & many more.
Project has 25+ luxurious amenities with likes of -
Swimming pool,
Children's Play Area,
Gymnasium,
Indoor Games,
Party Lawn,
Jogging track,
Cricket pitch,
Skating rink,
Mini golf,
Aromatherapy, Toddler Sand Pit, & Many More
Provident Housing Kondhwa Parking -
Project has one type of car parking facility -
1) Ground
Provident Kenvista Possession -
Rera Possession - September 2028
Target Possession - December 2027
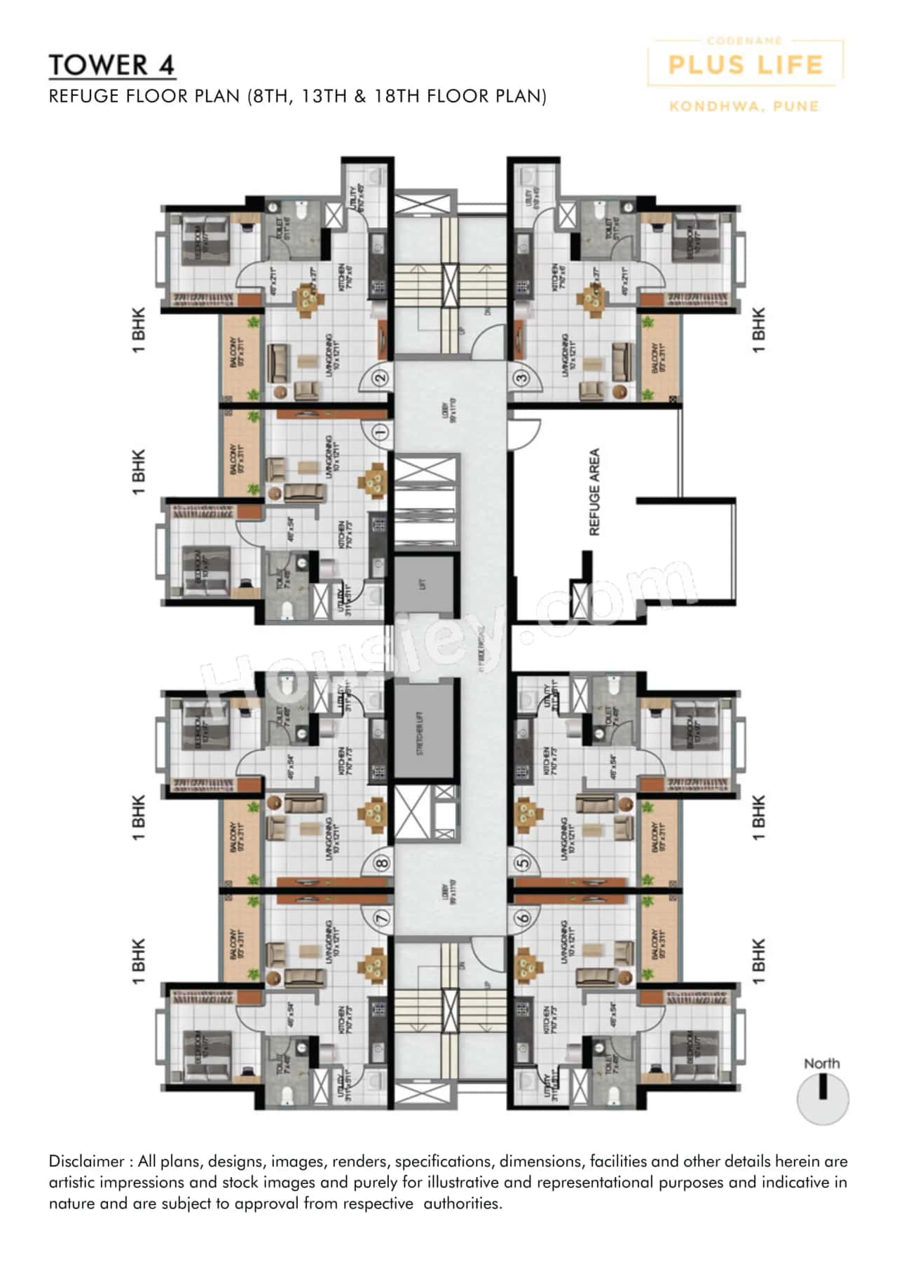
Carpet Area & Floor Plan
Kenvista project has 1BHK, 2BHK, 2.5BHK, 3BHK, 4BHK Duplex & 5BHK Simplex premium residences with -
1BHK - (421 - 539) sqft
2BHK - (732 - 740) sqft
2.5BHK - (882 to 887) sqft
4BHK Duplex - 1549 sqft
5BHK Simplex - 1616 sqft
Provident Kenvista floor plan
Tower floor plan will have 4 flats 2 lifts & 2 staircases on each floor
Maintenance -
Provident Kenvista Pune Project maintenance varies with the configuration and the carpet area which are as follows-
1BHK - Rs (2700 - 3500) per month
2BHK - Rs 5000 per month
2.5BHK - Rs (5500 - 6000) Per Month
4BHK Duplex - Rs 10000 per month
5BHK Duplex - Rs 10500 per month
Provident Kenvista project sample flat is ready to view at the site.
Provident Kenvista Prices & its details can be found in the price section & Provident Kenvista Kondhwa brochure can be downloaded from the link mentioned below. Project has been praised by the home buyers & Provident Housing Kondhwa review is 4 out of 5 from over all the clients who have visited the site.
Near NIBM Link Road, Kondhwa, Pune.


Pros
Cons
Vitrified Tiles
Granite Kitchen Platform
Stainless Steel Sink
CCTV Camera
Swimming Pool
Kids Play Area
Jogging Track
Golf Course
Senior Citizen Area
Kids Pool
Squash Court
Football Court
Skating Rink
Co Working Spaces
Lap Pool
Private Spa
Cricket Pitch
Herbal Garden
Toddlers Play Area
+12 More






| Carpet Area | All Inc. Price (Inc. of Taxes & Charges) | Min Downpayment (Inc. Taxes) | Parking | Unit Plan |
|---|---|---|---|---|
421 sqft | 49.00 Lacs All In | 7.00 Lacs | 1 | ![]() |
539 sqft | 61.00 Lacs All In | 9.00 Lacs | 1 | ![]() |

Is there any litigation against this proposed project:
Yes| Court Name | City | Case Type | Petition | Case Number | Year | Case Status |
|---|---|---|---|---|---|---|
| District and Sessions Court Pune | Pune | Civil | Suit | 449 | 2016 | Ongoing |
Provident Kenvista Legal Title Report
Provident Kenvista Commencement Certificates
Provident Kenvista Proforma Sale Agreement
Note: You can download more detailed documents by following this link
Provident Housing

6 CitiesLocations
Bangalore Rural, Bangalore Urban, Mumbai City, Mumbai suburban, Pune, Hyderabad


491 - 812 sqft
Sheth Realty
Developer
421 - 1616 sqft
Provident Housing
Developer


779 - 943 sqft
Yash Promoters Builders
Developer



750 - 1523 sqft
Siddhi Landmark
Developer

Housiey Legal: Free Real Estate Legal Consultation
Get Expert Advice on RERA, Builder Refunds, Area Mismatch, Stuck Projects & More - at No Cost!