Last updated: Feb 8, 2023







Land Parcel
Towers
Floors
Config
Carpet Area
RERA NO.
Possession Status
Target Possession
RERA Possession
Litigation
Pragati Mohammed Wadi Project Overview
Pragati Serene will be constructed on 1.5 Acres of land parcel, 3 towers with 3B+G+11 floors having 2 BHK premium residences.
Pragati Serene location
Project is located Near Katraj - Hadapsar Bypass Road, Mohammed Wadi, Pune with -
Undri Chowk - 2.5km
Handewadi Road - 3.8km
D-Mart Kondhwa - 4.2km
Pragati Serene Mohammed Wadi Project Amenities
First is Internal amenities -
Vitrified Tiles, Granite kitchen, Earthquake Resistance, MS Grills, SS Sink, Fire fighting system, Power backup, Aluminium windows, mosquito mesh, Video door phone, Fire Fighting System & many more
Pragati Group Mohammed Wadi External Amenities
Project has luxurious amenities with likes of -
Club House
Gymnasium
Indoor Games
Kids Play Area
Half Basketball Court & Many More
Pragati Group Serene Mohammed Wadi Parking -
Project has one type of car parking facility i.a Basement
Pragati Serene Possession -
Rera Possession - December 2023
Target Possession - October 2023
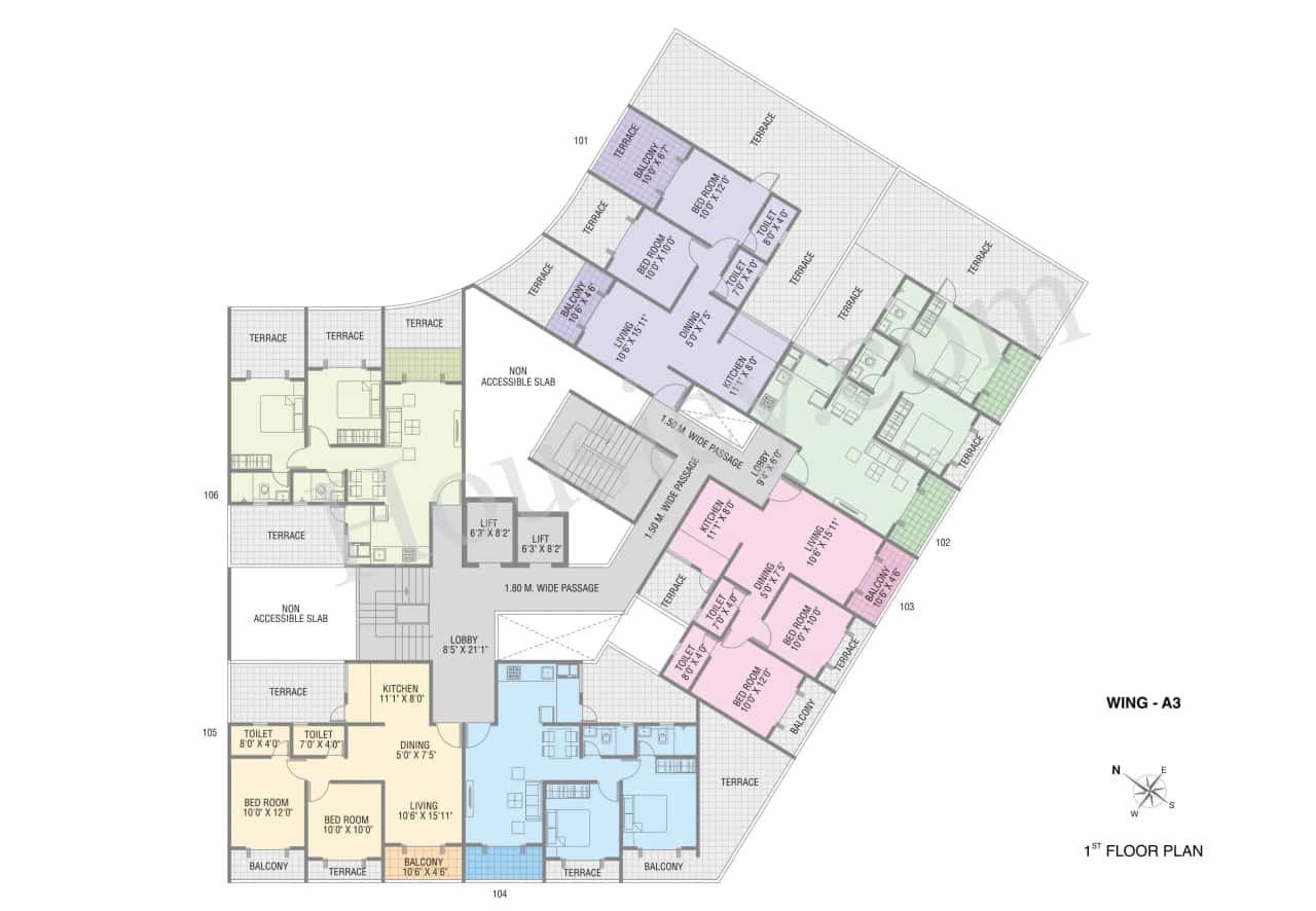
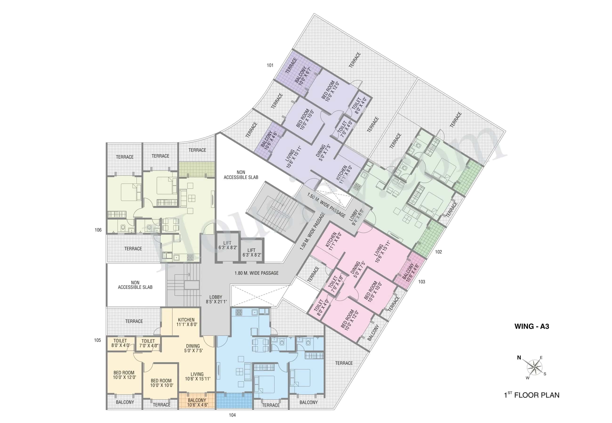
Carpet Area & Floor Plan
Serene project has 2BHK premium residences with -
2BHK - 679sqft
Pragati Serene floor plan
Tower floor plans will have 6 flats 2 lift & 2 staircases on each floor
Maintenance -
Pragati Serene Pune Project maintenance varies with the configuration and the carpet area which are as follows-
2BHK - 2800 per month
Pragati Serene sample flat is ready to view at the site.
Pragati Serene Prices & its details can be found in the price section & Pragati Serene brochure can be downloaded from the link mentioned below. Project has been praised by the home buyers & Pragati Group Mohammed Wadi review is 4 out of 5 from over all the clients who have visited the site.
Near Katraj - Hadapsar Bypass Road, Mohammed Wadi, Pune

Pros
Cons
Video Door Phone
Vitrified Tiles
Granite Kitchen Platform
Stainless Steel Sink
Mosquito Mesh Windows
Safety Doors
Fire Fighting
Club House
Kids Play Area
Basketball Court
Gazebo
Indoor games
party lawn
Gymnasium





| Carpet Area | All Inc. Price (Inc. of Taxes & Charges) | Min Downpayment (Inc. Taxes) | Parking | Unit Plan |
|---|---|---|---|---|
679 sqftSold Out | ![]() | - | - | ![]() |


Is there any litigation against this proposed project:
NoPragati Group

1 CityLocations
Pune

1456 - 2085 sqft
Aswani Promoters And Builders
Developer
770 - 1865 sqft
Kanifnath Reality
Developer



1016 - 1280 sqft
Landmark Ventures
Developer
800 - 1665 sqft
Kanifnath Reality
Developer
753 - 782 sqft
Goel Ganga Developments
Developer

Housiey Legal: Free Real Estate Legal Consultation
Get Expert Advice on RERA, Builder Refunds, Area Mismatch, Stuck Projects & More - at No Cost!