



Land Parcel
Towers
Floors
Config
Carpet Area
RERA NO.
Possession Status
Target Possession
RERA Possession
Litigation
Gurukrupa DevelopersKiwale Project Overview
Gurukrupa 7 Avenue will be constructed on 1 acre of land parcel, 3 towers with G+13 floors having 2 BHK & 3 BHK premium residences.
Gurukrupa 7 Avenue location
Project is located Near Symbiosis Collage, Mukai Chowk, Kiwale, Punewith -
Mumbai-Bangalore Highway - 450m
Reliance Smart Superstore - 4.1km
Mukai chowk Bus Stop - 2.8km
Gurukrupa 7 Avenue Kiwale Project Amenities
First is Internal amenities -
Vetrified tiles, Granite kitchen platform, RCC Framed, Video Intercom System, Rain water Harvesting, earthquake resistant & many more
Gurukrupa DevelopersKiwale External Amenities
Project has 25+ luxurious amenities with likes of -
Clubhouse
Open Gym
Children Play Area
Gazebo Seating
Senior Citizen Zone & Many More
Gurukrupa 7 Avenue Kiwale Parking -
Project has one type of car parking facility
1) Ground
Gurukrupa 7 Avenue Possession -
Rera Possession - March 2029
Target Possession - December 2028
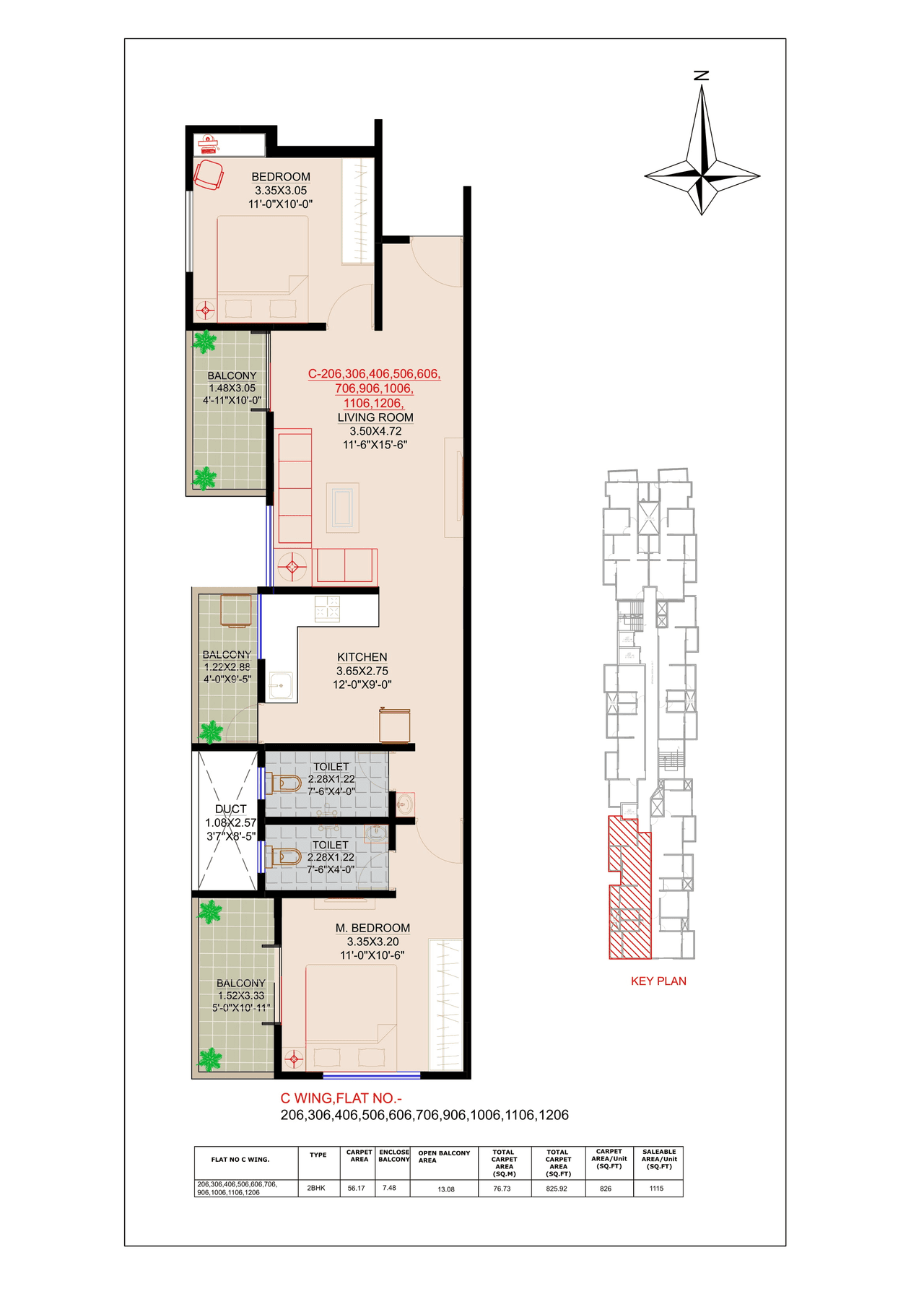
Carpet Area & Floor Plan
Gurukrupa 7 Avenue Ravet project has 2BHK & 3BHK premium residences with -
2BHK - ( 744 to 826) sqft
3BHK - 1041 sqft
Gurukrupa 7 Avenue floor plan
Tower floor plans will have 6 flats & 2 lift 2 staircases on each floor
Maintenance -
Gurukrupa 7 Avenue Pune Project maintenance varies with the configuration and the carpet area which are as follows-
2BHK - Rs (2900 - 3300) per month
3BHK - Rs 4100 per month
Gurukrupa 7 Avenue & its details can be found in the price section & Gurukrupa 7 Avenue brochure can be downloaded from the link mentioned below. Project has been praised by the home buyers & Gurukrupa Developers Kiwale review is 4 out of 5 from over all the clients who have visited the site.
Near Symbiosis Collage, Mukai Chowk, Kiwale, Pune
Pros
Cons
Vitrified Tiles
Granite Kitchen Platform
Stainless Steel Sink
CCTV Camera
Club House
Kids Play Area
Jogging Track
Senior Citizen Area
Skating Rink
Co Working Spaces
Multi Purpose Lawn
Library
Open Gym
Meditation Zone
Temple Complex
Seating Area
Gazebo
Indoor games
party lawn
+1 More


| Carpet Area | All Inc. Price (Inc. of Taxes & Charges) | Min Downpayment (Inc. Taxes) | Parking | Unit Plan |
|---|---|---|---|---|
744 sqftSold Out | ![]() | - | - | ![]() |
757 sqftSold Out | ![]() | - | - | ![]() |
776 sqftSold Out | ![]() | - | - | ![]() |
806 sqftSold Out | ![]() | - | - | ![]() |
826 sqftSold Out | ![]() | - | - | ![]() |


Is there any litigation against this proposed project:
NoGurukrupa Developers

1 CityLocations
Pune





656 - 1081 sqft
Kolte Patil Developers
Developer


1009 - 1009 sqft
GK Associates
Developer

681 - 939 sqft
Mohisha Realtors
Developer--1720963076507-img.webp&w=1280&q=75)

797 - 1050 sqft
Vellkin Spaces
Developer

705 - 1005 sqft
Sai Siddha Associates
Developer

Housiey Legal: Free Real Estate Legal Consultation
Get Expert Advice on RERA, Builder Refunds, Area Mismatch, Stuck Projects & More - at No Cost!