Last updated: Mar 19, 2026








Land Parcel
Towers
Floors
Config
Carpet Area
RERA NO.
Possession Status
Target Possession
RERA Possession
Litigation
DGS Goregaon East Project Overview
DGS Sheetal Sangham Project will be constructed on 1 acre of land parcel, 1 tower with 5P+G+33 floors having 2 BHK premium residences.
DGS Sheetal Sangham location
Project is located Near Western Express Hwy, Dindoshi, Goregaon East, Mumbai with -
Oberoi Mall -130m
Dindoshi Metro Station - 1.1km
Goregaon Railway Station - 2.1km
DGS Sheetal Sangham Goregaon Project Amenities
First is Internal amenities -
Vitrified Tiles, Granite Platform, Branded Fitting, SS Sink & many more
DGS Group Goregaon East External Amenities
Project has 25+ amenities with likes of -
Gymnasium
Childrens Play Area
Yoda Zone
Banquet Hall & Many More
DGS Group Sheetal Sangham Goregaon East Parking -
Project has one type of car parking facility -
1) Podium
DGS Sheetal Sangham Possession -
Rera Possession - December 2027
Target Possession - December 2027
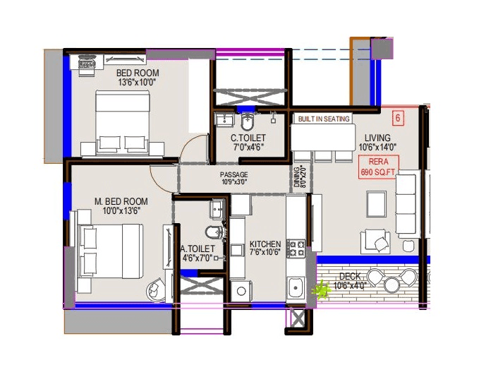
Carpet Area & Floor Plan
Sheetal Sangham project has 2BHK premium residences with -
2BHK - (585 to 710) sqft
DGS Sheetal Sangham floor plan
Tower floor plan will have 6 flats 4 lifts & 2 staircases on each floor
Sheetal Sangham Prices & its details can be found in the price section & DGS Sheetal Sangham Goregaon East brochure can be downloaded from the link mentioned below. Project has been praised by the home buyers & DGS Group Goregaon East review is 4 out of 5 from over all the clients who have visited the site.
Near Western Express Hwy, Dindoshi, Goregaon East, Mumbai

Pros
Cons
Intercom Facility
Vitrified Tiles
Granite Kitchen Platform
Stainless Steel Sink
Branded Fittings
CCTV Camera
Fire Fighting
Kids Play Area
Senior Citizen Area
Yoga Zone
Meditation Zone
Banquet Hall
Seating Area
Chit Chat Corner
Gazebo
Indoor games
Gymnasium


| Carpet Area | All Inc. Price (Inc. of Taxes & Charges) | Min Downpayment (Inc. Taxes) | Parking | Unit Plan |
|---|---|---|---|---|
585 sqft | 2.01 Cr All In | 30.00 Lacs | 1 | ![]() |
690 sqft | 2.34 Cr All In | 35.00 Lacs | 1 | ![]() |
710 sqft | 2.40 Cr All In | 36.00 Lacs | 1 | ![]() |

Is there any litigation against this proposed project:
NoDGS Group

2 CitiesLocations
Mumbai suburban, Mumbai City












1709 - 3032 sqft
Oberoi Realty
Developer
840 - 1200 sqft
Je and Vee Infrastructure
Developer
582 - 582 sqft
Arkade Group
Developer

623 - 2103 sqft
Agarwal Group of Companies
Developer



Housiey Legal: Free Real Estate Legal Consultation
Get Expert Advice on RERA, Builder Refunds, Area Mismatch, Stuck Projects & More - at No Cost!