










Land Parcel
Towers
Floors
Config
Carpet Area
RERA NO.
Possession Status
Target Possession
RERA Possession
Litigation
Delta Airoli Project Overview
Delta New Palm Beach will be constructed on 5.5 acres of land parcel, 3 towers with G+3P+45 floors having 2BHK, 3BHK premium residences.
Delta New Palm Beach location
Project is located Near Sector 20 Airoli Road, MSEB Staff Colony, Airoli, Navi Mumbai with -
EuroSchool - 2.1km
Airoli Railway Station - 2.9km
Dmart - 3.8km
Delta New Palm Beach Airoli Project Amenities
First is Internal amenities -
Vitrified Tile, Granite Kitchen, stainless steel sink, Brand Fitting & many more
Delta Group Airoli External Amenities
Project has 20+ luxurious amenities with likes of -
Swimming Pool
Multiple Clubhouse
Pet Spa
Landscaped Garden
Fitness Center & Many More
Delta Group New Palm Beach Airoli Parking -
Project has one type of car parking facility i.a
1) Podium
Delta New Palm Beach Possession -
Rera Possession - June 2030
Target Possession - December 2028
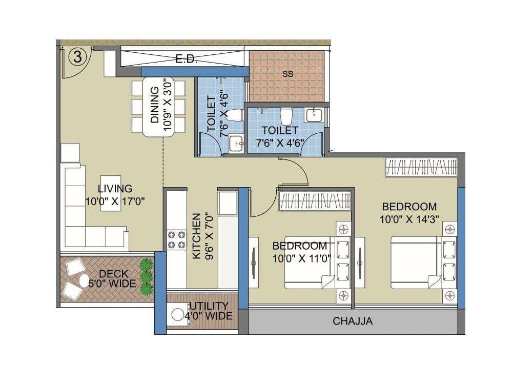
Carpet Area & Floor Plan
New Palm Beach project has 2BHK, 3BHK premium residences with -
2BHK - (671 - 759) sqft
3BHK - 1066 sqft
Delta New Palm Beach floor plan
Tower floor plan will have 6 flats 2 lifts & 1 staircase on each floor
New Palm Beach Airoli project sample flat is ready to view at the site.
New Palm Beach project sample flat is ready to view at the site New Palm Beach Prices & its details can be found in the price section & Delta New Palm Beach brochure can be downloaded from the link mentioned below. Project has been praised by the home buyers & Delta Group Airoli review is 4 out of 5 from over all the clients who have visited the site.
Near Sector 20 Airoli Rd, MSEB Staff Colony, Airoli, Navi Mumbai

Pros
Cons
Vitrified Tiles
Granite Kitchen Platform
Stainless Steel Sink
Swimming Pool
Club House
Kids Play Area
Yoga Zone
Meditation Zone
Seating Area
Indoor games
Landscaped Garden
Gymnasium
Sky Cafeteria
Fitness Deck







| Carpet Area | All Inc. Price (Inc. of Taxes & Charges) | Min Downpayment (Inc. Taxes) | Parking | Unit Plan |
|---|---|---|---|---|
671 sqft | 1.70 Cr All In | 26.00 Lacs | 1 | ![]() |
759 sqft | 2.34 Cr All In | 35.00 Lacs | 1 | ![]() |

Is there any litigation against this proposed project:
NoDelta New Palm Beach Proforma Sale Agreement
Delta New Palm Beach Proforma Allotment Letter
Delta New Palm Beach Layout Plan
Note: You can download more detailed documents by following this link
Delta Group

2 CitiesLocations
Mumbai City, Mumbai suburban

643 - 834 sqft
Proviso Group
Developer




Housiey Legal: Free Real Estate Legal Consultation
Get Expert Advice on RERA, Builder Refunds, Area Mismatch, Stuck Projects & More - at No Cost!