









Land Parcel
Towers
Floors
Config
Carpet Area
RERA NO.
Possession Status
Target Possession
RERA Possession
Litigation
Agac Wagholi Project Overview
Agac Sanskruti Oriana will be constructed on 1 acre of land parcel, 5 towers with B+G+7 floors having, 1BHK, 2BHK, 3BHK premium residences.
Agac Sanskruti Oriana location
Project is Located Near Lohegaon Rd, Wagholi, Pune. with -
D Mart - 1km
Wagholi Bus Stop - 2km
Decathlon Sports - 3.1km
Agac Wagholi Road Project Amenities
First is Internal amenities -
Earthquake Resistant Structure, Vitrified Tiles, Branded CP Fittings, SS Sink, Anti Skid Tiles, SS Glass Railing, Granite Kitchen Platform, Video Door Phone, Solar Water Heater, CCTV Survillence, DG Back-Up, etc
Agac Group Wagholi Amenities
Project has 20+ luxurious amenities with likes of -
Club House
Multipurpose Court
Open Gym
Feature Wall
Amphi-Seating
Senior Sit-Out & Many More
Agac Group Elements Wagholi Parking -
Project has two type of car parking facility -
1) Ground
2) Basement
Agac Sanskruti Oriana Possession -
Rera Possession - December 2027
Target Possession - May 2027
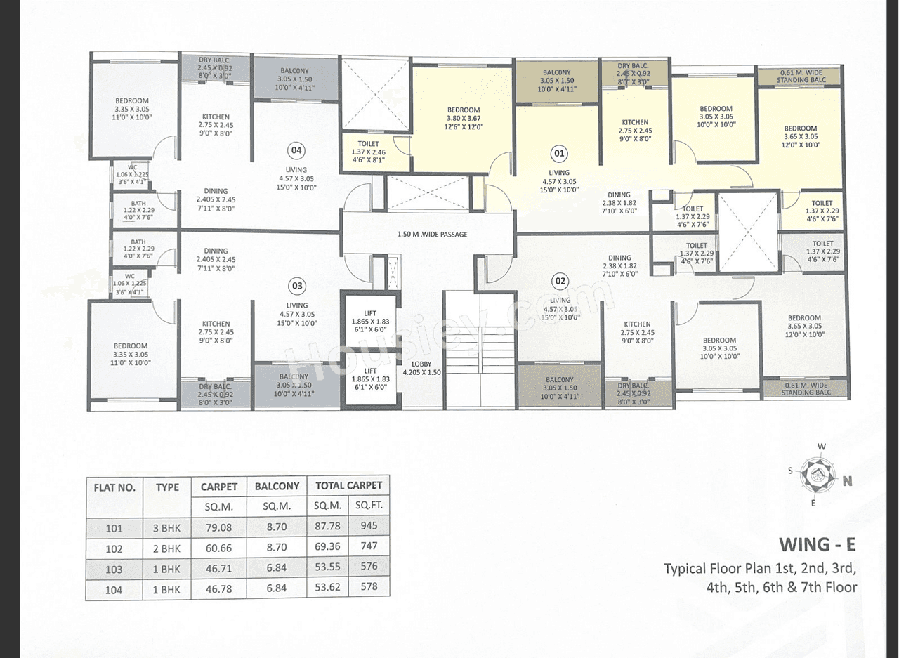
Carpet Area & Floor Plan
Agac Sanskruti Oriana Wagholi project has 1BHK, 2BHK, 3BHK premium residences with -
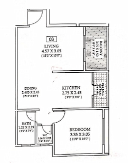
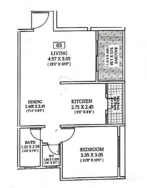
1BHK - 576 sqft
2BHK - 749 sqft
3BHK - 945 sqft
Agac Sanskruti Oriana floor plan
Tower floor plans will have 4 flats & 2 lift 1 staircases on each floor
Maintenance -
Agac Sanskruti Oriana Pune Project maintenance varies with the configuration and the carpet area which are as follows-
1BHK - Rs 2900 per month
2BHK - Rs 3800 per month
3BHK - Rs 4800 per month
Oriana Wagholi Prices & its details can be found in the price section & Agac Sanskruti Oriana Wagholi brochure can be downloaded from the link mentioned below. Project has been praised by the home buyers & Agac Group Wagholi review is 4 out of 5 from over all the clients who have visited the site.
Near Lohegaon Rd, Wagholi, Pune.

Pros
Cons
Video Door Phone
Vitrified Tiles
Jaguar Fittings
Granite Kitchen Platform
Stainless Steel Sink
Branded Fittings
D.G Backup
+3 More
Club House
Kids Play Area
Multi Purpose Court
Senior Citizen Area
Co Working Spaces
Outdoor Chess
Open Gym
Amphitheater
Meditation Zone
Seating Area
Entrance Gate
Cycling Track
Carrom
Table Tennis
Acupressure Pathway
+6 More



| Carpet Area | All Inc. Price (Inc. of Taxes & Charges) | Min Downpayment (Inc. Taxes) | Parking | Unit Plan |
|---|---|---|---|---|
576 sqftSold Out | ![]() | - | - | ![]() |


Is there any litigation against this proposed project:
NoAgac Sanskruti Oriana Commencement Certificate
Agac Sanskruti Oriana Legal Title Report
Agac Sanskruti Oriana Layout Plan Approval
Note: You can download more detailed documents by following this link
Agac Group

1 CityLocations
Pune


696 - 951 sqft
Balaji Hari Developers
Developer--1715427844237-img.webp&w=1280&q=75)


788 - 1034 sqft
Kolte Patil Developers
Developer
782 - 1028 sqft
Kolte Patil Developers
Developer
673 - 735 sqft
Gagan Goel Landmarks
Developer


458 - 650 sqft
Sanskruti Lifespaces
Developer
2BHK 5 Lac off 3BHk 7.5 Lac off
913 - 1334 sqft
Casagrand Builder
Developer
710 - 775 sqft
PVB Builders and Associates
Developer

411 - 645 sqft
Yashodha Associates
Developer
729 - 729 sqft
Karma Realty
Developer


1090 - 1209 sqft
Bhandari Associates
Developer
682 - 1035 sqft
Riswadkar Developers
Developer
Housiey Legal: Free Real Estate Legal Consultation
Get Expert Advice on RERA, Builder Refunds, Area Mismatch, Stuck Projects & More - at No Cost!