









Land Parcel
Towers
Floors
Config
Carpet Area
RERA NO.
Possession Status
Target Possession
RERA Possession
Litigation
VTP Mahalunge Project Overview
VTP Bel Air will be constructed on 5.5 Acres of land parcel consisting of 6 Towers of 2P+23 floors having 1BHK, 2BHK, 3BHK premium residences.
VTP Bel Air Pune location
Project is located Near Baner Mahalunge Road, Bluewaters Township, Mahalunge, Pune with -
Mumbai - Pune Highway - 3.5km
D-mart Baner - 4km
Infosys Circle Phase 1 Hinjawadi - 4.3 from the project
VTP Bel Air Mahalunge Amenities
First is Internal amenities -
All apartments are unfurnished with branded fittings and fixtures with
Home Automation, Digital Lock, Motion Sensor Lights, Video Door Phone, Alexa Enabled Homes
VTP Realty Mahalunge External Amenities
Project has 35+ luxurious amenities with likes of -
Multipurpose Courts
Horse Riding Club
Cricket, Badminton & Tennis Academy
Clubhouse
Swimming Pool
Amphitheater
Gymnasium
Yoga Zone and many more.
VTP Realty Bel Air Mahalunge Parking
Project has one type of car parking facility which are as follows -
1) Podium
VTP Belair possession -
Rera Possession - June 2025
Target Possession - June 2024.
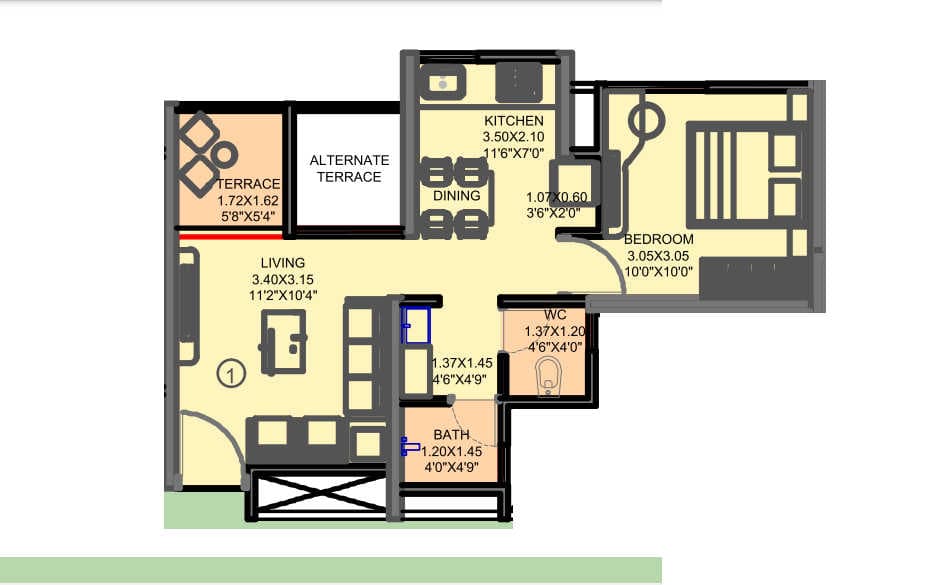
Carpet Area & Floor Plan
VTP Bel Air Mahalunge project has 1BHK, 2BHK, 3BHK premium residences with -
1BHK - 423 sqft
2BHK - (600 to 704) sqft
3BHK - (793 to 962) sqft
VTP Bel Air floor plan
Tower-A, B & F is the typical floor plan will have 8 flats, 4 lifts & 2 staircases and Tower-C & D is the typical floor plan will have 7 flats, 4 lifts & 2 staircases & Tower-E is the typical floor plan will have 9 flats, 2 lifts & 2 staircases on each floor
Maintenance -
VTP Bel Air Pune maintenance varies with the configuration and the carpet area which are as follows -
1BHK - Rs 2000 per month
2BHK - Rs (3500 - 5000) per month
3BHK - Rs (5000 - 70000 per month
Bel Air Mahalunge sample flat is ready to view at site.
Bel Air price & its details can be known at the price section & VTP Bel Air Mahalunge brochure can be downloaded from the link mentioned below. Project has been praised by the home buyers & VTP Realty Mahalunge reviews is 4 out of 5 from over all the clients who have visited the site.
Near Baner Mahalunge Road, Bluewaters Township, Mahalunge, Pune.


Pros
Cons
Home Automation
Digital Lock
Motion Sensor Lights
Video Door Phone
Intercom Facility
Swimming Pool
Club House
Kids Play Area
Jogging Track
Garden
Multi Purpose Court
Indoor Gym
Senior Citizen Area













| Carpet Area | All Inc. Price (Inc. of Taxes & Charges) | Min Downpayment (Inc. Taxes) | Parking | Unit Plan |
|---|---|---|---|---|
423 sqftSold Out | ![]() | - | - | ![]() |


Is there any litigation against this proposed project:
NoLegal Title Report VTP Bel Air
Layout Plan VTP Bel Air
Proforma Allotment Letter VTP Bel Air
Note: You can download more detailed documents by following this link
VTP Realty

1 CityLocations
Pune






664 - 1342 sqft
Saheel Properties
Developer






Housiey Legal: Free Real Estate Legal Consultation
Get Expert Advice on RERA, Builder Refunds, Area Mismatch, Stuck Projects & More - at No Cost!