Last updated: Mar 29, 2026



Land Parcel
Towers
Floors
Config
Carpet Area
RERA NO.
Possession Status
Target Possession
RERA Possession
Litigation
Velcon Chembur West Project Overview
Velcon Pride Project will be constructed on 0.22 acre of land parcel, 1 tower with G+2P+13 floors having 2 BHK, 2.5 BHK, 3 BHK premium residences.
Velcon Pride location
Project is located Nr Ghatkopar-Mahul Rd, Pestom Sagar Colony, Chembur West, Mumbai with -
Rajawadi Hosptal - 1.2km
Chembur Rly Stn - 1.4km
Dmart - 2.4km
Velcon Pride Chembur West Project Amenities
First is Internal amenities -
Vitrified tiles, Granite Kitchen, SS link & many more
Velcon Group Chembur West External Amenities
Project has amenities with likes of -
Fitness Centre
Children Play Area
Multipurpose Hall
Velcon Group Pride Chembur West Parking -
Project has one type of car parking facility -
1) Podium
Velcon Pride Possession -
Rera Possession - December 2029
Target Possession - March 2028
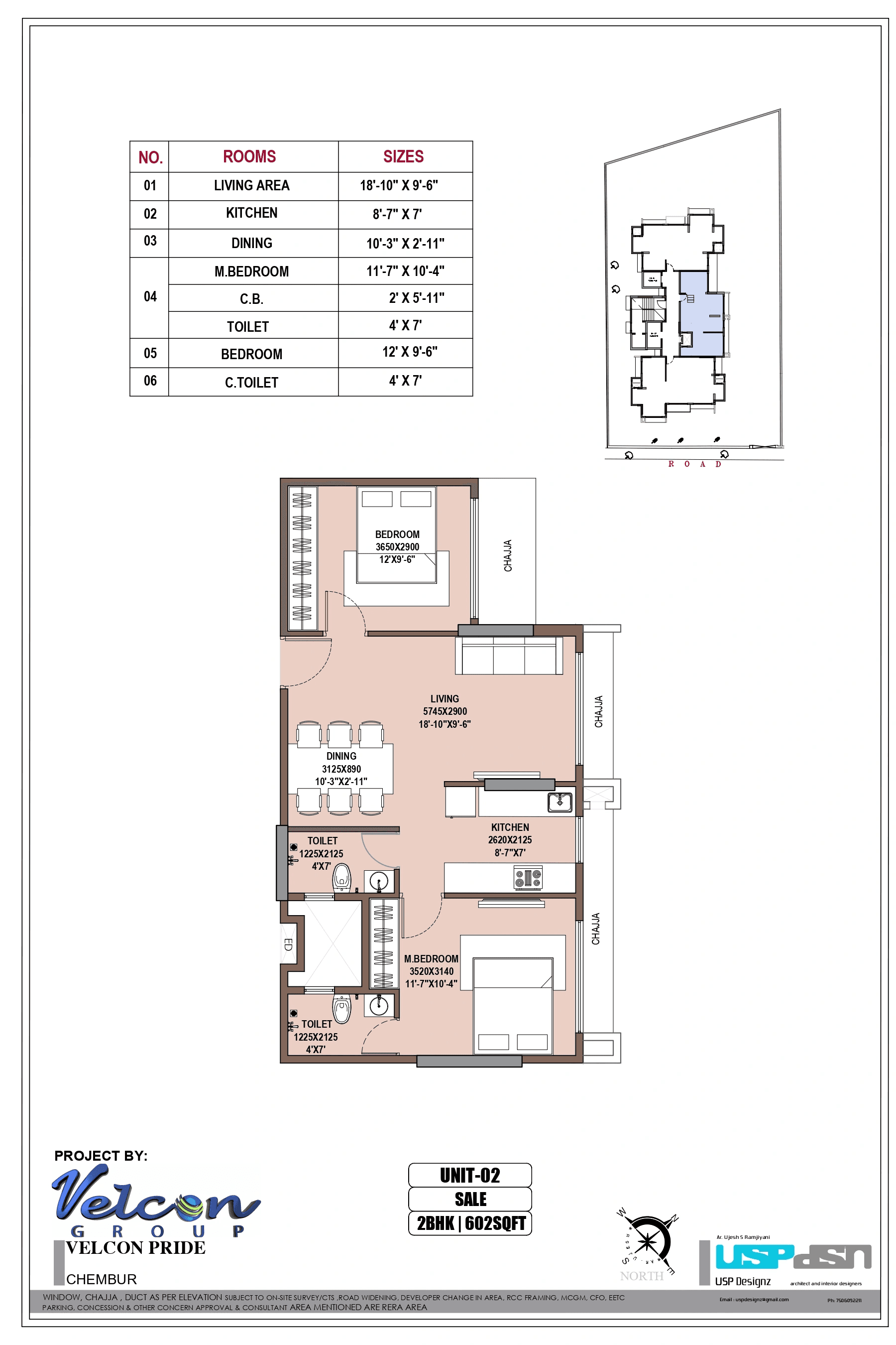
Carpet Area & Floor Plan
Velcon Pride project has 2BHK, 2.5BHK, 3BHK premium residences with -
2BHK - 602 sqft
2.5BHK - 730 sqft
3BHK - 801 sqft
Velcon Pride floor plan
Tower floor plan will have 3 flats 2 lifts & 1 staircase on each floor
Pride Mumbai Prices & its details can be found in the price section & Velcon Pride Chembur West brochure can be downloaded from the link mentioned below. Project has been praised by the home buyers & Velcon Group Chembur West review is 4 out of 5 from over all the clients who have visited the site.
Nr Ghatkopar-Mahul Rd, Pestom Sagar Colony, Chembur West, Mumbai
Pros
Cons
Vitrified Tiles
Granite Kitchen Platform
Stainless Steel Sink
Kids Play Area
Jogging Track
Senior Citizen Area
Fitness Deck
Multi purpose hall





| Carpet Area | All Inc. Price (Inc. of Taxes & Charges) | Min Downpayment (Inc. Taxes) | Parking | Unit Plan |
|---|---|---|---|---|
602 sqft | 1.99 Cr All In | 29.00 Lacs | 12 Lacs | ![]() |

Is there any litigation against this proposed project:
NoVelcon Pride Proforma Sale Agreement
Velcon Pride Proforma Allotment Letter
Velcon Pride Layout Plan
Note: You can download more detailed documents by following this link
Velcon Group

2 CitiesLocations
Mumbai City, Mumbai suburban



320 - 320 sqft
Vardhan Group
Developer









Housiey Legal: Free Real Estate Legal Consultation
Get Expert Advice on RERA, Builder Refunds, Area Mismatch, Stuck Projects & More - at No Cost!