Last updated: Apr 16, 2026






Land Parcel
Towers
Floors
Config
Carpet Area
RERA NO.
Possession Status
Target Possession
RERA Possession
Litigation
Varad Chembur West Project Overview
Varad Yog Project will be constructed on 0.36 acre of land parcel, 1 tower with G+16 floors having 1 BHK, 2 BHK, 3 BHK premium residences.
Varad Yog location
Project is located Nr Sahyadri Ground Chembur, Tilak Nagar, Chembur West, Mumbai with -
Santacruz - Chembur Link Road - 750m
Chembur Railway Stn - 1.3km
DMart Vidyavihar - 3.8km
Varad Yog Chembur West Project Amenities
First is Internal amenities -
Vitrified tiles, Granite Kitchen, SS link & many more
Varad Vaastu Enterprises Chembur West External Amenities
Project has amenities with likes of -
Gymnasium
Kids Play Area
Jogging Track
Garden & Many More
Varad Vaastu Enterprises Yog Chembur West Parking -
Project has one type of car parking facility -
1) Ground
Varad Yog Possession -
Rera Possession - December 2029
Target Possession - December 2028
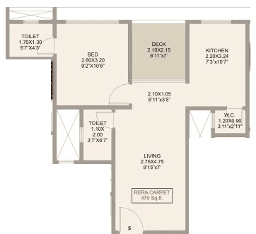
Carpet Area & Floor Plan
Varad Yog project has 1BHK, 2BHK, 3BHK premium residences with -
1BHK - (434 to 499) sqft
2BHK - (730 to 766) sqft
3BHK - 924 sqft
Varad Yog floor plan
Tower floor plan will have 7 flats 2 lifts & 1 staircase on each floor
Yog Mumbai Prices & its details can be found in the price section & Varad Yog Chembur West brochure can be downloaded from the link mentioned below. Project has been praised by the home buyers & Varad Vaastu Enterprises Chembur West review is 4 out of 5 from over all the clients who have visited the site.
Nr Sahyadri Ground Chembur, Tilak Nagar, Chembur West, Mumbai
Pros
Cons
Intercom Facility
Vitrified Tiles
Granite Kitchen Platform
Stainless Steel Sink
Kids Play Area
Jogging Track
Garden
Senior Citizen Area
Seating Area
Gazebo
Gymnasium



| Carpet Area | All Inc. Price (Inc. of Taxes & Charges) | Min Downpayment (Inc. Taxes) | Parking | Unit Plan |
|---|---|---|---|---|
434 sqft | 1.44 Cr All In | 21.00 Lacs | 10 Lacs | ![]() |
436 sqft | 1.45 Cr All In | 22.00 Lacs | 10 Lacs | ![]() |
470 sqft | 1.56 Cr All In | 23.00 Lacs | 10 Lacs | ![]() |
499 sqft | 1.66 Cr All In | 24.00 Lacs | 10 Lacs | ![]() |

Is there any litigation against this proposed project:
NoVarad Yog Proforma Sale Agreement
Varad Yog Proforma Allotment Letter
Varad Yog Layout Plan
Note: You can download more detailed documents by following this link
Varad Vaastu

2 CitiesLocations
Mumbai City, Mumbai suburban



320 - 320 sqft
Vardhan Group
Developer








Housiey Legal: Free Real Estate Legal Consultation
Get Expert Advice on RERA, Builder Refunds, Area Mismatch, Stuck Projects & More - at No Cost!