


















Land Parcel
Towers
Floors
Config
Carpet Area
RERA NO.
Possession Status
Target Possession
RERA Possession
Litigation
Triaa Lohegaon Project Overview
Triaa Nesterra will be constructed on 14 acre of land parcel, 19 towers with B+G+11 floors having, 2 BHK, 2.5BHK, 3 BHK, 4 BHK premium residences.
Triaa Nesterra location
Project is Located Near Porwal Road, Nimbalkar Nagar, Lohegaon, Pune. with -
Zudio - 550m
Lohegaon Bus Stop - 3km
Pune International Airport - 4.4km
Triaa Lohegaon Road Project Amenities
First is Internal amenities -
Granite platform, S.S. Sink, Modular kitchen, Power backup, Digital lock, Video door phone, Branded CP Fittings, Vitrified Tiles, Solar Water Heater, Fire Fighting System, CCTV Survillence, etc
Triaa Housing Lohegaon Amenities
Project has 30+ luxurious amenities with likes of -
AC Gymnasium
Children's Play Area
Open Air Amphitheatre
Yoga And Meditation Zone
Gazebo & Many More
Triaa Housing Elements Lohegaon Parking -
Project has two type of car parking facilities -
1) Ground
2) Basement
Triaa Nesterra Possession -
Rera Possession - December 2030
Target Possession - December 2028
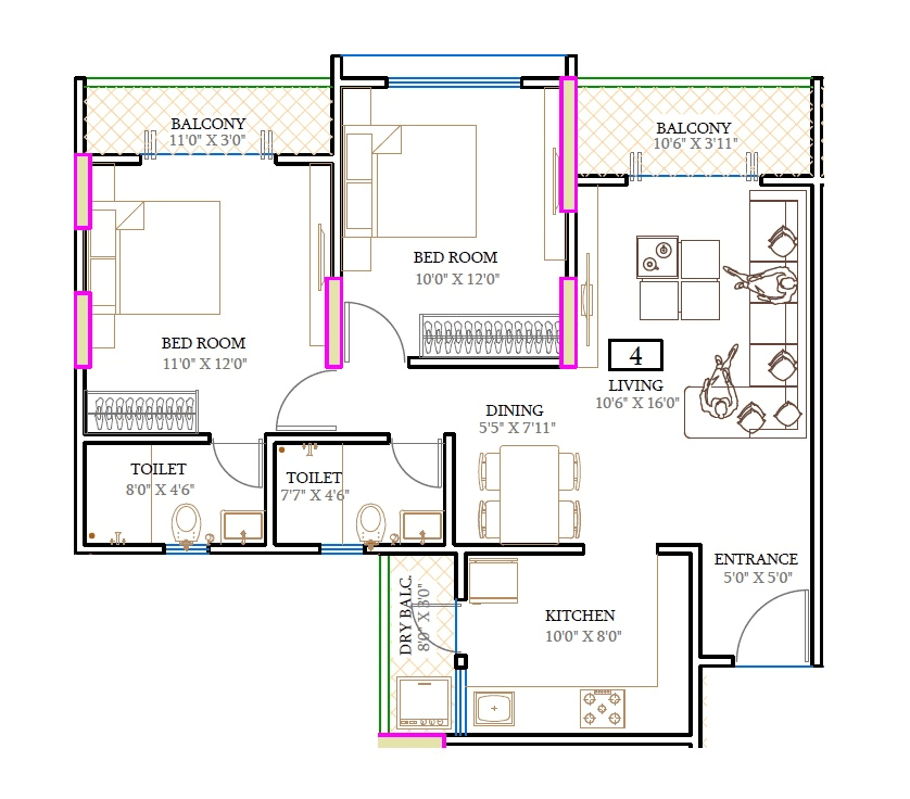
Carpet Area & Floor Plan
Triaa Nesterra Lohegaon project has 2BHK, 2.5BHK, 3BHK, 4BHK premium residences with -
2BHK - (798 to 846) sqft
2.5BHK - 925 sqft
3BHK - (1033 to 1169) sqft
4BHK - 1390 sqft
Triaa Nesterra floor plan
Tower floor plans will have 6 flats & 4 lift 2 staircases on each floor
Maintenance -
Triaa Nesterra Pune Project maintenance varies with the configuration and the carpet area which are as follows-
2BHK - Rs (4000 - 4100) per month
2.5BHK - Rs 4700 per month
3BHK - Rs (5200 - 5500) per month
4BHK - Rs (6500 - 7000) per month
Nesterra Lohegaon Prices & its details can be found in the price section & Triaa Nesterra Lohegaon brochure can be downloaded from the link mentioned below. Project has been praised by the home buyers & Triaa Housing Lohegaon review is 4 out of 5 from over all the clients who have visited the site.
Near Porwal Road, Nimbalkar Nagar, Lohegaon, Pune

Pros
Cons
Digital Lock
Video Door Phone
Vitrified Tiles
Jaguar Fittings
Granite Kitchen Platform
Stainless Steel Sink
D.G Backup
+6 More
Swimming Pool
Kids Play Area
Jogging Track
Garden
Indoor Gym
Senior Citizen Area
Kids Pool
Tennis Court
Skating Rink
Multi Purpose Lawn
Outdoor Chess
Library
Open Gym
Basketball Court
Amphitheater
+24 More




| Carpet Area | All Inc. Price (Inc. of Taxes & Charges) | Min Downpayment (Inc. Taxes) | Parking | Unit Plan |
|---|---|---|---|---|
798 sqft | 84.22 Lacs All In | 13.00 Lacs | 1 | ![]() |
813 sqft | 85.75 Lacs All In | 13.00 Lacs | 1 | ![]() |
846 sqft | 89.17 Lacs All In | 13.00 Lacs | 1 | ![]() |
820 sqft | 86.43 Lacs All In | 13.00 Lacs | 1 | ![]() |

Is there any litigation against this proposed project:
NoTriaa Nesterra Commencement Certificate
Triaa Nesterra Legal Title Report
Triaa Nesterra Building Plan
Note: You can download more detailed documents by following this link
Triaa Housing

1 CityLocations
Pune


688 - 937 sqft
Sparkle Realty
Developer






761 - 1045 sqft
Choice Group
Developer
698 - 1506 sqft
Dalecon Realtors
Developer




Housiey Legal: Free Real Estate Legal Consultation
Get Expert Advice on RERA, Builder Refunds, Area Mismatch, Stuck Projects & More - at No Cost!