Last updated: Jul 29, 2025














Land Parcel
Towers
Floors
Config
Carpet Area
RERA NO.
Possession Status
Target Possession
RERA Possession
Litigation
Sukhwani Pimple Saudagar Project Overview
Sukhwani Minerva Project will be constructed on 1.5 acres of land parcel, 3 towers with 2B+G+18 floors having 3BHK, 4BHK premium residences .
Sukhwani Minerva Location
Project is located Near Kunal Icon Road, Sai Nagar Park, Pimple Saudagar, Pune with -
Kokane Chowk - 1.8km
Aundh - Ravet BRTS Rd - 2.6km
Croma - 3.7km
Sukhwani Minerva Pimple Saudagar Project Amenities
First is Internal amenities -
Vitrified tiles, Anti - Skid Ceramic, CP Fittings Jaquar, Exhaust fan, Power backup, CP Sanitary Fittings, Granite Kitchen Platform, SS Sink, powder coated aluminium windows & many more
Sukhwani Ramchandani LLP Pimple Saudagar External Amenities
Project has 30+ luxurious amenities with likes of -
Multipurpose Court
Swimming Pool
Kids Pool
Gymnasium
Floor Games Area
Barbeque Seating Area & many more
Sukhwani Ramchandani LLP Minerva Pimple Saudagar Parking -
Project has two types of car parking facilities -
1) Basement
2) Ground
Sukhwani Minerva Possession -
Rera Possession - March 2028
Target Possession - December 2027
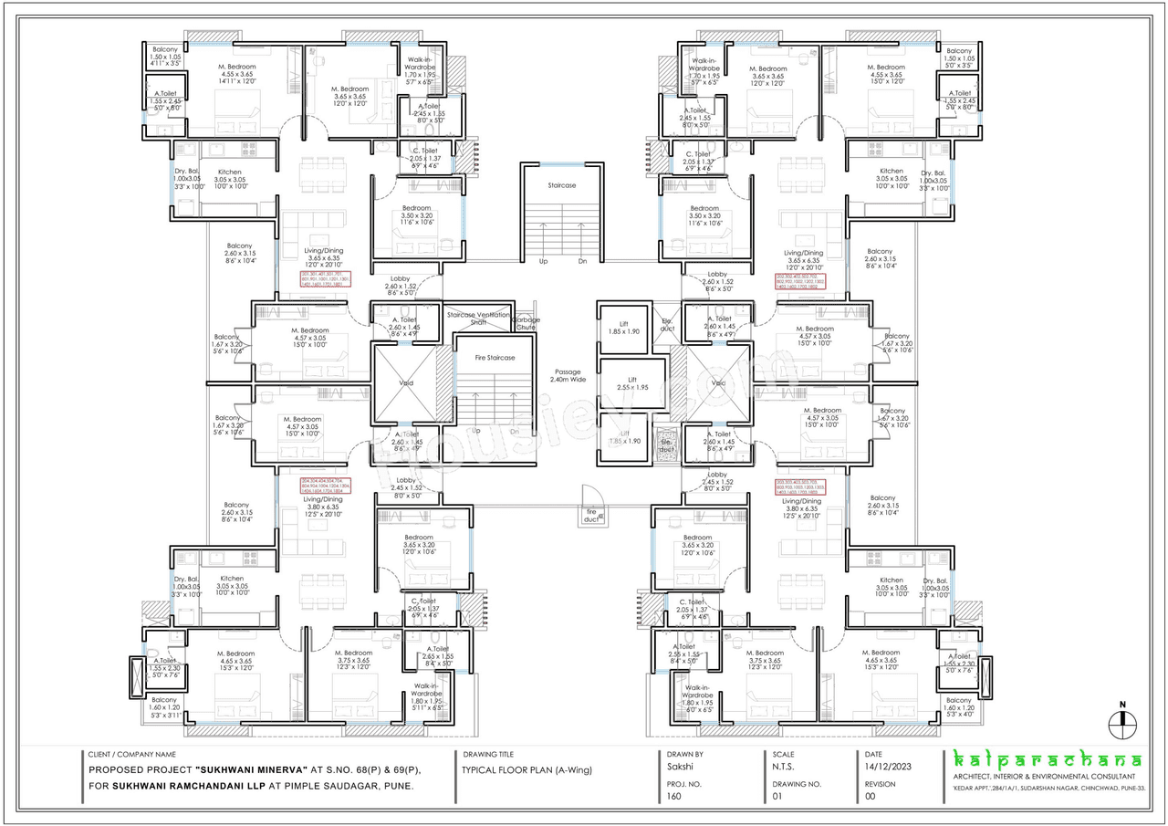
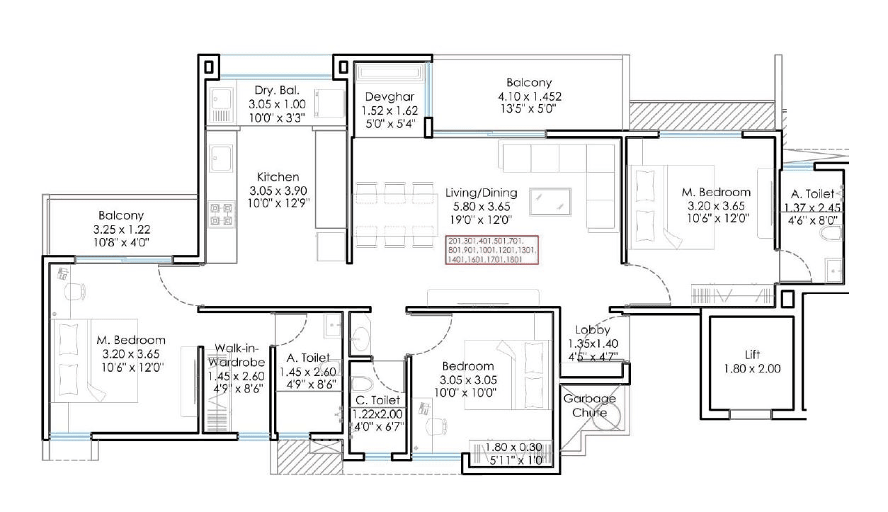
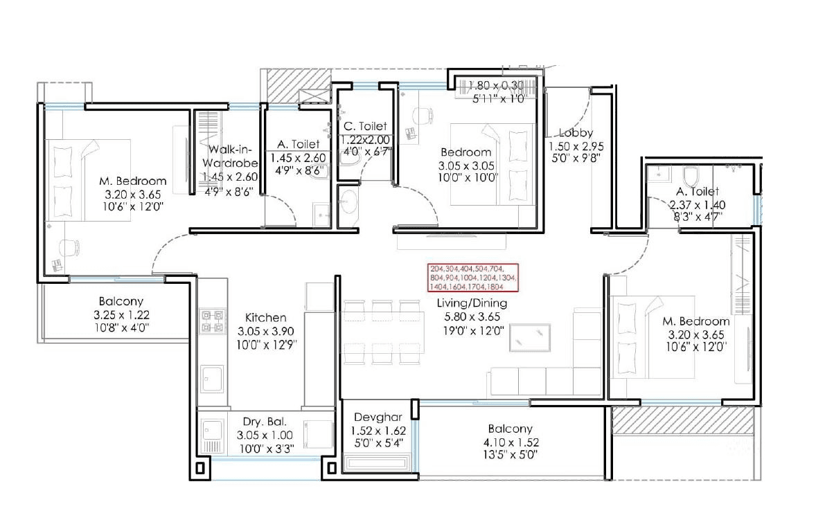
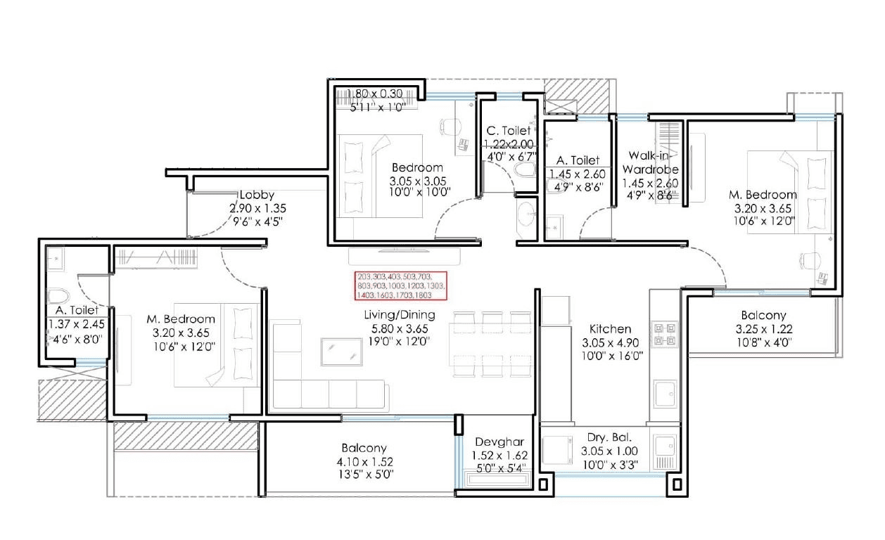
Carpet Area & Floor Plan
Sukhwani Minerva Pimple Saudagar project has 3BHK, 4BHK premium residences with -
3BHK - (963 to 1147)sqft
4BHK - (1313 to 1474)sqft
Sukhwani Minerva floor plan
Tower floor plan will have 4 flats 3 lifts & 2 staircases on each floor
Maintenance -
Sukhwani Minerva Pune Project maintenance varies with the configuration and the carpet area which are as follows-
3BHK - Rs (3800 - 4600) per month
4BHK - Rs (5200 - 5900) per month
Minerva Pimple Saudagar Prices & its details can be found in the price section & Sukhwani Minerva Pimple Saudagar brochure can be downloaded from the link mentioned below. Project has been praised by the home buyers & Sukhwani Ramchandani LLP Pimple Saudagar review is 4 out of 5 from over all the clients who have visited the site
Near Kunal Icon Road, Sai Nagar Park, Pimple Saudagar, Pune
Pros
1.The towers are strategically placed so that no apartments face each other. This ensures maximum privacy and lifetime open views for every home.
2.This project offers large, spacious balconies that are rare in today’s apartment designs. Most new developments compromise on balcony space. If you love open-air living, this project is perfect for you.
Cons
1.The project has limited open space, with 3 towers being built on a compact 1.5-acre plot. This results in minimal common areas and restricted space for outdoor movement. If open, breathable surroundings are important to you, this may not be the best fit.
Vitrified Tiles
Granite Kitchen Platform
Stainless Steel Sink
Swimming Pool
Club House
Kids Play Area
Garden
Box Cricket
Amphitheater
Meditation Zone
Seating Area
party lawn
Yoga Deck
Gymnasium
Multi purpose hall




| Carpet Area | All Inc. Price (Inc. of Taxes & Charges) | Min Downpayment (Inc. Taxes) | Parking | Unit Plan |
|---|---|---|---|---|
963 sqftSold Out | ![]() | - | - | ![]() |
1109 sqft | 1.92 Cr All In | 28.00 Lacs | 1 | ![]() |
1116 sqftSold Out | ![]() | - | - | ![]() |
1117 sqftSold Out | ![]() | - | - | ![]() |
1134 sqft | 1.96 Cr All In | 29.00 Lacs | 1 | ![]() |
1139 sqft | 1.97 Cr All In | 29.00 Lacs | 1 | ![]() |
1147 sqftSold Out | ![]() | - | - | ![]() |


Is there any litigation against this proposed project:
NoCommencement Certificate Sukhwani Minerva
Legal Title Report Sukhwani Minerva
Layout Plan Sukhwani Minerva
Note: You can download more detailed documents by following this link
Sukhwani Ramchandani Group

1 CityLocations
Pune



749 - 1186 sqft
Garve Group
Developer



--1703059291444-img.webp&w=1280&q=75)

1196 - 1196 sqft
Futuristic Abodes
Developer


814 - 1088 sqft
RKL Lunkad Housing Corp
Developer


Housiey Legal: Free Real Estate Legal Consultation
Get Expert Advice on RERA, Builder Refunds, Area Mismatch, Stuck Projects & More - at No Cost!