













Land Parcel
Towers
Floors
Config
Carpet Area
RERA NO.
Possession Status
Target Possession
RERA Possession
Litigation
Siddhashila Punawale Project Overview
Siddhashila Eevva will be constructed on 3.5 acres of land parcels, 3 towers with G+24 floors having 2 BHK & 3 BHK premium residences .
Siddhashila Eevva location
Project is located Near Kate Wasti Road, Tajane Wasti, Punawale, Pune with-
Zudio - 1.8km
Mumbai-Bangalore Highway - 2.1km
Dmart - 4.1km
Siddhashila Eevva Punawale Project Amenities
First is Internal amenities -
Video Door Phone, Vitrified tiles, Granite Kitchen, Powder coated aluminium Sliding, MS safety grill,CCTV & Many more
Siddhashila Developers Punawale External Amenities
Project has 30+ luxurious amenities with likes of -
Multipurpose Hall
Gymnasium
Multipurpose Lawn
Party Counter
Kids Play Area & Many More
Siddhashila Eevva Punawale Parking -
Project has one types of car parking facilities -
1)Ground
Siddhashila Eevva Possession -
Rera Possession - December 2030
Target Possession - December 2029
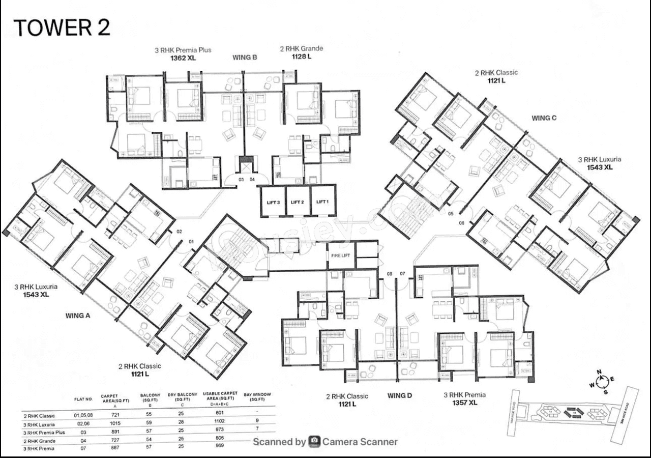
Carpet Area & Floor Plan
Siddhashila Eevva project has 2BHK, 3BHK premium residences with -
2BHK - (801 to 806) sqft
3BHK - (965 to 1102) sqft
Siddhashila Eevva floor plan
Tower floor plan will have 8 flats 4 lifts & 2 staircases on each floor
Maintenance -
Siddhashila Eevva Pune Project maintenance varies with the configuration and the carpet area which are as follows-
2BHK -Rs (3500 - 4000) per month
3BHK- Rs (4000 - 4500) per month
Siddhashila Eevva Prices & its details can be found in the price section & Siddhashila Eevva Punawale brochure can be downloaded from the link mentioned below. Project has been praised by the home buyers & Siddhashila Developers Punawale review is 4 out of 5 from over all the clients who have visited the site.
Near Kate Wasti Road, Tajane Wasti, Punawale, Pune
Pros
Cons
Video Door Phone
Vitrified Tiles
Granite Kitchen Platform
Solar Water Heater
Swimming Pool
Kids Play Area
Jogging Track
Multi Purpose Court
Kids Pool
Co Working Spaces
Lap Pool
Private Spa
Multi Purpose Lawn
Amphitheater
Yoga Zone
Meditation Zone
Toddlers Play Area
Barbeque Deck
Business Center
+6 More


| Carpet Area | All Inc. Price (Inc. of Taxes & Charges) | Min Downpayment (Inc. Taxes) | Parking | Unit Plan |
|---|---|---|---|---|
801 sqft | 83.00 Lacs All In | 12.00 Lacs | 1 | ![]() |
806 sqft | 86.00 Lacs All In | 13.00 Lacs | 1 | ![]() |

Is there any litigation against this proposed project:
NoCommencement Certificate Siddhashila Eevva
Legal Title Report Siddhashila Eevva
Layout Plan Siddhashila Eevva
Note: You can download more detailed documents by following this link
Siddhashila Group

1 CityLocations
Pune


709 - 1172 sqft
Pharande Spaces
Developer


708 - 918 sqft
Krisala Developers
Developer
685 - 987 sqft
Life Craft Realty
Developer



--1702381504934-img.webp&w=1280&q=75)
836 - 1176 sqft
Kolte Patil Developers
Developer
753 - 1047 sqft
Silveroak Buildcon
Developer
685 - 1135 sqft
GD Square Spaces
Developer



723 - 1276 sqft
Kohinoor Group
Developer

740 - 1051 sqft
Gurudatta Developers
Developer
752 - 752 sqft
Pharande Spaces
Developer
Housiey Legal: Free Real Estate Legal Consultation
Get Expert Advice on RERA, Builder Refunds, Area Mismatch, Stuck Projects & More - at No Cost!