




Land Parcel
Towers
Floors
Config
Carpet Area
RERA NO.
Possession Status
Target Possession
RERA Possession
Litigation
Shriram Charholi Project Overview
Shriram Sky Park will be constructed on 2.5 acres of land parcel, 2 towers with 2B+G+8 floors having 1 BHK, 2 BHK, 2.5 BHK premium residences.
Shriram Sky Park location
Project is located Shriram Sky Park Near DY Patil College, Charholi, Pune, with -
DY Patil University - 1.4km
Zudio - 1.7km
Lohegaon bus Stop - 3.9km
Shriram Sky Park Charholi Project Amenities
First is Internal amenities -
Vitrified Tiles, Granite Kitchen, SS Sink, Fire Fighting System, Powder coated aluminum sliding Window, Earthquake resistant, Anti-skid tiles & Many More
Shriram Group Charholi External Amenities
Project has 20+ amenities with likes of -
Kid's Play Area
Club House
Senior Sit Out Area
Gymnasium
Jogging Track and Many More
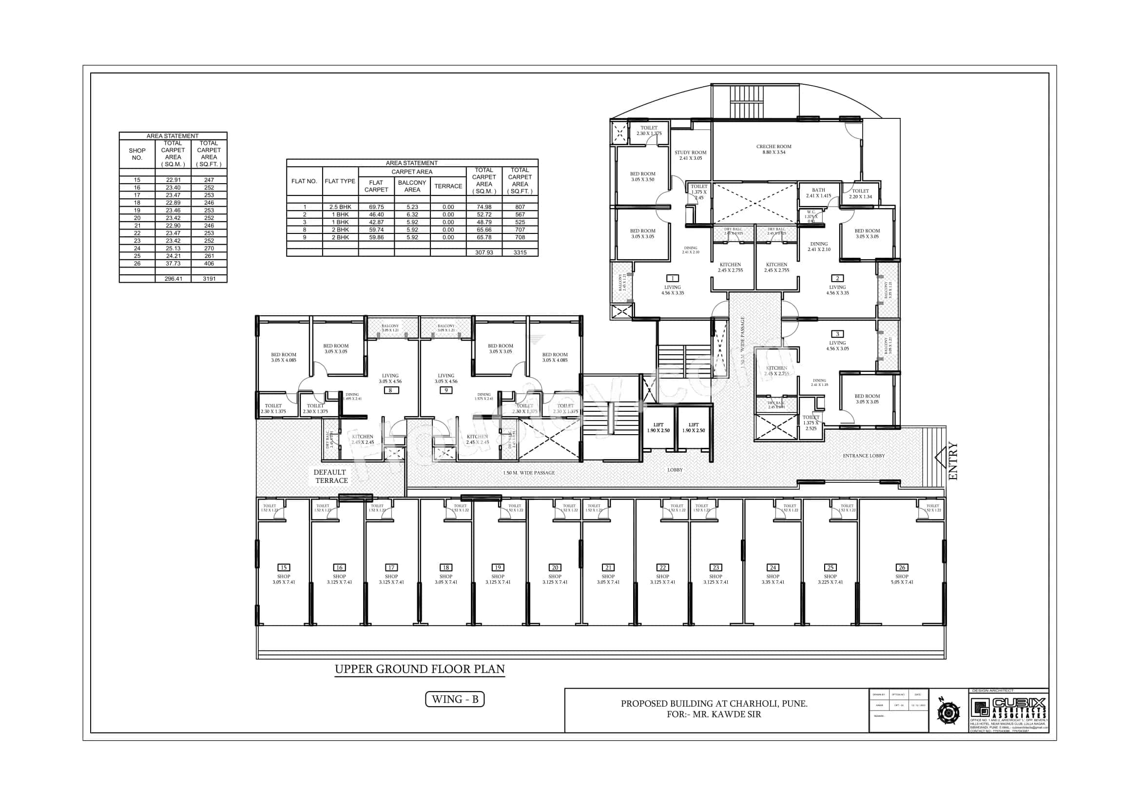
Shriram Group Sky Park Charholi Parking -
Project has two type of car parking facility -
1) Basement
2) Ground
Shriram Sky Park Possession -
Rera Possession - June 2027
Target Possession - December 2025
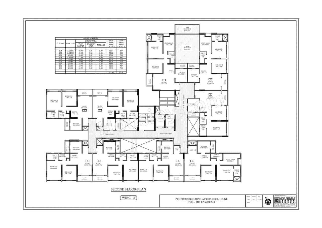
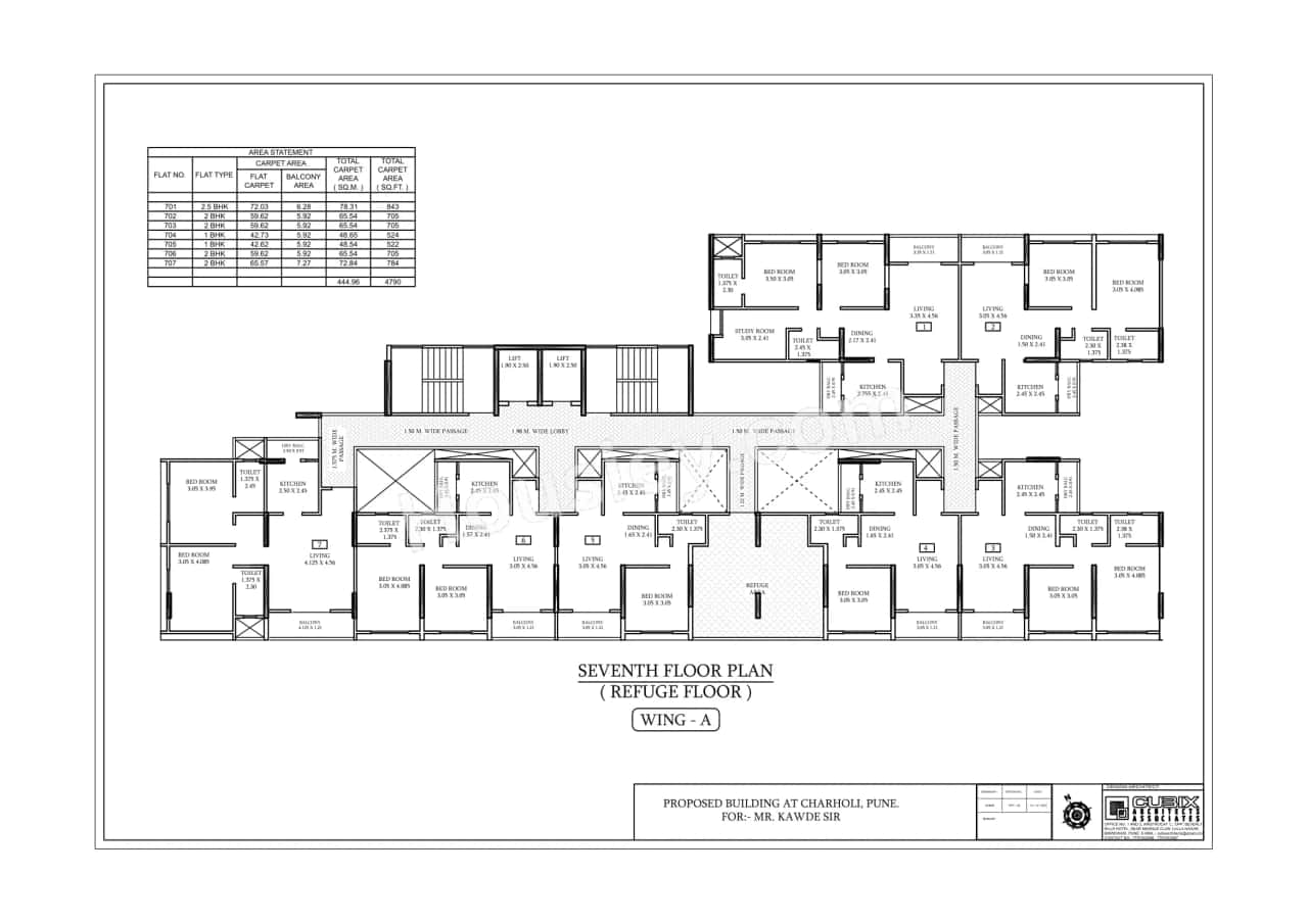
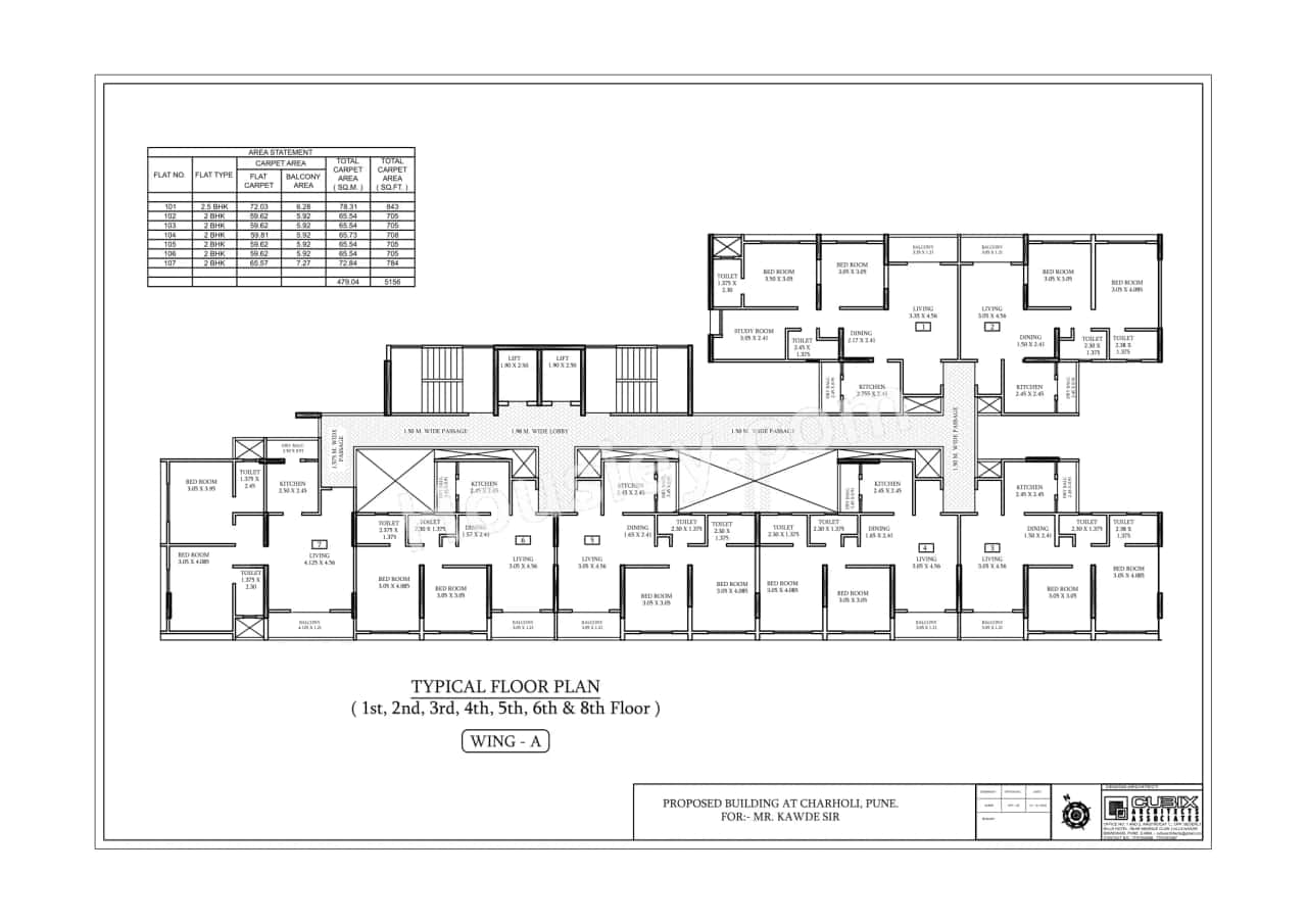
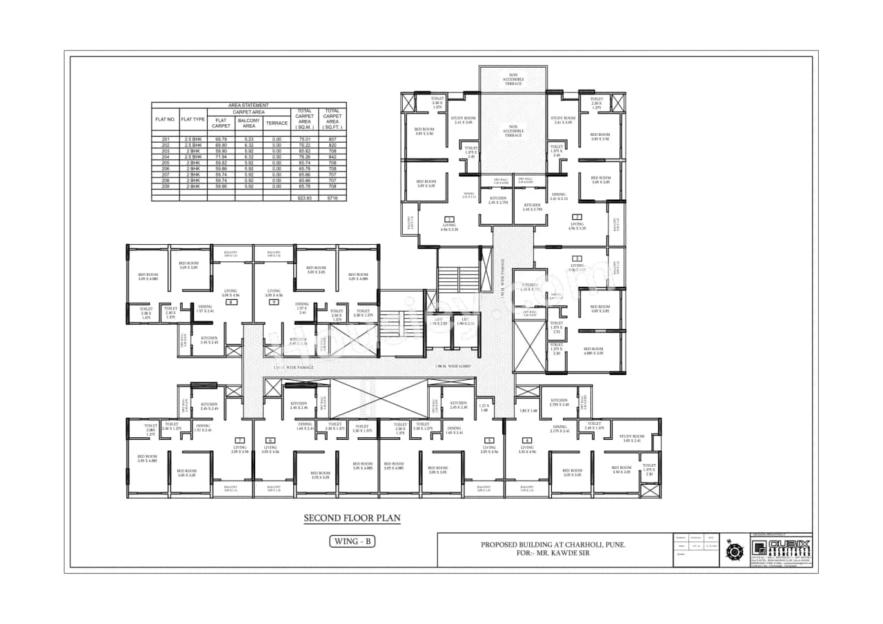
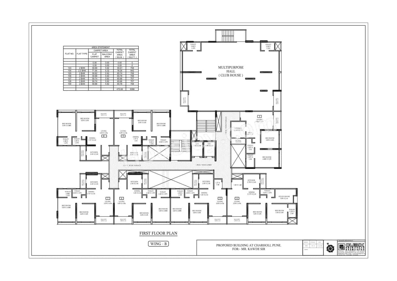
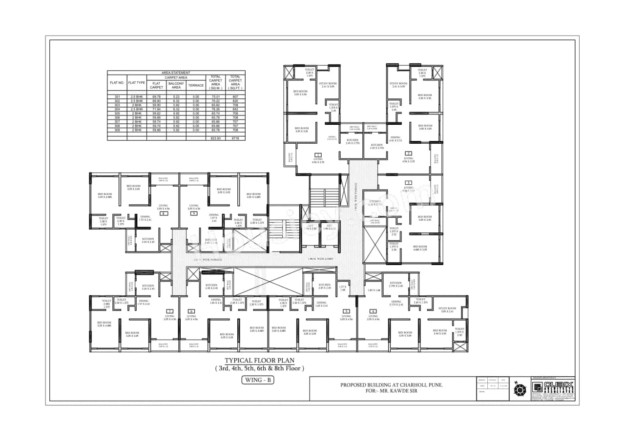
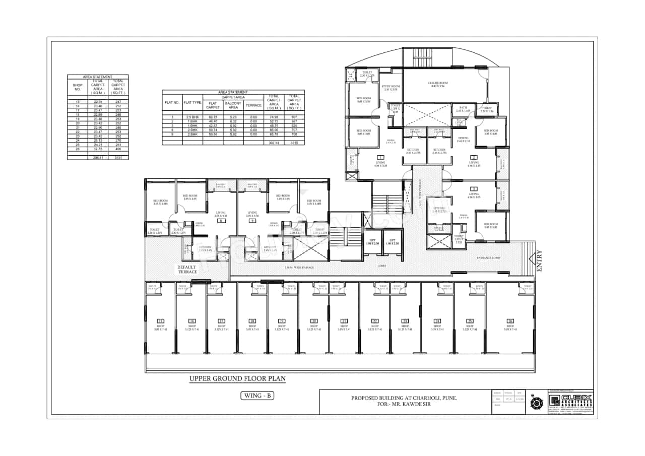
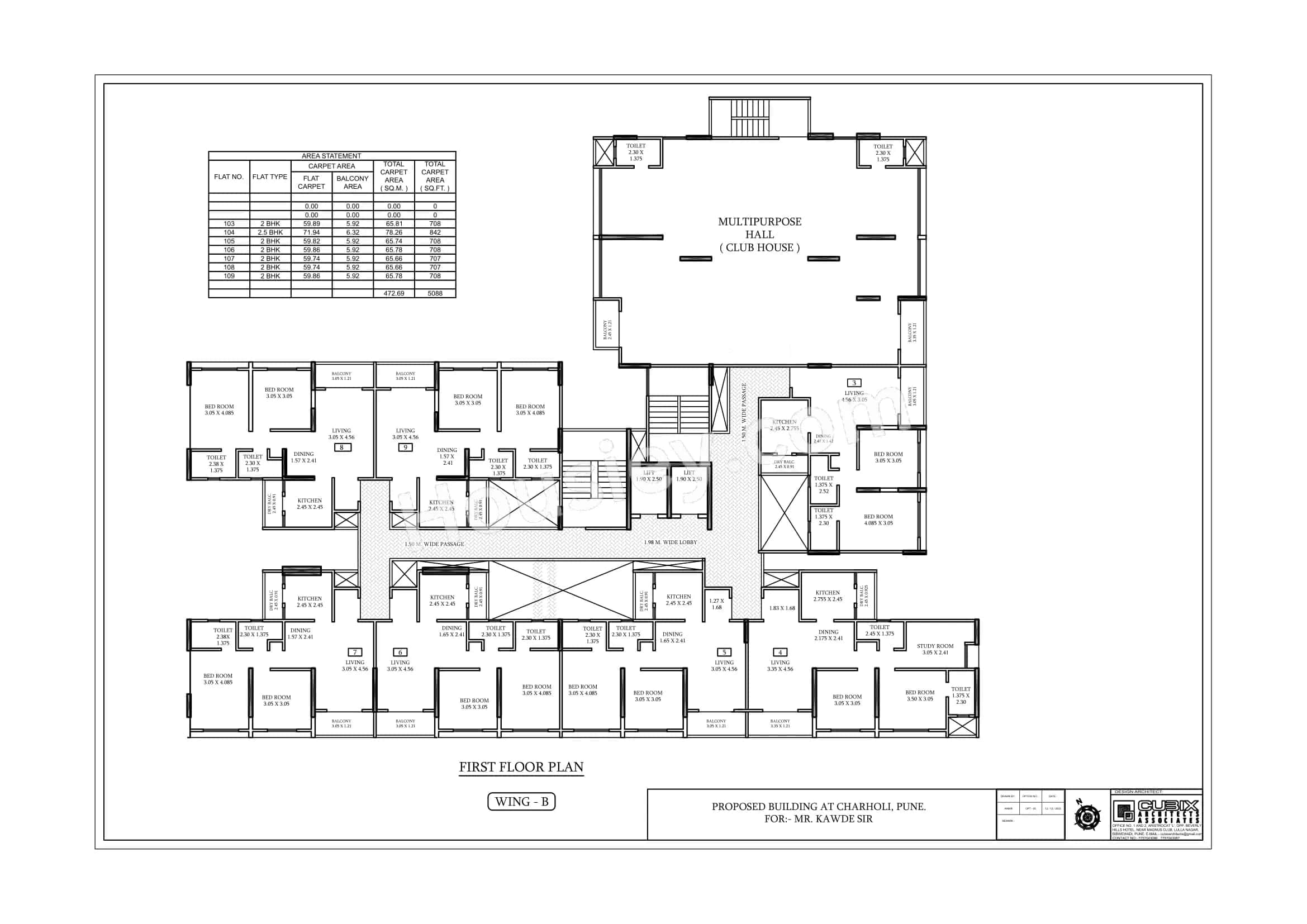
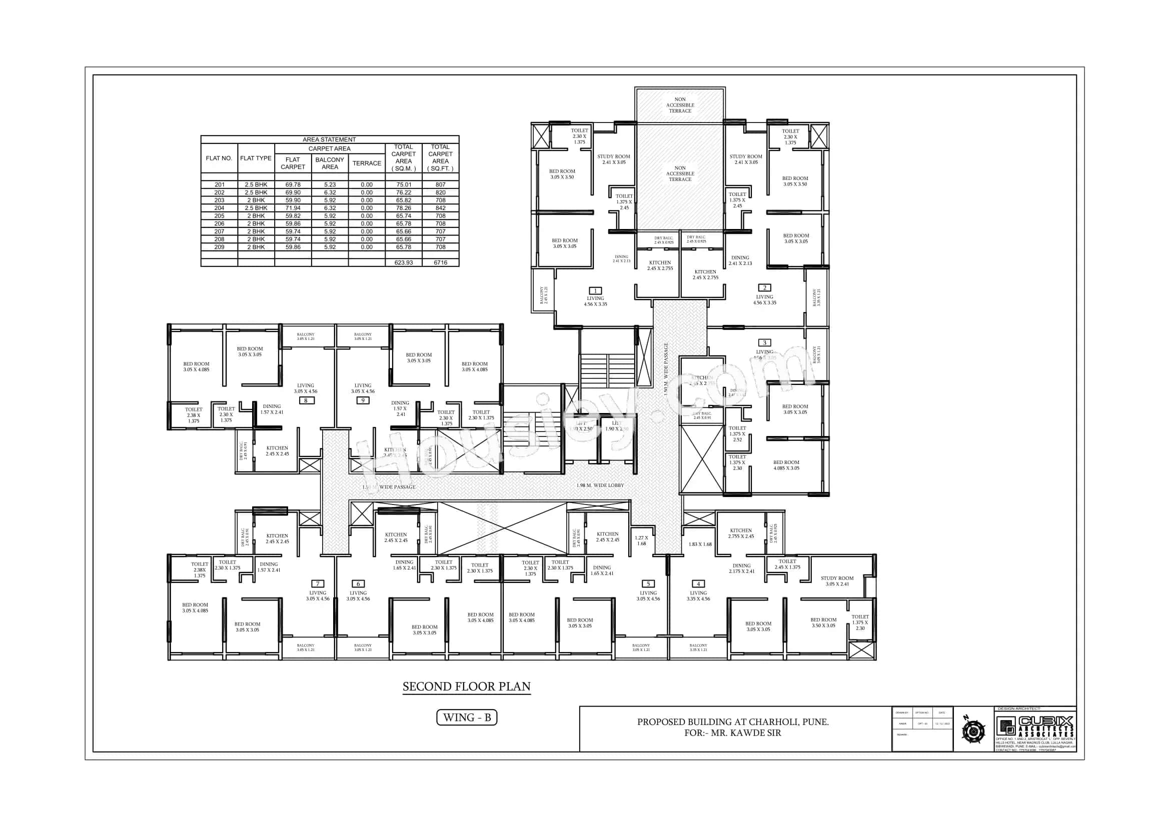
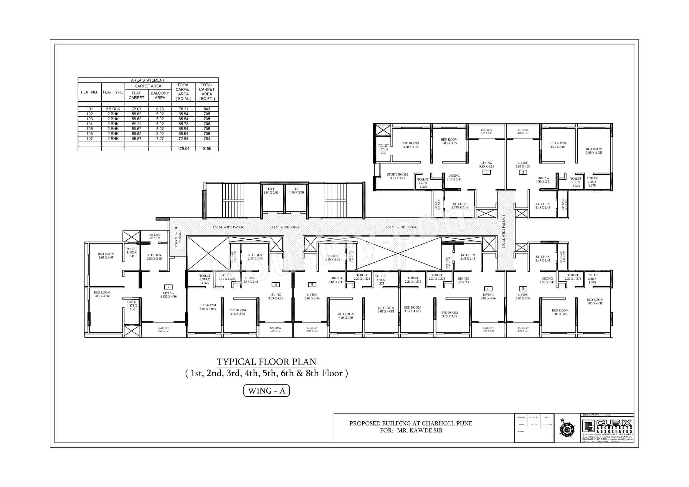
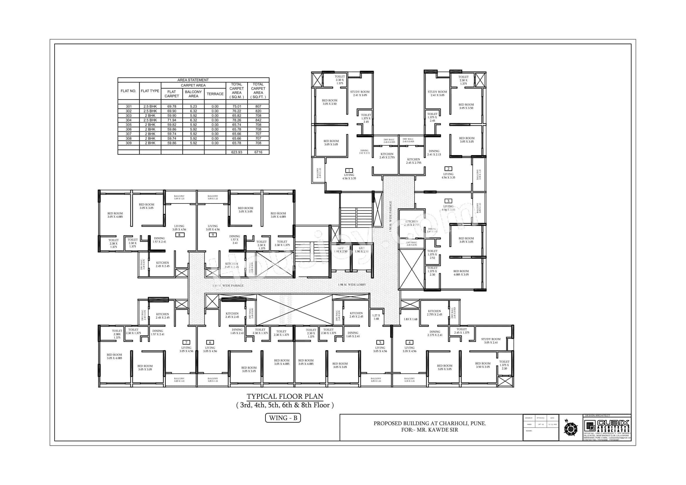
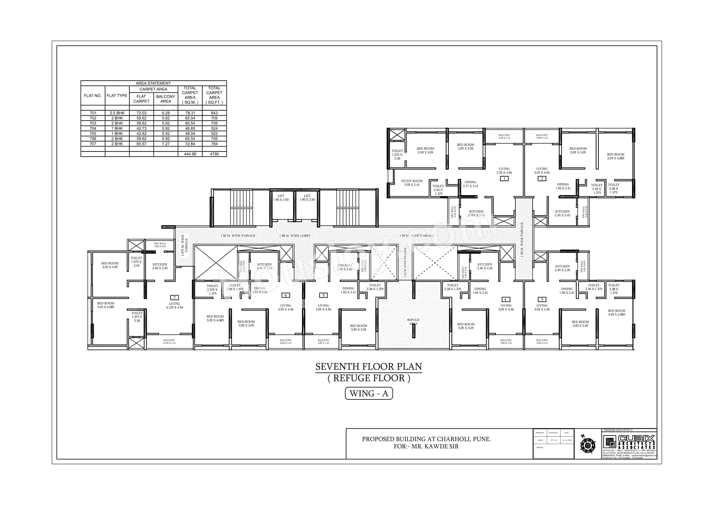
Carpet Area & Floor Plan
Shriram Sky Park Charholi project has 1BHK, 2BHK, 2.5BHK premium residences with -
1BHK - (522 to 567) sqft
2BHK - (696 to 784) sqft
2.5BHK - (807 to 843) sqft
Shriram Sky Park floor plan
Tower floor plan will have 9 flats 2 lifts & 2 staircases on each floor
Maintenance -
Shriram Sky Park Pune Project maintenance varies with the configuration and the carpet area which are as follows-
1BHK - Rs (2600 - 3000) per month
2BHK - Rs (3400 - 4000) per month
2.5BHK - Rs (4200 - 4300) per month
Sky Park Prices & its details can be found in the price section & Shriram Sky Park Charholi brochure can be downloaded from the link mentioned below. Project has been praised by the home buyers & Shriram Group Charholi review is 4 out of 5 from over all the clients who have visited the site.
Near DY Patil College, Charholi, Pune

Pros
Cons
Vitrified Tiles
Granite Kitchen Platform
Stainless Steel Sink
Exhaust Fan
Fire Fighting
Club House
Kids Play Area
Jogging Track
Senior Citizen Area
Gymnasium









| Carpet Area | All Inc. Price (Inc. of Taxes & Charges) | Min Downpayment (Inc. Taxes) | Parking | Unit Plan |
|---|---|---|---|---|
522 sqftSold Out | ![]() | - | - | ![]() |
524 sqftSold Out | ![]() | - | - | ![]() |
525 sqftSold Out | ![]() | - | - | ![]() |
567 sqftSold Out | ![]() | - | - | ![]() |


Is there any litigation against this proposed project:
NoShriram Sky Park Commencement Certificate
Shriram Sky Park Legal Title Report
Shriram Sky Park Building Plan
Note: You can download more detailed documents by following this link
Shriram Group

1 CityLocations
Pune


891 - 1294 sqft
Swastik Developers
Developer

651 - 847 sqft
Kalpdeep Group
Developer
683 - 925 sqft
Lotus Group the City
Developer

683 - 897 sqft
Mangalam Landmarks
Developer

1566 - 1566 sqft
Kalpdeep Group
Developer



482 - 742 sqft
RKL Lunkad Housing Corp
Developer

748 - 1131 sqft
Shubh Ganesh Properties
Developer
677 - 931 sqft
Pratham Yash Builders
Developer
530 - 745 sqft
Kalpdeep Group
Developer
465 - 664 sqft
Tirupati Group
Developer
507 - 1052 sqft
RKL Lunkad Housing Corp
Developer
Housiey Legal: Free Real Estate Legal Consultation
Get Expert Advice on RERA, Builder Refunds, Area Mismatch, Stuck Projects & More - at No Cost!