










Land Parcel
Towers
Floors
Config
Carpet Area
RERA NO.
Possession Status
Target Possession
RERA Possession
Litigation
SB Patil Charholi Project Overview
SB Bliss County Project will be constructed on 3.5 acres of land parcel, 4 towers with 2B+G+8 floors having 1 BHK, 2 BHK premium residences .
SB Bliss County location
Project is located Near Dabhadevasti, Charholi, Pune, with -
Reliance SMART - 1.5km
Dehu Alandi road-2.3km
MIT Alandi Campus - 2.9km
SB Bliss County Project Amenities
First is Internal amenities -
Earthquake Resistant Structure, Video Door Phone, Branded CP Fitting, Anti-Skid Tiles, SS Sink, Aluminium Sliding With Mosquito Mesh, CCTV Surveillance, Solar Water System, etc
SB Patil Group Charholi External Amenities
Project has 10+ Amenities with likes of -
Children's play area
Senior citizen sitting area
Gymnasium
Indoor Games
Jogging Track and many more
SB Patil Group Bliss County Charholi Parking -
Project has two type of car parking facility -
1) Basement
2) Ground
SB Bliss County Possession -
Rera Possession - December 2026
Target Possession - June 2026
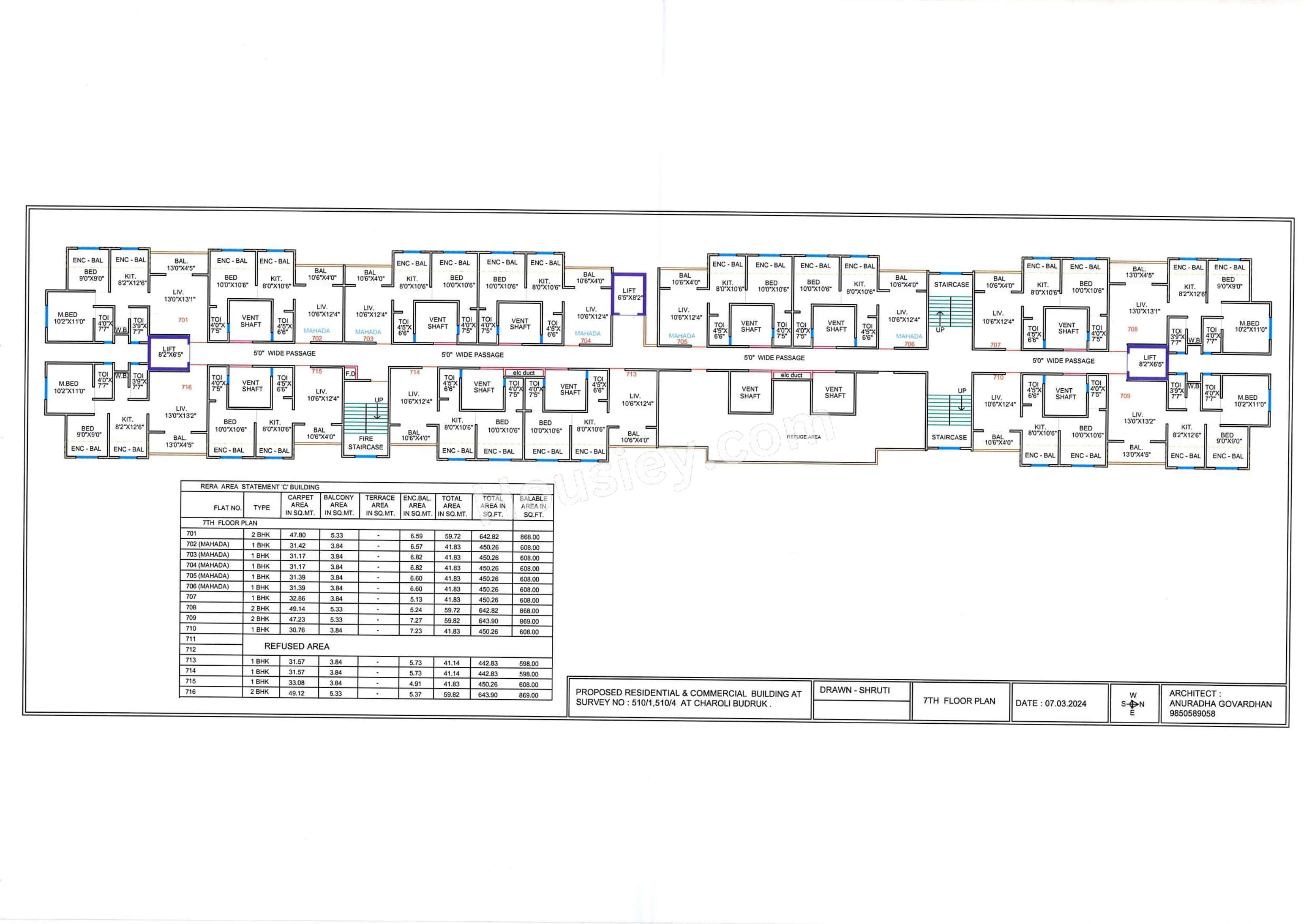
SB Bliss County Tower floor plan
Tower floor plan will have 8 flats, 2 lifts & 2 staircases on each floor
Carpet Area & Floor Plan
SB Bliss County Charholi project has 1BHK, 2BHK residences with -
1BHK - (443 to 450) sqft
2BHK - 643 sqft
Maintenance -
SB Bliss County Pune Project maintenance varies with the configuration and the carpet area which are as follows-
1BHK - Rs 2200 per month
2BHK - Rs 3200 per month
Bliss County Prices & its details can be found in the price section & SB Bliss County brochure can be downloaded from the link mentioned below. Project has been praised by the home buyers & SB Patil Group review is 4 out of 5 from over all the clients who have visited the site.
Near Dabhadevasti, Charholi, Pune,


Pros
Cons
Video Door Phone
Vitrified Tiles
Granite Kitchen Platform
Stainless Steel Sink
Solar Water Heater
Acrylic Emulsion Paints
CCTV Camera
+1 More
Kids Play Area
Jogging Track
Garden
Senior Citizen Area
Seating Area
Indoor games
Gymnasium






| Carpet Area | All Inc. Price (Inc. of Taxes & Charges) | Min Downpayment (Inc. Taxes) | Parking | Unit Plan |
|---|---|---|---|---|
450 sqftSold Out | ![]() | - | - | ![]() |
443 sqftSold Out | ![]() | - | - | ![]() |


Is there any litigation against this proposed project:
NoSB Bliss County Commencement Certificate
SB Bliss County Legal Title Report
SB Bliss County Building Plan
Note: You can download more detailed documents by following this link
SB Patil Group

1 CityLocations
Pune


891 - 1294 sqft
Swastik Developers
Developer

651 - 847 sqft
Kalpdeep Group
Developer
683 - 925 sqft
Lotus Group the City
Developer

683 - 897 sqft
Mangalam Landmarks
Developer

1566 - 1566 sqft
Kalpdeep Group
Developer



482 - 742 sqft
RKL Lunkad Housing Corp
Developer

748 - 1131 sqft
Shubh Ganesh Properties
Developer
677 - 931 sqft
Pratham Yash Builders
Developer
530 - 745 sqft
Kalpdeep Group
Developer
465 - 664 sqft
Tirupati Group
Developer
507 - 1052 sqft
RKL Lunkad Housing Corp
Developer

Housiey Legal: Free Real Estate Legal Consultation
Get Expert Advice on RERA, Builder Refunds, Area Mismatch, Stuck Projects & More - at No Cost!