
















Land Parcel
Towers
Floors
Config
Carpet Area
RERA NO.
Possession Status
Target Possession
RERA Possession
Litigation
Santiago Charholi Project Overview
Santiago Genesis Project will be constructed on 9 acres of land parcel, 7 tower with 3B+G+22 floors having 2 BHK, 3 BHK, 4 BHK premium residences.
Santiago Genesis location
Project is located Santiago Genesis Near Laxmi-Narayan Nagar, Charholi, Pune with -
Magzine Chowk - 1.2km
Reliance SMART - 2.4km
MIT Alandi - 4.1km
Santiago Genesis Charholi Project Amenities
First is Internal amenities -
Earthquke Resistant Structure, Vitrified Tiles, Anti-Skid Tiles, Ms Grill, Branded CP Fittings, Video Door Phone, DG Bakup, CCTV Surviillence, Solar Water Heater, Water Purifier, etc
Santiago Realty Charholi External Amenities
Project has 20+ amenities with likes of -
Clubhouse
Swimming Pool
Yoga And Meditation Area
Children's Play Area
Gymnasium Many More
Destination Santiago Realty City Charholi Parking -
Project has two type of car parking facility -
1) Basement
2) Ground
Santiago Genesis Possession -
Rera Possession - December 2028
Target Possession - December 2027
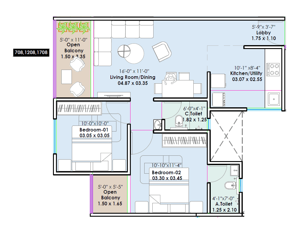
Carpet Area & Floor Plan
Santiago Genesis Charholi project has 2BHK, 3BHK, 4BHK premium residences with -
2BHK - 712 sqft
3BHK - 946 sqft
4BHK - 1498 sqft
Santiago Genesis floor plan
Tower floor plan will have 8 flats 2 lifts & 2 staircases on each floor
Maintenance -
Santiago Genesis Pune Project maintenance varies with the configuration and the carpet area which are as follows-
2BHK - Rs 2800 per month
3BHK - Rs 3800 per month
4BHK - Rs 6000 per month
Santiago Genesis Charholi project sample flat is ready to view at the site.
Santiago Genesis Prices & its details can be found in the price section & Santiago Genesis Charholi brochure can be downloaded from the link mentioned below. Project has been praised by the home buyers & Santiago Realty Charholi review is 4 out of 5 from over all the clients who have visited the site.
Near Laxmi-Narayan Nagar, Charholi, Pune
Pros
Cons
Video Door Phone
Intercom Facility
Vitrified Tiles
Granite Kitchen Platform
Stainless Steel Sink
Water Purifier
Geyser
+4 More
Swimming Pool
Club House
Kids Play Area
Multi Purpose Court
Senior Citizen Area
Rooftop Amenities
Library
Amphitheater
Yoga Zone
Meditation Zone
Temple Complex
WiFi Zone
Toddlers Play Area
Seating Area
Barbeque Deck
+8 More




| Carpet Area | All Inc. Price (Inc. of Taxes & Charges) | Min Downpayment (Inc. Taxes) | Parking | Unit Plan |
|---|---|---|---|---|
712 sqft | 73.21 Lacs All In | 11.00 Lacs | 1 | ![]() |

Is there any litigation against this proposed project:
NoSantiago Genesis Commencement Certificate
Santiago Genesis Legal Title Report
Santiago Genesis Building Plan
Note: You can download more detailed documents by following this link
Santiago Realty

1 CityLocations
Pune


891 - 1294 sqft
Swastik Developers
Developer

651 - 847 sqft
Kalpdeep Group
Developer
683 - 925 sqft
Lotus Group the City
Developer

683 - 897 sqft
Mangalam Landmarks
Developer

1566 - 1566 sqft
Kalpdeep Group
Developer



482 - 742 sqft
RKL Lunkad Housing Corp
Developer

748 - 1131 sqft
Shubh Ganesh Properties
Developer
677 - 931 sqft
Pratham Yash Builders
Developer
530 - 745 sqft
Kalpdeep Group
Developer
465 - 664 sqft
Tirupati Group
Developer
507 - 1052 sqft
RKL Lunkad Housing Corp
Developer

Housiey Legal: Free Real Estate Legal Consultation
Get Expert Advice on RERA, Builder Refunds, Area Mismatch, Stuck Projects & More - at No Cost!