








Land Parcel
Towers
Floors
Config
Carpet Area
RERA NO.
Possession Status
Target Possession
RERA Possession
Litigation
Saheel Tathawade Project Overview
Saheel Trendy Vesta will be constructed on 2.5 acres of land parcel, 6 towers with 2B+G+P+14 floors having 2BHK, 2.5BHK, 3BHK premium residences .
Saheel Trendy Vesta location
Project is located Near Ashok Nagar, Bhumkar Chowk, Tathawade, Pune with-
Mumbai- Banglore Highway - 1.5km
Phoenix Mall of the Millennium -2.8km
D-Mart - 4.3km
Saheel Trendy Vesta Tathawade Project Amenities
First is Internal amenities -
Vitrified tiles, Granite Kitchen, Earthsquake resistance, Video door, Digital lock, DG backup, Solar Heater, SS railing, Fire-fighting, CP fitting, RCC,Frame Struct & Many more
Saheel Properties Tathawade External Amenities
Project has 30+ luxurious amenities with likes of -
Swimming Pool
Kids Pool & Deck
Club House
Party Lawn,
Underwater Seating
BBQ Counter & Many More
Saheel Properties Trendy Vesta Tathawade Parking -
Project has two types of car parking facilities -
1) Basement
2) Ground
Saheel Trendy Vesta Possession -
Rera Possession - April 29
Target Possession - December 2027
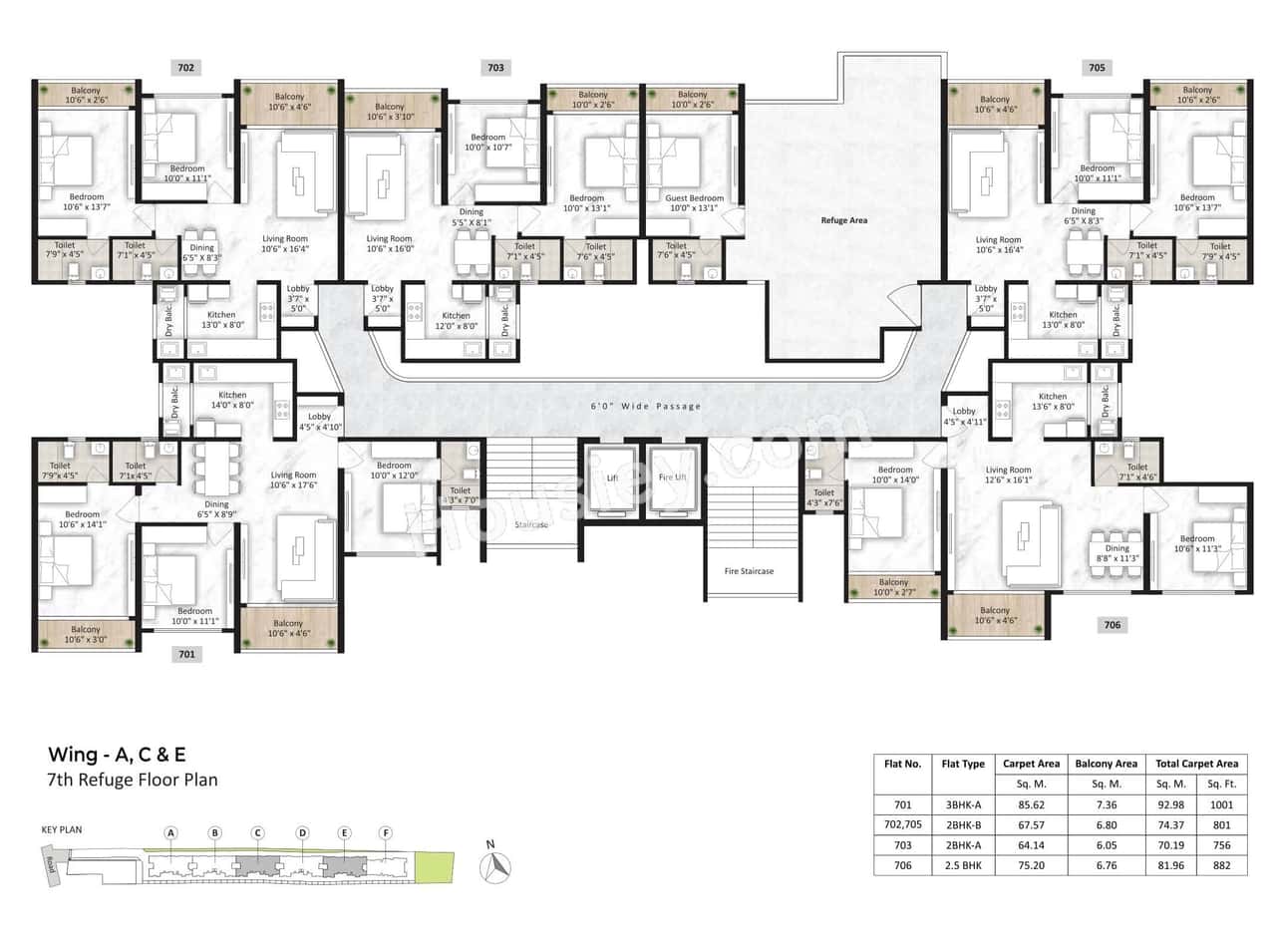
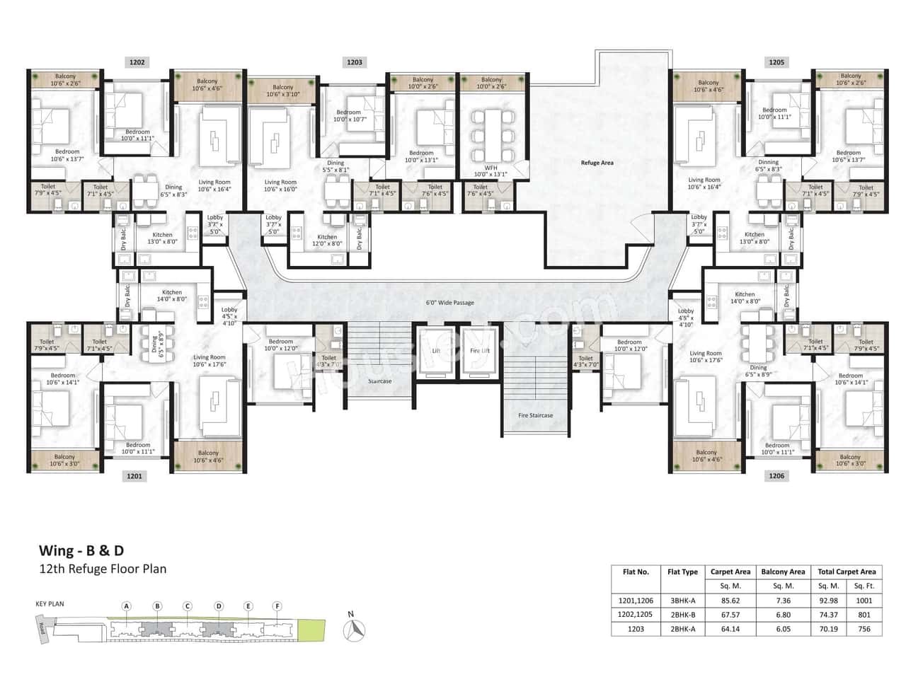
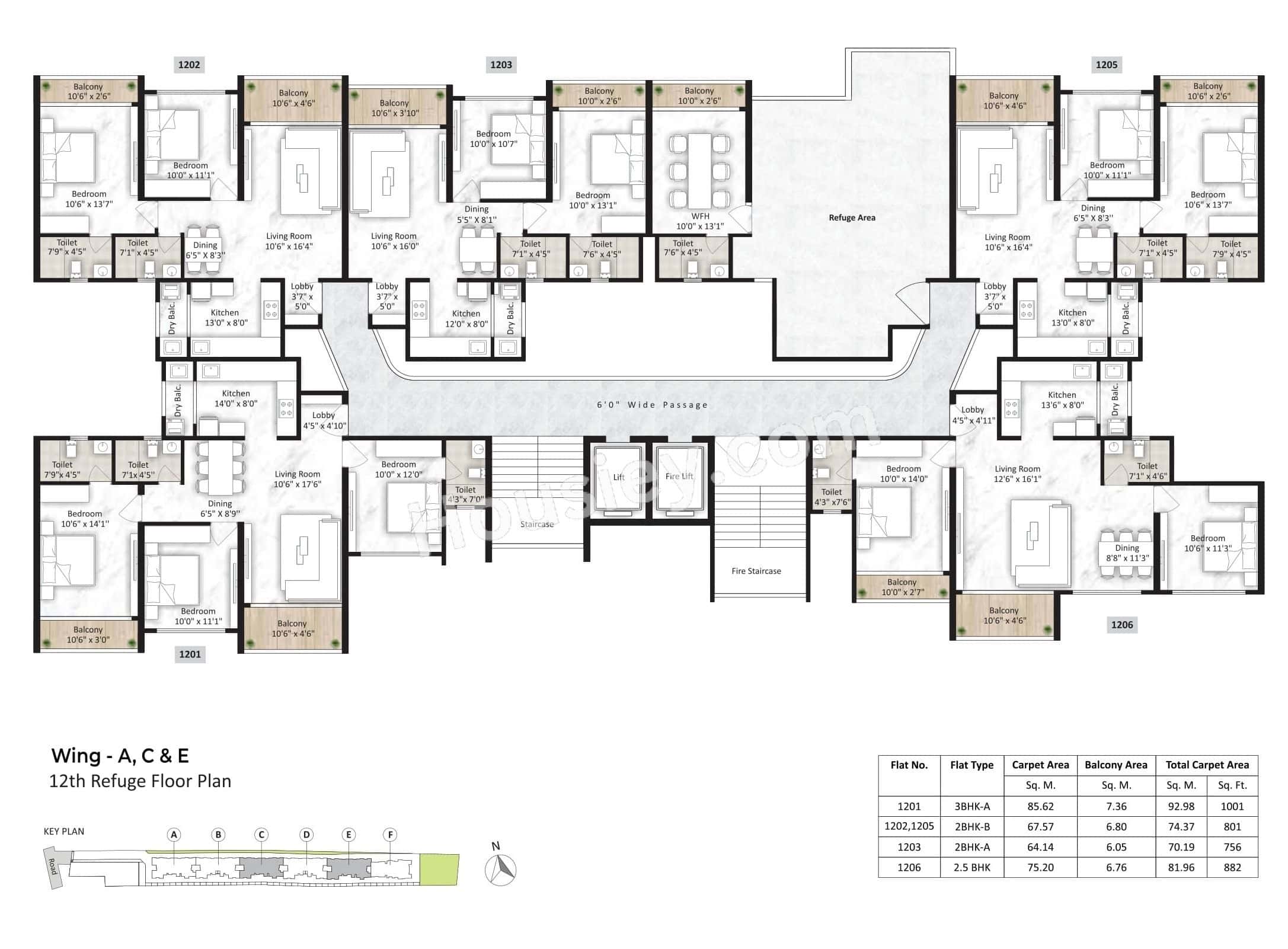
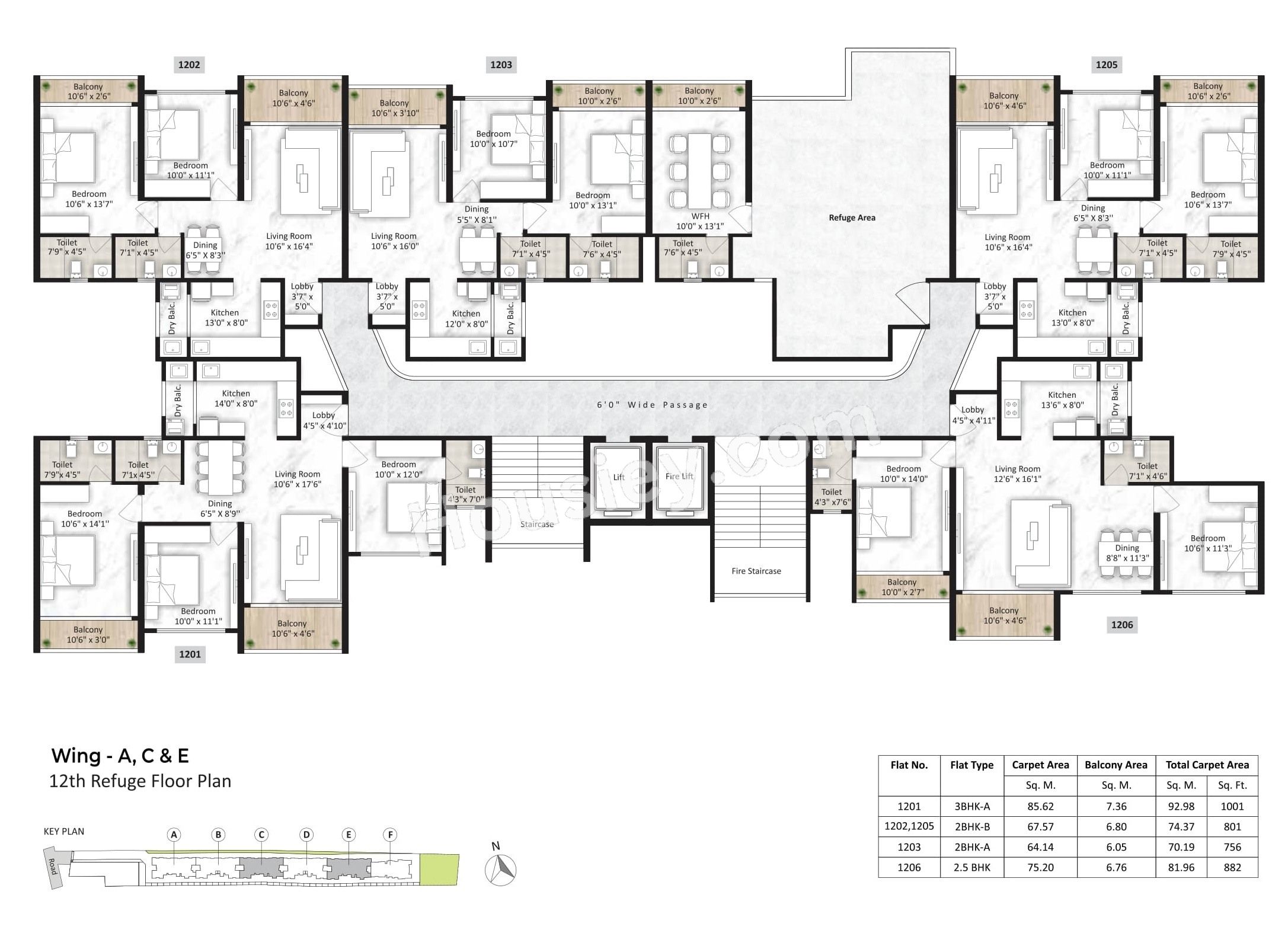
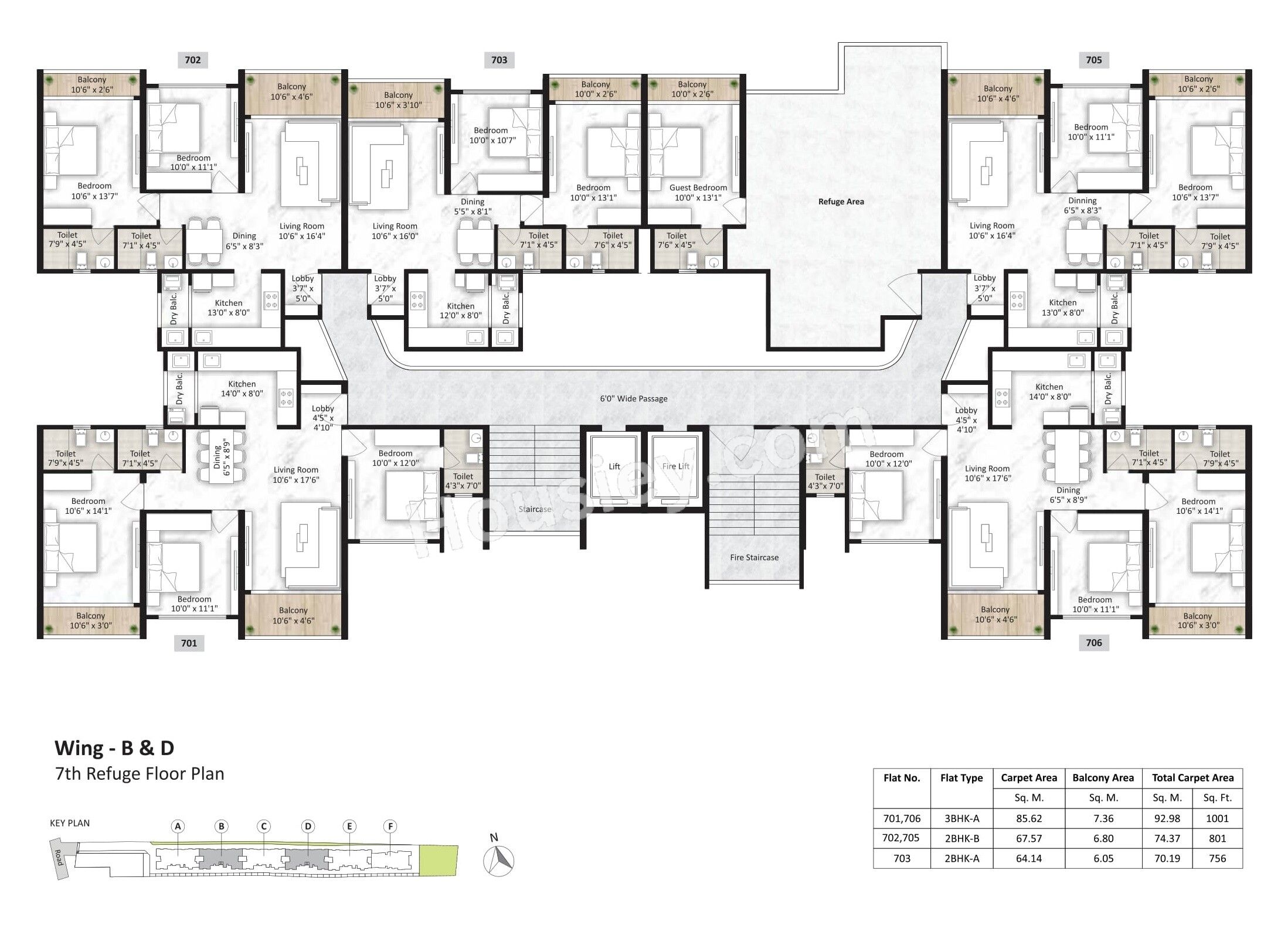
Carpet Area & Floor Plan
Saheel Trendy Vesta Tathawade project has 2BHK, 2.5BHK, 3BHK premium residences with -
2BHK - (751 to 801) sqft
2.5BHK - 901 sqft
3BHK - (1001 to 1041) sqft
Saheel Trendy Wes floor plan
Tower floor plan will have 6 flats 2 lifts & 2 staircases on each floor
Maintenance -
Saheel Trendy Vesta Pune Project maintenance varies with the configuration and the carpet area which are as follows-
2BHK - Rs (3000 - 3200) per month
2.5BHK - Rs 3600 per month
3BHK - Rs (4000 - 4200) per month
Trendy Vesta Tathawade sample flat is ready to view at the site.
Trendy Vesta Tathawade Prices & its details can be found in the price section & Saheel Trendy Vesta Tathawade brochure can be downloaded from the link mentioned below. Project has been praised by the home buyers & Saheel Properties Tathawade review is 4 out of 5 from over all the clients who have visited the site.
Near Ashok Nagar, Bhumkar Chowk, Tathawade, Pune


Pros
Cons
Vitrified Tiles
Granite Kitchen Platform
Stainless Steel Sink
Branded Fittings
Mosquito Mesh Windows
Fire Fighting
Swimming Pool
Club House
Kids Play Area
Senior Citizen Area
Kids Pool
Roof Top Sky Garden
Herbal Garden
Yoga Zone
BBQ Lawn
Viewing Pavilion
Star Gazing
party lawn
Gymnasium
Sun Deck







| Carpet Area | All Inc. Price (Inc. of Taxes & Charges) | Min Downpayment (Inc. Taxes) | Parking | Unit Plan |
|---|---|---|---|---|
801 sqft | 87.00 Lacs All In | 13.00 Lacs | 1 | ![]() |
756 sqft | 82.00 Lacs All In | 12.00 Lacs | 1 | ![]() |

Is there any litigation against this proposed project:
NoSaheel Properties

1 CityLocations
Pune

--1724848588311-img.webp&w=1280&q=75)

736 - 1040 sqft
Abhinav Group
Developer
--1729667837944-img.webp&w=1280&q=75)



755 - 1145 sqft
Sukhwani Constructions
Developer


732 - 829 sqft
Millennium Developers
Developer








Housiey Legal: Free Real Estate Legal Consultation
Get Expert Advice on RERA, Builder Refunds, Area Mismatch, Stuck Projects & More - at No Cost!