









Land Parcel
Towers
Floors
Config
Carpet Area
RERA NO.
Possession Status
Target Possession
RERA Possession
Litigation
Saheel Project Overview
Saheel Itrend Vesta 2.0 will be constructed on 3 acre of land parcel, 6 towers with 2B+G+P+14 floors having 2BHK, 2.5BHK, 3BHK premium residences.
Saheel Itrend Vesta 2.0 location
Project is located Beside JSPM Engg college, Ashok Nagar, Tathawade, Pune with -
Mumbai- Banglore Highway - 40m
Bhumkar Chowk - 1.9km
D-Mart - 3.7km
Saheel Itrend Vesta 2.0 Wakad Project Amenities
First is Internal amenities -
Vitrified Tiles, RCC Structure, Anti-Skid Tiles, Granite Kitchen, Dado Tiles, Granite Windows Frame, CPVC & PVC Pipes, CP Fittings, Vedio Door Phone, Aluminium Sliding Windows, Solar Systeam, CCTV etc & Many More
Saheel Properties Wakad External Amenities
Project has 35+ luxurious amenities with likes of -
Swimming Pool
Kids Pool
Clubhouse
Party Lawn & Many More
Saheel Properties Saheel Itrend Vesta 2.0 Wakad Parking -
Project has two types of car parking facilities -
1) Basement
2) Podium
Saheel Itrend Vesta 2.0 Possession -
Rera Possession - April 2029
Target Possession - October 2028
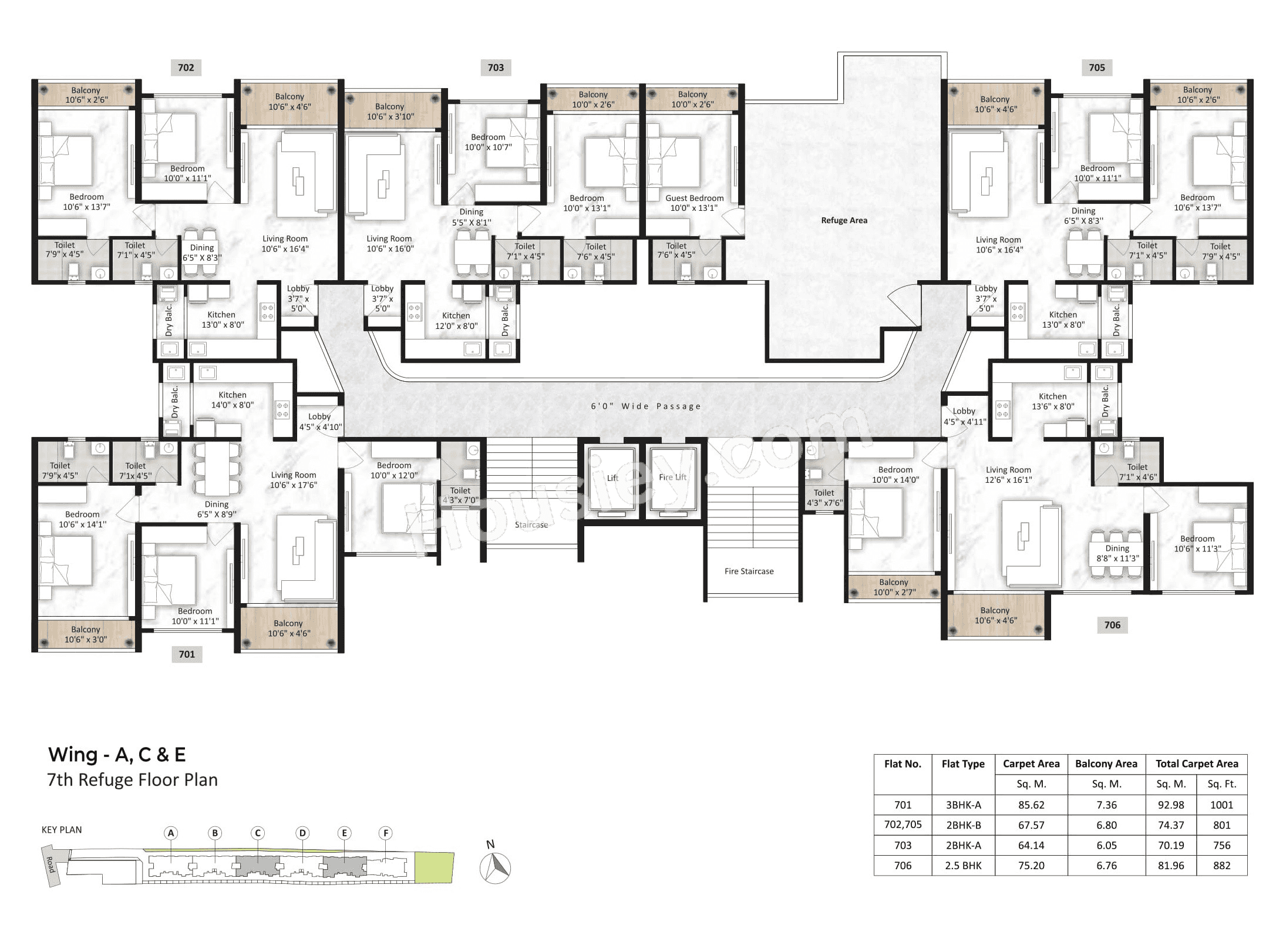
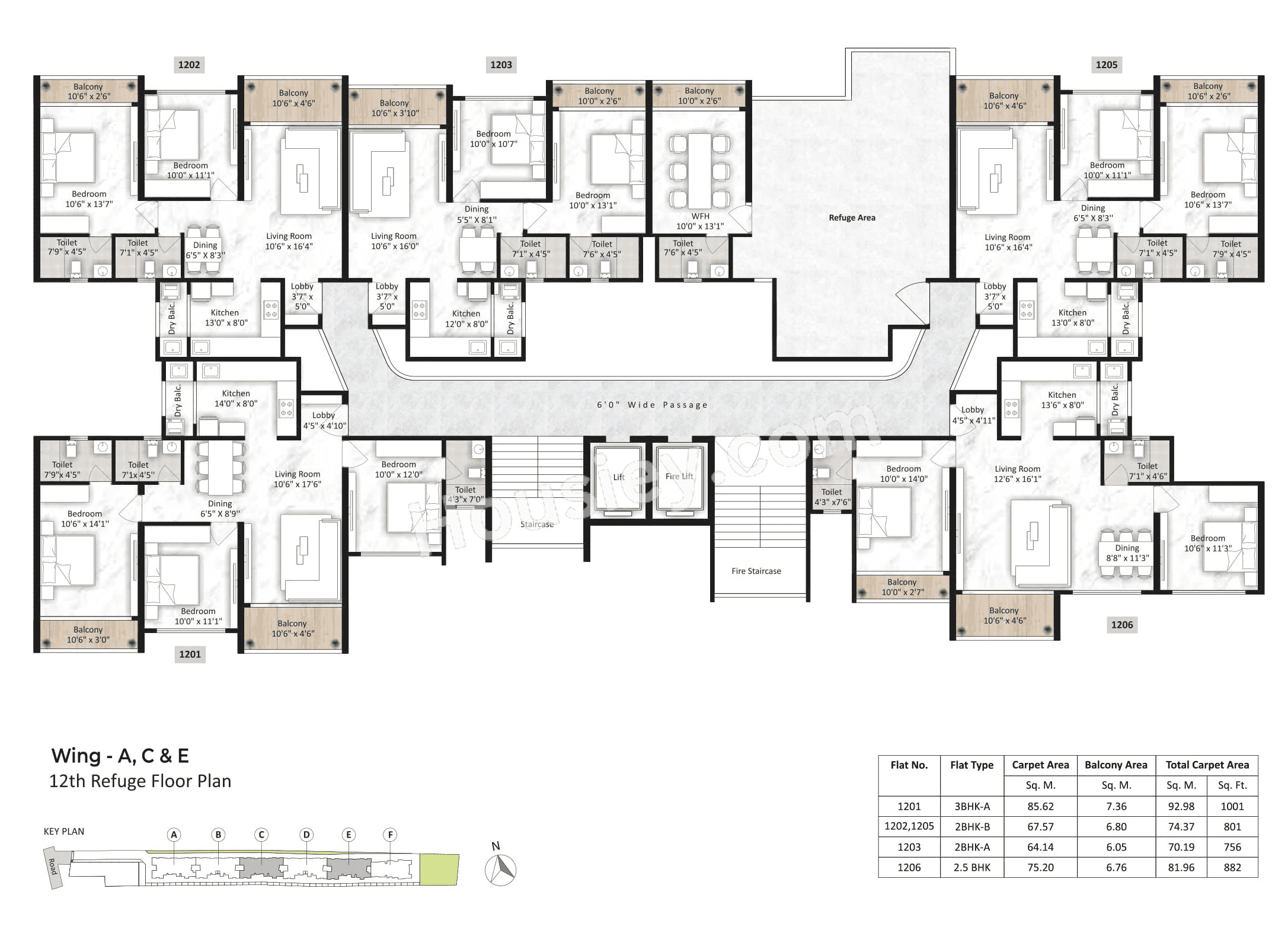
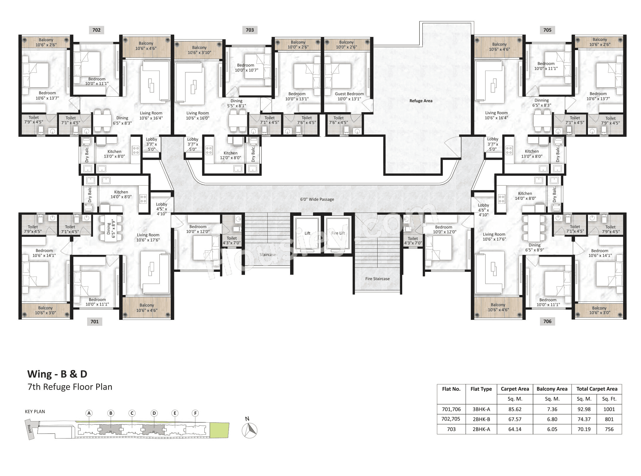
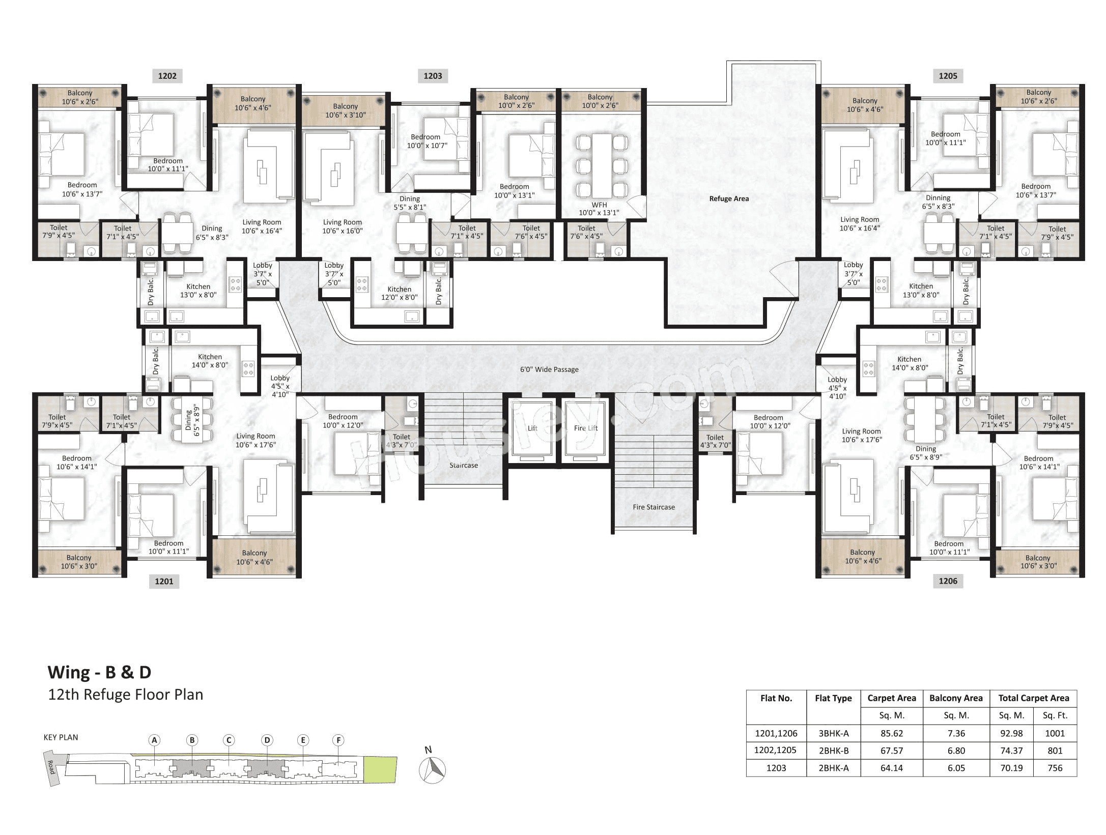
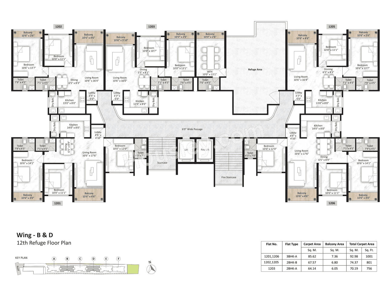
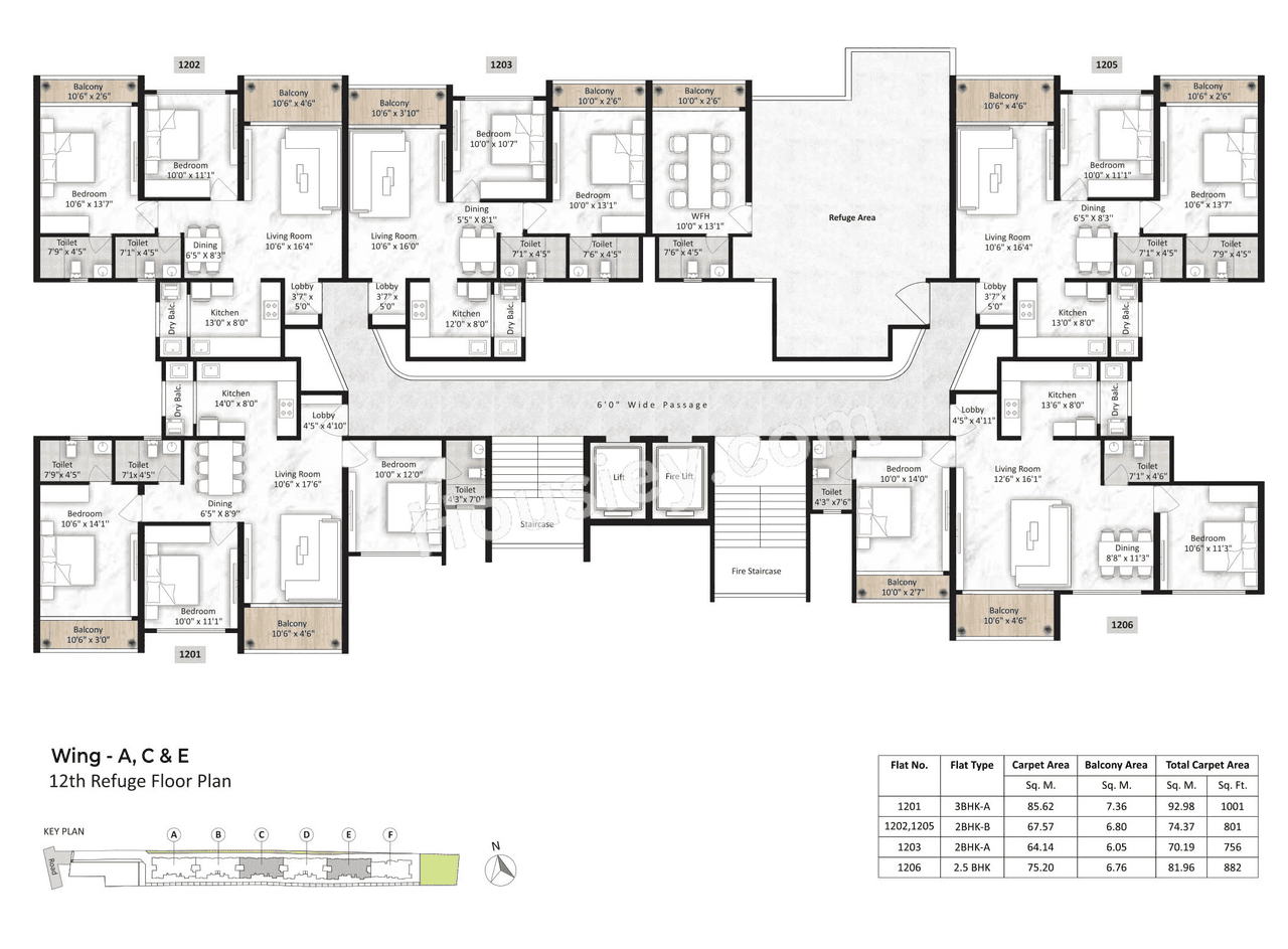
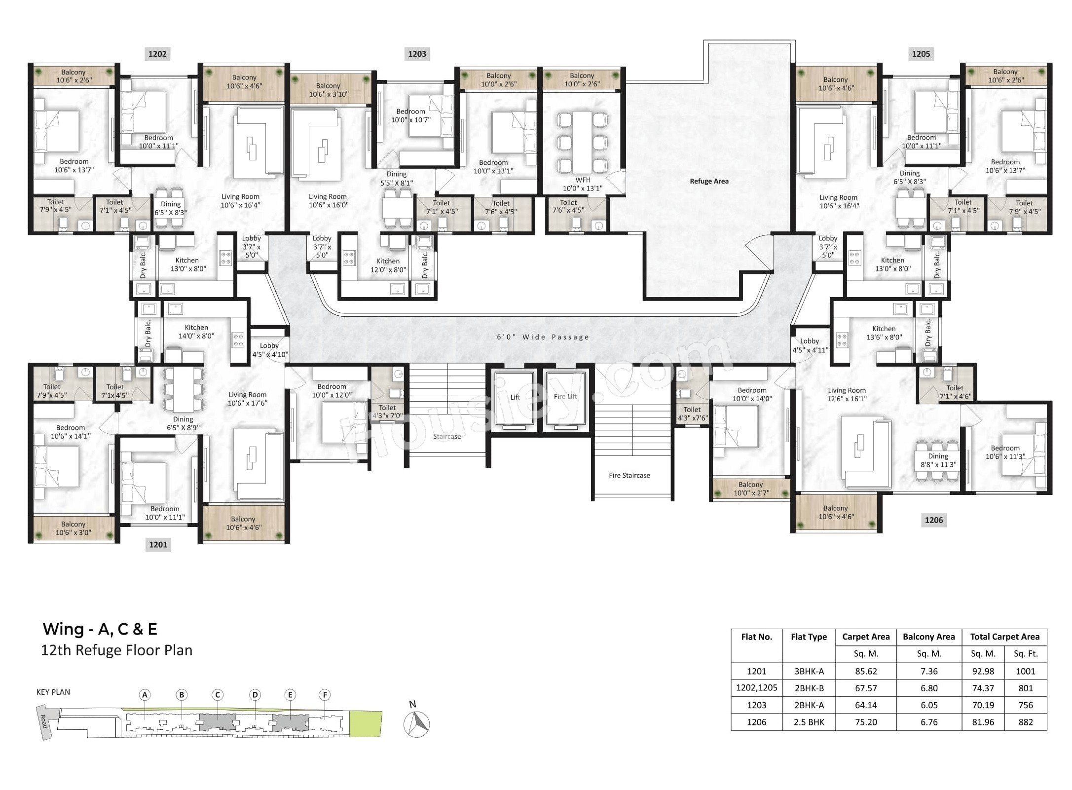
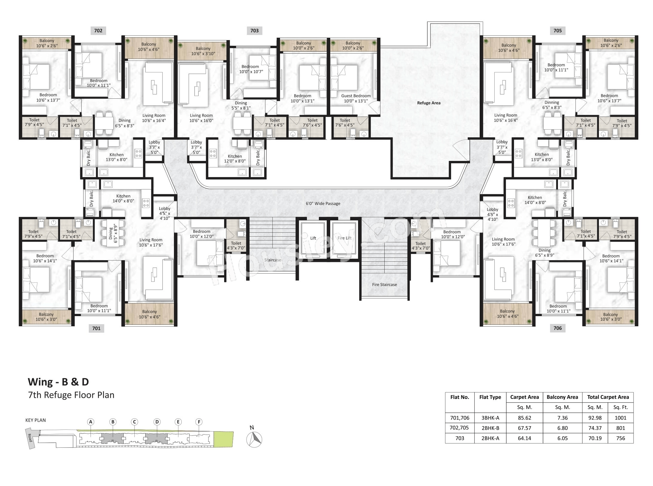
Carpet Area & Floor Plan
Saheel Itrend Vesta 2.0 Wakad project has 2BHK, 2.5BHK, 3BHK premium residences with -
2BHK - (756 - 801) sqft
2.5BHK - 882 sqft
3BHK - (1001 - 1041) sqft
Saheel Itrend Vesta 2.0 floor plan
Tower floor plans will have flats, lifts & staircases on each floor
Maintenance -
Saheel Itrend Vesta 2.0 Pune Project maintenance varies with the configuration and the carpet area which are as follows-
2BHK - Rs 3000 per month
2.5BHK - Rs 3500 per month
3BHK - Rs (4000 - 4200) per month
Saheel Itrend Vesta 2.0 Wakad price & its details can be found in the price section & Saheel Itrend Vesta 2.0 Wakad brochure can be downloaded from the link mentioned below. Project has been praised by the home buyers & Saheel Properties Wakad review is 4 out of 5 from over all the clients who have visited the site.
Beside JSPM Engg college, Ashok Nagar, Tathawade, Pune
Pros
Cons
Video Door Phone
Vitrified Tiles
Granite Kitchen Platform
Solar Water Heater
Acrylic Emulsion Paints
CCTV Camera
Swimming Pool
Club House
Kids Play Area
Senior Citizen Area
Kids Pool
Co Working Spaces
Roof Top Sky Garden
Herbal Garden
Barbeque Deck
Pool deck
Drop Of Canopy
BBQ Lawn
Star Gazing
party lawn
Yoga Deck
+1 More










| Carpet Area | All Inc. Price (Inc. of Taxes & Charges) | Min Downpayment (Inc. Taxes) | Parking | Unit Plan |
|---|
Is there any litigation against this proposed project:
NoSaheel Properties

1 CityLocations
Pune

--1724848588311-img.webp&w=3840&q=75)

736 - 1040 sqft
Abhinav Group
Developer
--1729667837944-img.webp&w=3840&q=75)



755 - 1145 sqft
Sukhwani Constructions
Developer


732 - 829 sqft
Millennium Developers
Developer








Housiey Legal: Free Real Estate Legal Consultation
Get Expert Advice on RERA, Builder Refunds, Area Mismatch, Stuck Projects & More - at No Cost!