











Land Parcel
Towers
Floors
Config
Carpet Area
RERA NO.
Possession Status
Target Possession
RERA Possession
Litigation
Saheel ITrend Chinchwad Project Overview
Saheel ITrend Palacio will be constructed on 2 acres of land parcel, 3 towers with B+G+20 floors having 3BHK, 3.5BHK, 4BHK, 4.5BHK premium residences .
Saheel ITrend Palacio location
Project is located Near Chinchwad Station Rd, Udyog Nagar, Chinchwad, Pune with -
Old Mumbai - Pune Highway- 1.6km
Elpro City Square Mall - 2.1km
PCMC Metro Station - 2.8km
Saheel ITrend Palacio Chinchwad Project Amenities
First is Internal amenities -
Vitrified tiles, Granite Kitchen, MS Railing, SS sink & many more
Saheel Properties Chinchwad External Amenities
Project has 60+ Amenities with likes of -
Rooftop Swimming Pool,
Outdoor Exercise,
Rooftop Gymnasium,
Children Play Park,
Multipurpose Play Court,
Party Lawn,
Podcasting Studio,
Amphitheatre Seating & Many More.
Saheel Properties ITrend Palacio Chinchwad Parking -
Project has Only one type of car parking facility -
1) Ground
Saheel ITrend Palacio Possession -
Rera Possession - December 2027
Target Possession - June 2027
Carpet Area & Floor Plan
Palacio project has 3BHK, 3.5BHK, 4BHK, 4.5BHK residences with -
3BHK - (1212 to 1236) sqft
3.5BHK - 1365 sqft
4BHK - 1641 sqft
4.5BHK - 1736 sqft
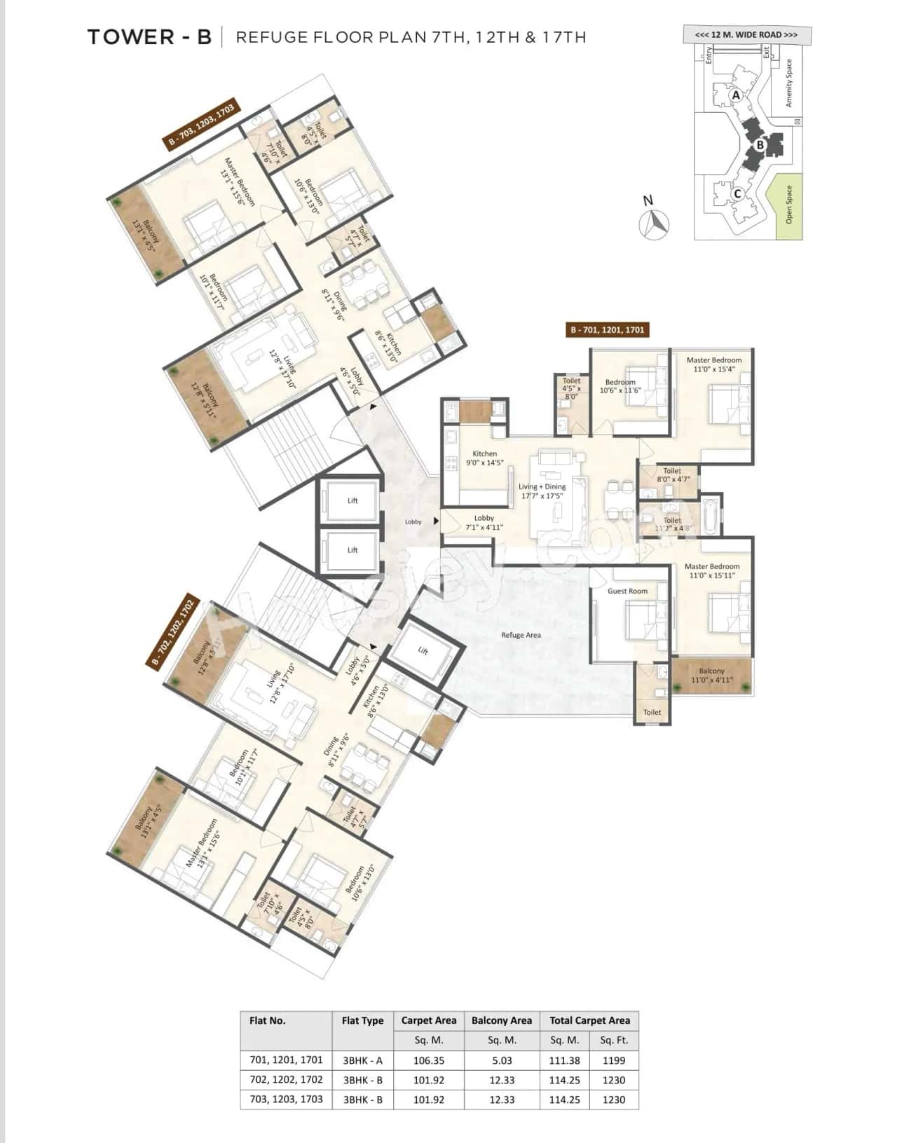
Saheel ITrend Chinchwad floor plan
Tower floor plans will have 3 flats & 3 lift 2 staircases on each floor
Maintenance -
Saheel ITrend Chinchwad Pune Project maintenance varies with the configuration and the carpet area which are as follows-
3BHK - Rs (3600 - 3700) per month
3.5BHK - Rs 5400 per month
4BHK - Rs 4900 per month
4.5BHK - Rs 5200 per month
Saheel ITrend Chinchwad project sample flat is ready to view at the site.
Saheel ITrend Palacio Prices & its details can be found in the price section & Saheel ITrend Palacio brochure can be downloaded from the link mentioned below. Project has been praised by the home buyers & Saheel Properties review is 4 out of 5 from over all the clients who have visited the site.
Near Chinchwad Station Rd, Udyog Nagar, Chinchwad, Pune

Pros
Cons
Digital Lock
Video Door Phone
Vitrified Tiles
Jaguar Fittings
Granite Kitchen Platform
Stainless Steel Sink
D.G Backup
+1 More
Swimming Pool
Club House
Multi Purpose Court
Kids Pool
Open Gym
Amphitheater
Yoga Zone
Temple Complex
Banquet Hall
Gazebo
Indoor games
Star Gazing
party lawn
Gymnasium
Multi purpose hall





| Carpet Area | All Inc. Price (Inc. of Taxes & Charges) | Min Downpayment (Inc. Taxes) | Parking | Unit Plan |
|---|---|---|---|---|
1199 sqftSold Out | ![]() | - | - | ![]() |
1230 sqftSold Out | ![]() | - | - | ![]() |
1210 sqftSold Out | ![]() | - | - | ![]() |
1236 sqftSold Out | ![]() | - | - | ![]() |
1212 sqftSold Out | ![]() | - | - | ![]() |


Is there any litigation against this proposed project:
NoSaheel Properties

1 CityLocations
Pune

1200 - 1735 sqft
Saheel Properties
Developer

864 - 864 sqft
Avirat Developers
Developer
873 - 1763 sqft
Sukhwani Agarwal Group
Developer

700 - 1715 sqft
Sai Nisarg Landmark
Developer

685 - 1070 sqft
Samarth Buildcon
Developer
Housiey Legal: Free Real Estate Legal Consultation
Get Expert Advice on RERA, Builder Refunds, Area Mismatch, Stuck Projects & More - at No Cost!