











Land Parcel
Towers
Floors
Config
Carpet Area
RERA NO.
Possession Status
Target Possession
RERA Possession
Litigation
"Sukhwani Agarwal Chinchwad Project Overview
Sukhwani Agarwal Empire Square will be constructed on 12 acres of land parcel, 12 towers with 2B+G+4P+34 floors having 2BHK, 3BHK, 4BHK premium residences.
Sukhwani Agarwal Empire Square location
Project is located Near Kalewadi Rd, Morewadi, Chinchwad, Pune with-
Old Mumbai - Pune Highway - 350m
D-Mart - 1.5km
Chinchwad Junction - 2.4km
Sukhwani Agarwal Empire Square Chinchwad Project Amenities
First is Internal amenities -
Vitrified Tiles, Ceramic Tiles, RCC Structure, UPVC Pipes, Aluminium Sliding Windows, Granite Kitchen, CP Fittings, Powewr Backup etc & Many more
Sukhwani Agarwal Group Chinchwad External Amenities
Project has 15+ luxurious amenities with likes of -
Swimming Pool
Club House
Senior Citizen Sit-Out Area
Childrens Play Area & Many More
Sukhwani Agarwal Group Sukhwani Agarwal Chinchwad Parking -
Project has Two types of car parking facilities -
1) Ground
2)Basement
Sukhwani Agarwal Empire Square Possession -
Rera Possession - December 2030
Target Possession - December 2030
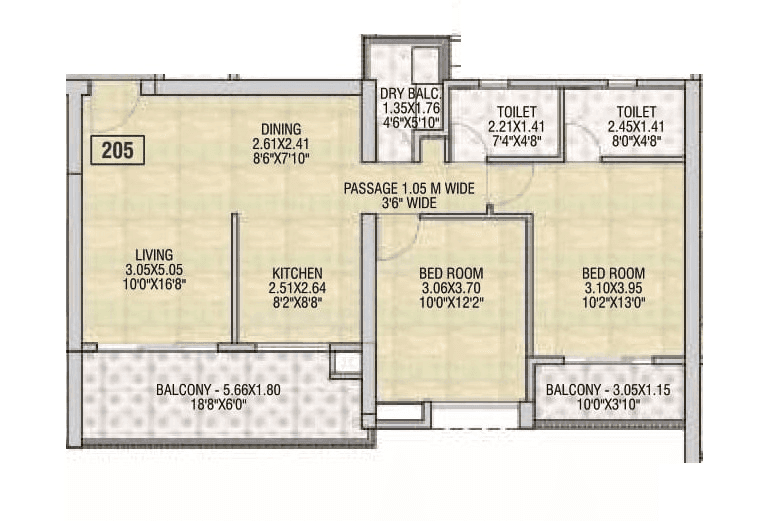
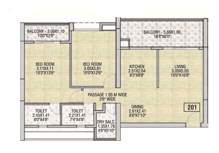
Carpet Area & Floor Plan
Empire Square project has 2BHK, 3BHK, 4BHK premium residences with -
2BHK - (873 - 882) sqft
3BHK - (1056 - 1187) sqft
4BHK - (1656 - 1763) sqft
Sukhwani Agarwal Empire Square floor plans
All Tower floor plan will have 5 flats, 3 lifts & 2 staircases on each floor.
Maintenance -
Sukhwani Agarwal Empire Square Pune Project maintaenance varies with the configuration and the carpet area which are as follows-
2BHK - Rs 7000 per month
3BHK - Rs 8500 per month
4BHK - Rs 12000 per month
Empire Square Chinchwad project sample flat is ready to view at the site.
Empire Square Prices & its details can be found in the price section & Sukhwani Agarwal Empire Square Chinchwad brochure can be downloaded from the link mentioned below. Project has been praised by the home buyers & Sukhwani Agarwal Group Chinchwad review is 4 out of 5 from over all the clients who have visited the site."
Near Kalewadi Rd, Morewadi, Chinchwad, Pune
Pros
Cons
Vitrified Tiles
Granite Kitchen Platform
Swimming Pool
Club House
Kids Play Area
Jogging Track
Senior Citizen Area
Amphitheater
Multi purpose hall








| Carpet Area | All Inc. Price (Inc. of Taxes & Charges) | Min Downpayment (Inc. Taxes) | Parking | Unit Plan |
|---|---|---|---|---|
873 sqft | 1.50 Cr All In | 22.00 Lacs | 1 | ![]() |
875 sqft | 1.51 Cr All In | 23.00 Lacs | 1 | ![]() |
882 sqft | 1.52 Cr All In | 23.00 Lacs | 1 | ![]() |

Is there any litigation against this proposed project:
NoCommencement Certificate Sukhwani Agarwal Empire Square
Legal Title Report Sukhwani Agarwal Empire Square
Layout Plan Sukhwani Agarwal Empire Square
Note: You can download more detailed documents by following this link
Sukhwani Agarwal Group

1 CityLocations
Pune

1200 - 1735 sqft
Saheel Properties
Developer

864 - 864 sqft
Avirat Developers
Developer

700 - 1715 sqft
Sai Nisarg Landmark
Developer
Housiey Legal: Free Real Estate Legal Consultation
Get Expert Advice on RERA, Builder Refunds, Area Mismatch, Stuck Projects & More - at No Cost!