











Land Parcel
Towers
Floors
Config
Carpet Area
RERA NO.
Possession Status
Target Possession
RERA Possession
Litigation
Rohan Tathawade Project Overview
Rohan Harita will be constructed on 8.5 Acres, 9 Towers, 2B+G+4P+26 Floors, 1BHK, 2BHK, 3BHK, 3.5BHK, 4BHK premium residences.
Rohan Harita location
Project is located Near Kartaj-Dehu Rd Bypass, Ashok Nagar, Tathawade, Pune with -
Bhumkar Chowk - 2.3km
Phoenix Mall of Millennium - 3.2km
Reliance Smart - 3.5km
Rohan Harita Tathawade Amenities
First is Internal amenities -
All apartments are unfurnished with branded fittings and fixtures with
Vitrified Tiles, Branded Fittings, Granite Kitchen, Ceramic RCC Structure, Ceramic Tiles, CP Fitting, Video Door Phones, Aluminium Windows, Tiles, Power Backup, Fire Safety, CCTV and many more
Rohan Builder Tathawade External Amenities
Project has 35+ luxurious amenities with likes of -
Gymnasium
Indoor Games
Club House
Swimming Pool
Party Lawn & many more
Rohan Builder Harita Tathawade Parking
Project has one type of car parking facility which a.e follows -
1) Podium Level
Rohan Harita Possession -
Rera Possession - December 2028
Target Possession - June 2027
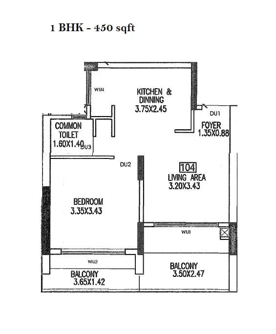
Carpet Area & Floor Plan
Rohan Harita Tathawade project has Studio, 2BHK, 3BHK, 3.5BHK, 4BHK premium residences with -
1BHK - (450 to 554) sqft
2BHK - (714 to 754)sqft
3BHK- 1106 sqft
3.5BHK - 1376 sqft
4BHK - 1900 sqft
Rohan Harita floor plans
Tower floor plan will have 5 flats 4 lifts & 2 staircases on each floor
Maintenance -
Rohan Harita Pune Project maintenance varies with the configuration and the carpet area which are as follows-
2BHK - Rs 3500 per month
3BHK - Rs 5500 per month
3.5BHK - Rs 6800 per month
4BHK - Rs 8700 per month
Harita Tathawade project sample flat is ready to view at the site.
Harita & its details can be known at the price section & Rohan Harita Tathawade brochure can be downloaded from the link mentioned below. Project has been praised by the home buyers & Rohan Builder Tathawade reviews is 4 out of 5 from over all the clients who have visited the site.
Near Kartaj-Dehu Rd Bypass, Ashok Nagar, Tathawade, Pune.


Pros
Cons
Video Door Phone
Vitrified Tiles
Granite Kitchen Platform
Stainless Steel Sink
Branded Fittings
Fire Fighting
Swimming Pool
Club House
Kids Play Area
Jogging Track
Garden
Senior Citizen Area
Kids Pool
Library
Basketball Court
Meditation Zone
Toddlers Play Area
Seating Area
BBQ Lawn
Indoor games
party lawn
+4 More







| Carpet Area | All Inc. Price (Inc. of Taxes & Charges) | Min Downpayment (Inc. Taxes) | Parking | Unit Plan |
|---|---|---|---|---|
450 sqftSold Out | ![]() | - | - | ![]() |
443 sqftSold Out | ![]() | - | - | ![]() |
554 sqftSold Out | ![]() | - | - | ![]() |


Is there any litigation against this proposed project:
NoCommencement Certificate Rohan Harita
Legal Title Report Rohan Harita
Layout Plan Rohan Harita
Note: You can download more detailed documents by following this link
Rohan Builders

1 CityLocations
Pune

--1724848588311-img.webp&w=3840&q=75)

736 - 1040 sqft
Abhinav Group
Developer
--1729667837944-img.webp&w=3840&q=75)



755 - 1145 sqft
Sukhwani Constructions
Developer


732 - 829 sqft
Millennium Developers
Developer








Housiey Legal: Free Real Estate Legal Consultation
Get Expert Advice on RERA, Builder Refunds, Area Mismatch, Stuck Projects & More - at No Cost!