Last updated: Feb 25, 2026






Land Parcel
Towers
Floors
Config
Carpet Area
RERA NO.
Possession Status
Target Possession
RERA Possession
Litigation
RDK Ghatkopar East Project Overview
RDK Rivanta will be constructed on under 0.21 acre of land parcel, 1 tower with G+20 floors having 1 BHK, 2 BHK, 3 BHK premium residences.
RDK Rivanta location
Project is Located Nr ghatkopar Rly Stn, Garodia Ngr, Ghatkopar East, Mumbai -
Rajawadi Hospital - 1.6km
Dmart - 2.8km
Eastern Express Highway - 2.6km
RDK Rivanta Ghatkopar East Project Amenities
First is Internal amenities -
Granite Kitchen, Vitrified tiles, Stainless steel sink, & many more
RDK Constructions Ghatkopar East Amenities
Project has amenities with likes of -
Fitness Center & Many More
RDK Rivanta Ghatkopar East Parking -
Project has one type of car parking facility -
1) Tower Parking
RDK Rivanta Possession -
Rera Possession - May 2029
Target Possession - December 2028
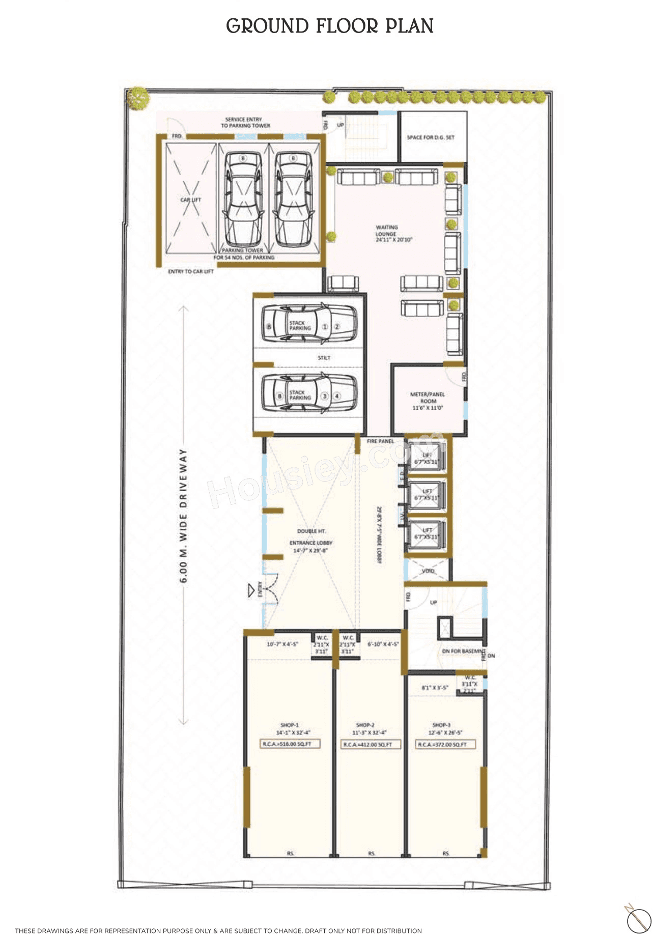
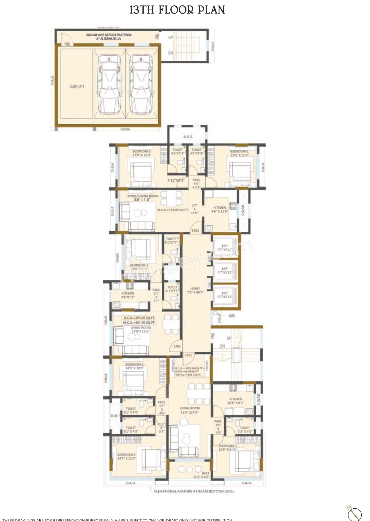
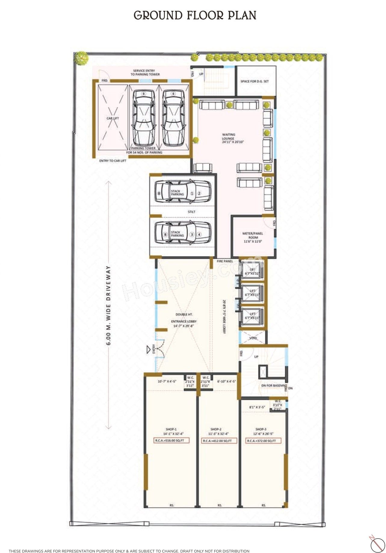
Carpet Area & Floor Plan
RDK Rivanta project has 1BHK, 2BHK, 3BHK premium residences with -
1BHK - (476 to 499) sqft
2BHK - 794 sqft
3BHK - (896 to 1069) sqft
RDK Rivanta floor plan
Tower floor plan will have 3 flats 3 lifts & 1 staircases on each floor
Maintenance -
RDK Rivanta Mumbai Project maintenance varies with the configuration and the carpet area which are as follows-
1BHK - Rs (4600 - 5000) per month
2BHK - Rs 8000 per month
3BHK - Rs (9000 - 10000) per month
Rivanta Prices & its details can be found in the price section & RDK Constructions RDK Rivanta Ghatkopar East brochure can be downloaded from the link mentioned below. Project has been praised by the home buyers & RDK Constructions Ghatkopar East review is 4 out of 5 from over all the clients who have visited the site.
Nr Ghatkopar Rly Stn, Pant Ngr, Ghatkopar East, Mumbai
Pros
Cons
Video Door Phone
Vitrified Tiles
Granite Kitchen Platform
Stainless Steel Sink
Gymnasium







| Carpet Area | All Inc. Price (Inc. of Taxes & Charges) | Min Downpayment (Inc. Taxes) | Parking | Unit Plan |
|---|
Is there any litigation against this proposed project:
NoRDK Construction

2 CitiesLocations
Mumbai City, Mumbai suburban
















828 - 1533 sqft
Arihant Realtors
Developer



Housiey Legal: Free Real Estate Legal Consultation
Get Expert Advice on RERA, Builder Refunds, Area Mismatch, Stuck Projects & More - at No Cost!